Haydons Road, Wimbledon, London SW19
By Grays Residential
£ 225,000
Reviews
3 out of 5 stars
Grays Residential says ..
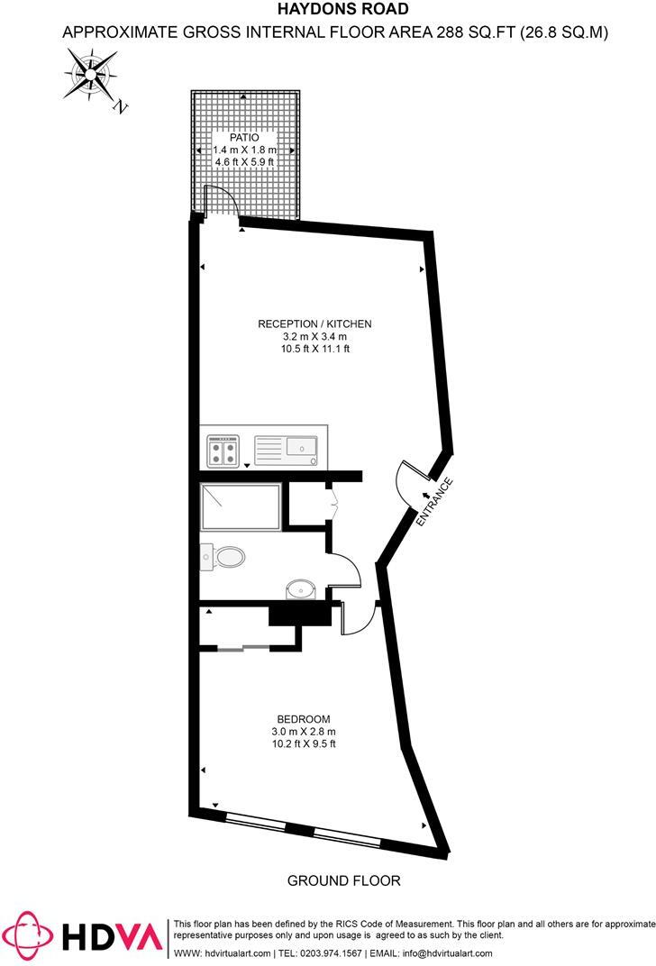
**Virtual Tour Available** Gray's Residential are pleased to offer to the market this one-bedroom ground floor flat in South Wimbledon offers the perfect combination of modern living and excellent location. Situated on Haydons Road, SW19, the property is within easy reach of Thameslink rail s...
Property Oracle says ..
This is a one-bedroom flat on Haydons Road in Wimbledon. The flat is in good condition, with a modern kitchen and bathroom. The property benefits from a small outdoor area. The flat is located close to Haydons Road station and several schools. The price is higher than the average price per square foot for the area, but this is likely due to the condition of the property and its location.
Therefore, we give this property 6 / 10. *Disclaimer: This is our option and does constitute a recommendation or financial advice. Do your own research. *
- Price
- 7
- Condition
- 8
- Location
- 7
- Land
- 3
- Bedrooms
- 1
- Bathrooms
- 1
- Sqft (est)
- 288.00
The heatmap indicates the level of crime in the area. The color of the heatmap indicates the crime severity and recency.
Metrics Year-on-Year
- Average area value
- 320,000.00 £Decreased by 17.89 %
- Est sale value
- 93,600.00 £Decreased by 9.97 %
- Average area rental value
- 929.00 £/moDecreased by 15.00 %
- Est letting value
- 0.00 £/moDecreased by 100.00 %
- Est rental Yield
- 3.48 %Increased by 3.26 %
- Crime Rate
- 6.00 %Unchanged by 0.00 %
Agent Activity
Grays Residential created the listing.
Nearby Schools
| Name | Type | Ofsted | Distance |
|---|---|---|---|
| Garfield Primary School | Community School | Good | 0.49 KM |
| The Priory Cofe School | Voluntary Aided School | Good | 0.53 KM |
| Holy Trinity Cofe Primary School | Voluntary Aided School | Outstanding | 0.79 KM |
| All Saints' Cofe Primary School | Voluntary Aided School | Good | 0.92 KM |
| Smallwood Primary School And Language Unit | Community School | Requires improvement | 1.24 KM |
Images
Nearby Streets
| Name | Average Price | Average Sqft | Distance |
|---|---|---|---|
| Haydons Road | £ 0 | 0 | 0.00 KM |
| Cowdrey Road | £ 400,000 | 0 | 0.00 KM |
| Regent Place | £ 825,000 | 0 | 0.00 KM |
| Morris Mews | £ 0 | 0 | 0.00 KM |
| Edith Road | £ 0 | 0 | 0.00 KM |
Nearby Transport
| Name | NLC | TLC | Distance |
|---|---|---|---|
| Haydons Road | 5289 | HYR | 0.09 KM |
| Earlsfield | 5584 | EAD | 1.97 KM |
| Wimbledon | 5578 | WIM | 1.99 KM |
| South Merton | 5292 | SMO | 3.02 KM |
| Tooting | 5389 | TOO | 3.08 KM |
Nearby Listings
| Address | Price | Type | Score | Distance |
|---|---|---|---|---|
| Haydons Road, Wimbledon, London SW19 | £ 225,000 | BUY | 6 / 10 | 0.00 KM |
| Caxton Road, Wimbledon | £ 950,000 | BUY | 7 / 10 | 0.03 KM |
| Lillium Mews, Wimbledon, SW19 | £ 450,000 | BUY | 7 / 10 | 0.03 KM |
| Lillium Mews, Wimbledon, London, SW19 | £ 450,000 | BUY | 7 / 10 | 0.04 KM |
| Lillium Mews, Wimbledon, London, SW19 | £ 550,000 | BUY | 6 / 10 | 0.04 KM |
Nearby Properties
| Address | Price | Distance |
|---|---|---|
| 266a Haydons Road | £ 330,000 | 0.07 KM |
| 270 Haydons Road | £ 119,950 | 0.07 KM |
| 276 Haydons Road | £ 32,000 | 0.07 KM |
| 260 Haydons Road | £ 65,000 | 0.07 KM |
| 276a Haydons Road | £ 32,000 | 0.07 KM |