Colchester Road, Ipswich, IP4
By Joseph Property Agency
£ 290,000
Reviews
3 out of 5 stars
Joseph Property Agency says ..
Located in the highly sought-after area of North East Ipswich, this well-presented three bedroom semi-detached house offers a perfect blend of comfort, space, and convenience. Positioned in a tranquil residential setting, this property is ideal for families seeking a peaceful retreat while still ...
Property Oracle says ..
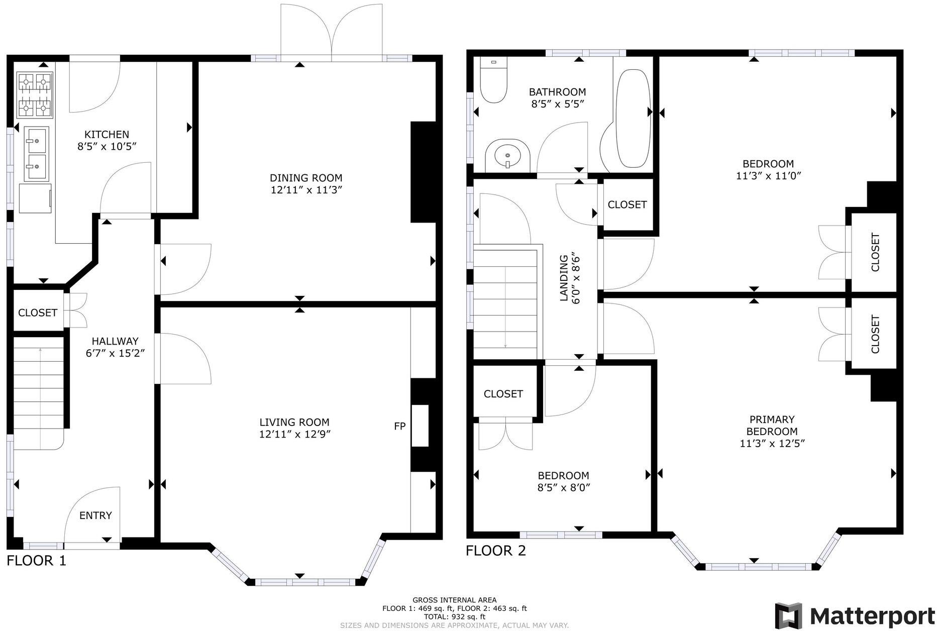
This is a semi-detached property on Colchester Road, Ipswich, in the Rushmere locality. It features three bedrooms and one bathroom, with a total square footage of 850.29 sqft. The property appears to be in good condition, with a well-maintained interior and exterior. It also benefits from a generously sized garden with a shed. The location is convenient, with several schools and transportation options nearby. The asking price of £290,000 seems reasonable given the property’s condition, location, and the prices of comparable properties in the area. The property is conveniently located close to local schools and amenities. The house has a modern feel and would be ideal for a family.
Therefore, we give this property 7 / 10. *Disclaimer: This is our option and does constitute a recommendation or financial advice. Do your own research. *
- Price
- 7
- Condition
- 7
- Location
- 7
- Land
- 8
- Bedrooms
- 3
- Bathrooms
- 1
- Sqft (est)
- 850.29
The heatmap indicates the level of crime in the area. The color of the heatmap indicates the crime severity and recency.
Metrics Year-on-Year
- Average area value
- 200,000.00 £Decreased by 41.39 %
- Est sale value
- 159,854.52 £Decreased by 41.98 %
- Average area rental value
- 1,350.00 £/moIncreased by 41.66 %
- Est letting value
- 850.29 £/mo
- Est rental Yield
- 8.10 %Increased by 141.79 %
- Crime Rate
- 5.00 %Unchanged by 0.00 %
Agent Activity
Joseph Property Agency created the listing.
Nearby Schools
| Name | Type | Ofsted | Distance |
|---|---|---|---|
| Rushmere Hall Primary School | Academy Converter | 0.54 KM | |
| St Christopher'S Academy | Academy Alternative Provision Converter | 0.61 KM | |
| Wooden House Children'S Centre | Children's Centre | 0.61 KM | |
| St John'S Church Of England Voluntary Aided Primary School, Ipswich | Voluntary Aided School | Good | 0.79 KM |
| Parkside Academy | Academy Alternative Provision Converter | Requires improvement | 0.88 KM |
Images
Nearby Streets
| Name | Average Price | Average Sqft | Distance |
|---|---|---|---|
| The Drift | £ 300,000 | 0 | 0.00 KM |
| Victory Road | £ 280,000 | 0 | 0.00 KM |
| Orkney Road | £ 0 | 0 | 0.00 KM |
| Ladywood Road | £ 0 | 0 | 0.00 KM |
| Halliwell Road | £ 375,000 | 0 | 0.00 KM |
Nearby Transport
| Name | NLC | TLC | Distance |
|---|---|---|---|
| Derby Road (Ipswich) | 7212 | DBR | 1.98 KM |
| Westerfield | 7226 | WFI | 3.16 KM |
| Ipswich | 7217 | IPS | 5.40 KM |
Nearby Listings
| Address | Price | Type | Score | Distance |
|---|---|---|---|---|
| Colchester Road, Ipswich, IP4 | £ 300,000 | BUY | 7 / 10 | 0.00 KM |
| Colchester Road, Ipswich, IP4 | £ 290,000 | BUY | 7 / 10 | 0.00 KM |
| Colchester Road, Ipswich | £ 400,000 | BUY | Unknown | 0.09 KM |
| Caithness Close, Ipswich, IP4 | £ 300,000 | BUY | 7 / 10 | 0.12 KM |
| Colchester Road, Ipswich, IP4 | £ 475,000 | BUY | 6 / 10 | 0.13 KM |
Nearby Properties
| Address | Price | Distance |
|---|---|---|
| 224 Colchester Road | £ 320,000 | 0.09 KM |
| 226 Colchester Road | £ 253,000 | 0.09 KM |
| 230 Colchester Road | £ 290,000 | 0.09 KM |
| 238 Colchester Road | £ 200,000 | 0.09 KM |
| 240 Colchester Road | £ 402,000 | 0.09 KM |