Saltburn Road, Wallasey Village
By Harper & Woods
£ 344,950
Reviews
3 out of 5 stars
Harper & Woods says ..
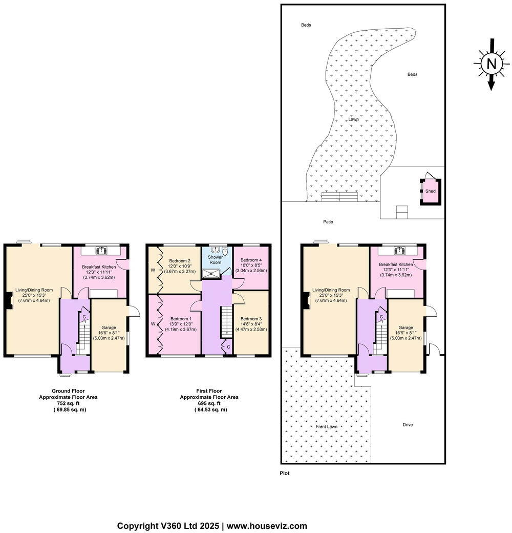
If you are looking for a family home in a great location to put your own stamp on, then this is surely the home for you! Sold with no chain, this four bedroom, immaculately kept, detached home with garage, driveway, and a large-sized garden, really ticks all the boxes for the foundations of a ...
Property Oracle says ..
This is a detached property located on Saltburn Road in Wallasey Village. The house has four bedrooms and one bathroom, with a square footage of 1,171.26. It features a garden and off-street parking. The property is conveniently located near local transportation and schools. While the property is in reasonable condition, it would benefit from some modernisation, particularly in the kitchen and bathroom. The asking price of £344,950 appears slightly high compared to the average price in the area, considering the condition and the average price per square foot.
Therefore, we give this property 6 / 10. *Disclaimer: This is our option and does constitute a recommendation or financial advice. Do your own research. *
- Price
- 6
- Condition
- 5
- Location
- 7
- Land
- 7
- Bedrooms
- 4
- Bathrooms
- 1
- Sqft (est)
- 1,171.26
The heatmap indicates the level of crime in the area. The color of the heatmap indicates the crime severity and recency.
Metrics Year-on-Year
- Average area value
- 283,568.00 £Increased by 1.75 %
- Est sale value
- 260,019.72 £Increased by 2.30 %
- Average area rental value
- 825.00 £/moDecreased by 19.67 %
- Est letting value
- 0.00 £/mo
- Est rental Yield
- 3.49 %Decreased by 21.04 %
- Crime Rate
- 13.00 %Unchanged by 0.00 %
Agent Activity
Harper & Woods created the listing.
Nearby Schools
| Name | Type | Ofsted | Distance |
|---|---|---|---|
| Greenleas Primary School | Community School | Good | 0.49 KM |
| St Mary'S Catholic College, A Voluntary Academy | Academy Sponsor Led | Requires improvement | 0.92 KM |
| The Mosslands School | Community School | Requires improvement | 0.95 KM |
| St George'S Primary School | Community School | Good | 1.20 KM |
| Holy Spirit Catholic And Church Of England Primary School | Voluntary Aided School | Good | 1.74 KM |
Images
Nearby Streets
| Name | Average Price | Average Sqft | Distance |
|---|---|---|---|
| Bangor Road | £ 380,000 | 0 | 0.00 KM |
| Cross Lane | £ 0 | 0 | 0.00 KM |
| Southcroft Road | £ 0 | 0 | 0.00 KM |
| Wood Lane | £ 0 | 0 | 0.00 KM |
| Somerset Road | £ 0 | 0 | 0.00 KM |
Nearby Transport
| Name | NLC | TLC | Distance |
|---|---|---|---|
| Wallasey Village | 2265 | WLV | 0.47 KM |
| Wallasey Grove Road | 2154 | WLG | 0.56 KM |
| Bidston | 2136 | BID | 1.79 KM |
| Birkenhead North | 2145 | BKN | 2.80 KM |
| New Brighton | 2152 | NBN | 3.14 KM |
Nearby Listings
| Address | Price | Type | Score | Distance |
|---|---|---|---|---|
| Saltburn Road, Wallasey Village | £ 344,950 | BUY | 6 / 10 | 0.00 KM |
| Saltburn Road, Wallasey Village, Wirral, CH45 | £ 320,000 | BUY | 7 / 10 | 0.10 KM |
| Malvern Road, Wallasey, Merseyside, CH45 | £ 235,000 | BUY | 7 / 10 | 0.12 KM |
| Redcar Road, Wallasey, Wirral | £ 450,000 | BUY | 6 / 10 | 0.13 KM |
| Malvern Road, Wallasey Village | £ 245,000 | BUY | 7 / 10 | 0.14 KM |
Nearby Properties
| Address | Price | Distance |
|---|---|---|
| 66 Saltburn Road | £ 105,000 | 0.01 KM |
| 74 Saltburn Road | £ 185,000 | 0.01 KM |
| 57 Saltburn Road | £ 245,000 | 0.01 KM |
| 63 Saltburn Road | £ 252,500 | 0.01 KM |
| 61 Saltburn Road | £ 222,500 | 0.01 KM |