TR
Rye Lane, Peckham, SE15
By Truepenny's Property Consultants
£ 375,000
Reviews
3 out of 5 stars
Truepenny's Property Consultants says ..
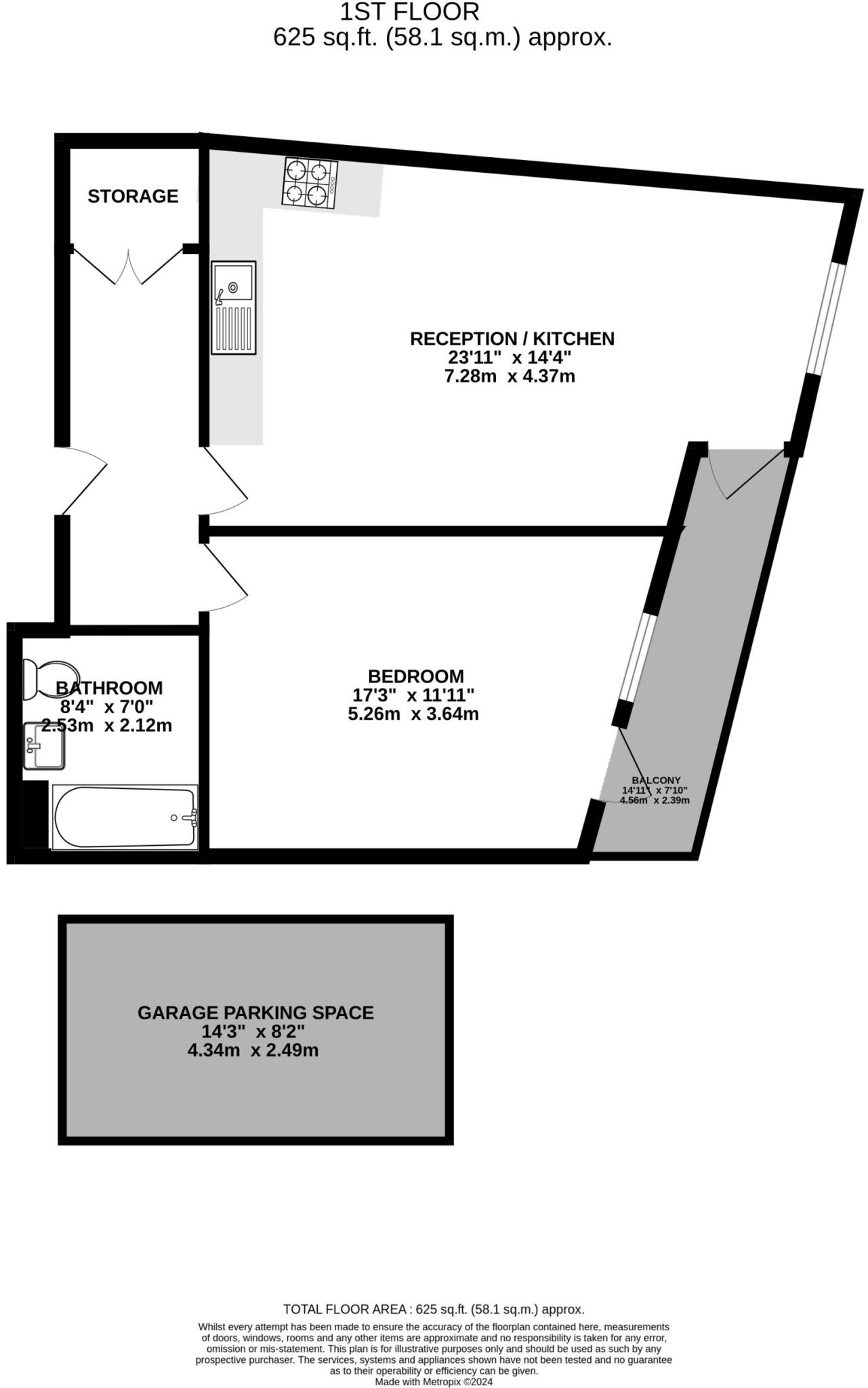
High-spec one-bedroom first-floor apartment offering approximately 600 sq ft of stylishly presented accommodation. This property, situated in the heart of Peckham, includes the rare benefit of a private garage space.
Property Oracle says ..
Therefore, we give this property 7 / 10. *Disclaimer: This is our option and does constitute a recommendation or financial advice. Do your own research. *
- Price
- 9
- Condition
- 9
- Location
- 8
- Land
- 3
- Bedrooms
- 1
- Bathrooms
- 1
- Sqft (est)
- 839.33
The heatmap indicates the level of crime in the area. The color of the heatmap indicates the crime severity and recency.
Metrics Year-on-Year
- Average area value
- 905,000.00 £Increased by 17.49 %
- Est sale value
- 1,031,536.57 £Increased by 35.35 %
- Average area rental value
- 1,965.00 £/moDecreased by 22.91 %
- Est letting value
- 1,678.66 £/moDecreased by 33.33 %
- Est rental Yield
- 2.61 %Decreased by 34.26 %
- Crime Rate
- 9.00 %Unchanged by 0.00 %
from 770,293.00 £
from 762,111.64 £
from 2,549.00 £/mo
from 2,517.99 £/mo
from 3.97 %
from 9.00 %
Agent Activity
Truepenny's Property Consultants created the listing.
Nearby Schools
| Name | Type | Ofsted | Distance |
|---|---|---|---|
| Bellenden Primary School | Community School | Good | 0.34 KM |
| St Mary Magdalene Church Of England Primary School | Voluntary Aided School | Good | 0.39 KM |
| Rye Oak Primary School & Children'S Centre | Children's Centre | 0.44 KM | |
| Rye Oak Primary School | Community School | Good | 0.49 KM |
| St John'S And St Clement'S Primary School Co Hearing Impaired Unit | Miscellaneous | 0.78 KM |
Images
Nearby Streets
| Name | Average Price | Average Sqft | Distance |
|---|---|---|---|
| Rye Passage | £ 0 | 0 | 0.00 KM |
| Bishop Wilfred Wood Close | £ 0 | 0 | 0.00 KM |
| Nazareth Gardens | £ 900,000 | 0 | 0.00 KM |
| McKerrell Road | £ 259,000 | 0 | 0.00 KM |
| McDermott Road | £ 0 | 0 | 0.00 KM |
Nearby Transport
| Name | NLC | TLC | Distance |
|---|---|---|---|
| Peckham Rye | 5423 | PMR | 0.43 KM |
| Queens Road Peckham | 5424 | QRP | 1.20 KM |
| Nunhead | 5068 | NHD | 1.56 KM |
| East Dulwich | 5358 | EDW | 1.71 KM |
| Denmark Hill | 5421 | DMK | 2.55 KM |
Nearby Listings
| Address | Price | Type | Score | Distance |
|---|---|---|---|---|
| Rye Lane, Peckham, SE15 | £ 375,000 | BUY | 7 / 10 | 0.00 KM |
| Rye Lane, Peckham, SE15 | £ 390,000 | BUY | 5 / 10 | 0.00 KM |
| 243 Rye Lane, London, SE15 | £ 725,000 | BUY | 6 / 10 | 0.00 KM |
| 243 Rye Lane, Peckham, SE15 | £ 400,000 | BUY | 7 / 10 | 0.00 KM |
| Rye Lane, London, SE15 | £ 475,000 | BUY | 5 / 10 | 0.02 KM |
Nearby Properties
| Address | Price | Distance |
|---|---|---|
| 215 - 217 Rye Lane | £ 248,000 | 0.03 KM |
| 11 Hazel Close | £ 230,000 | 0.06 KM |
| 9 Hazel Close | £ 142,000 | 0.06 KM |
| 5 Hazel Close | £ 465,000 | 0.06 KM |
| 1 Hazel Close | £ 191,000 | 0.06 KM |