PO
Sunderland Terrace, Ulverston
By Poole Townsend
£ 230,000
Poole Townsend says ..
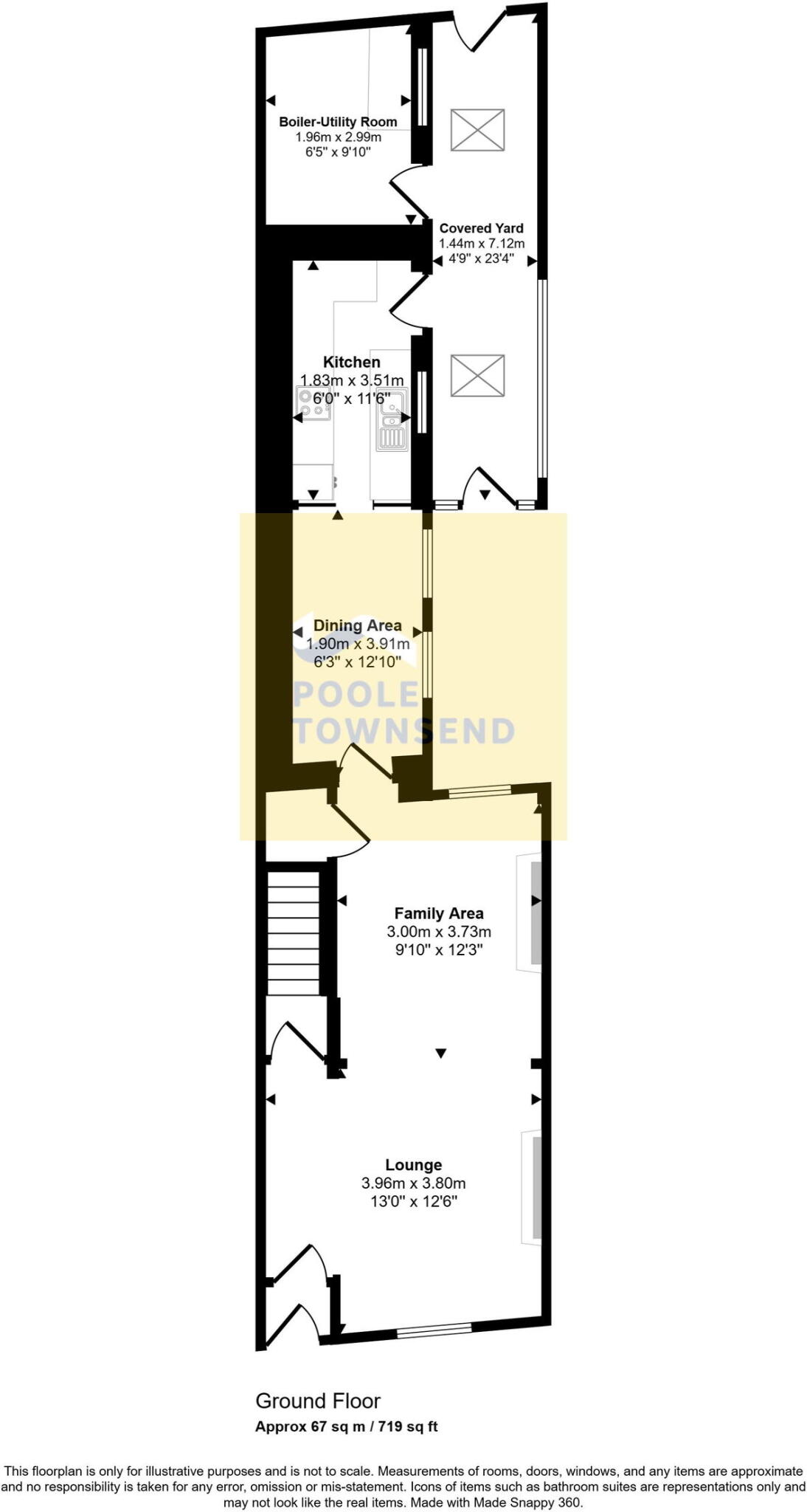
Nicely situated on the outskirts of this historic market town, enjoying excellent kerb appeal and views to Hoad at the rear. The living accommodation is open plan with the lounge/family area leading into a dining space and onwards into the modern fitted kitchen with integrated appliances. Ther...
- Bedrooms
- 3
- Bathrooms
- 1
The heatmap indicates the level of crime in the area. The color of the heatmap indicates the crime severity and recency.
Metrics Year-on-Year
- Average area value
- 603,889.00 £Increased by 40.02 %
- Average area rental value
- 1,340.00 £/moIncreased by 1.44 %
- Est rental Yield
- 2.66 %Decreased by 27.72 %
- Crime Rate
- 30.00 %Unchanged by 0.00 %
from 431,274.00 £
from 1,321.00 £/mo
from 3.68 %
from 30.00 %
Agent Activity
Poole Townsend marked this listing as sold.
Poole Townsend created the listing.
Nearby Schools
| Name | Type | Ofsted | Distance |
|---|---|---|---|
| Ulverston Surestart Children'S Centre | Children's Centre | 0.38 KM | |
| Sir John Barrow School | Community School | Good | 0.55 KM |
| Church Walk Cofe Primary School | Voluntary Aided School | Good | 0.58 KM |
| Ulverston Victoria High School | Community School | Good | 1.28 KM |
| St Mary'S Catholic Primary School | Voluntary Aided School | Good | 1.30 KM |
Images
Nearby Streets
| Name | Average Price | Average Sqft | Distance |
|---|---|---|---|
| Swan Street | £ 0 | 0 | 0.00 KM |
| Victoria Road | £ 155,000 | 0 | 0.00 KM |
| Bailey Street | £ 0 | 0 | 0.00 KM |
| William Street | £ 0 | 0 | 0.00 KM |
| Ellerside | £ 265,000 | 0 | 0.00 KM |
Nearby Transport
| Name | NLC | TLC | Distance |
|---|---|---|---|
| Ulverston | 2010 | ULV | 1.35 KM |
Nearby Listings
| Address | Price | Type | Score | Distance |
|---|---|---|---|---|
| Sunderland Terrace, Ulverston | £ 230,000 | BUY | Unknown | 0.00 KM |
| Sunderland Terrace, Ulverston, Cumbria | £ 230,000 | BUY | 6 / 10 | 0.03 KM |
| Willow Tree Close, Ulverston, Cumbria | £ 198,750 | BUY | 6 / 10 | 0.05 KM |
| QUAY STREET, ULVERSTON, LA12 9AT | £ 115,000 | BUY | 7 / 10 | 0.10 KM |
| Quay Street, Ulverston, Cumbria | £ 425,000 | BUY | 6 / 10 | 0.11 KM |
Nearby Properties
| Address | Price | Distance |
|---|---|---|
| 30 Sunderland Terrace | £ 153,000 | 0.01 KM |
| 70 Sunderland Terrace | £ 113,500 | 0.01 KM |
| 6 Sunderland Terrace | £ 149,000 | 0.01 KM |
| 34 Sunderland Terrace | £ 146,250 | 0.01 KM |
| 54 Sunderland Terrace | £ 148,950 | 0.01 KM |