Farm Road, Aldershot, Hampshire, GU12
By Bridges Estate Agents
£ 425,000
Reviews
3 out of 5 stars
Bridges Estate Agents says ..
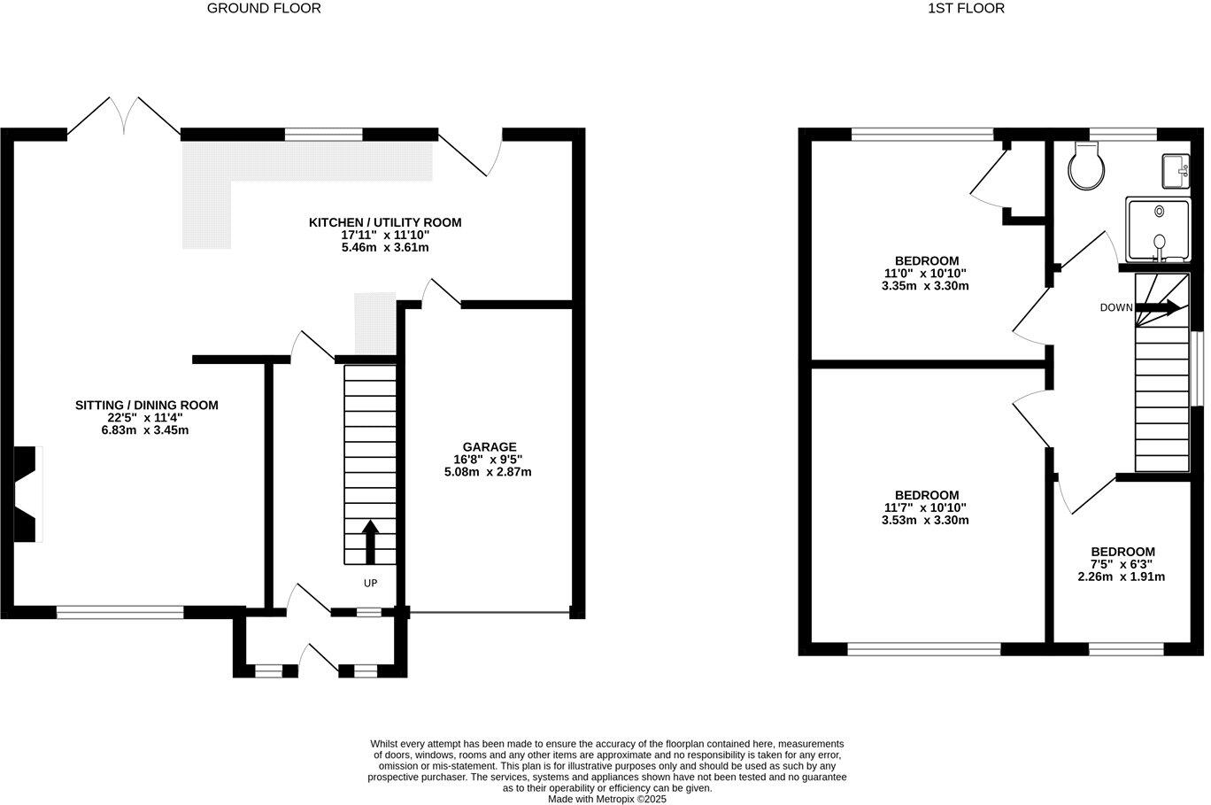
A well presented semi-detached family home, positioned in one of Aldershot's most sought after residential locations. The property is set over two floors, and the internal accommodation is presented in fantastic order throughout. The ground floor offers a wow factor open planned living area with ...
Property Oracle says ..
This property is a 3-bedroom semi-detached house located on Farm Road in Aldershot, Hampshire. The list price is £425,000, and the property has 1507.59 sqft of living space. The average house price in the area is £307,026, with an average price per sqft of £331. Nearby properties range in price from £217,500 to £450,000. The property benefits from a modern kitchen and bathroom, and appears to be well-maintained. There is also a garden and a garage. The property is conveniently located near several schools and transportation links. Given the property’s condition, location, and size, the list price appears to be slightly above average for the area, but still within the range of comparable properties.
Therefore, we give this property 7 / 10. *Disclaimer: This is our option and does constitute a recommendation or financial advice. Do your own research. *
- Price
- 7
- Condition
- 9
- Location
- 8
- Land
- 7
- Bedrooms
- 3
- Bathrooms
- 1
- Sqft (est)
- 1,507.59
The heatmap indicates the level of crime in the area. The color of the heatmap indicates the crime severity and recency.
Metrics Year-on-Year
- Average area value
- 336,995.00 £Increased by 12.55 %
- Est sale value
- 685,953.45 £Increased by 43.53 %
- Average area rental value
- 1,032.00 £/moDecreased by 12.32 %
- Est letting value
- 1,507.59 £/moUnchanged by 0.00 %
- Est rental Yield
- 3.67 %Decreased by 22.25 %
- Crime Rate
- 2.00 %Unchanged by 0.00 %
Agent Activity
Bridges Estate Agents marked this listing as sold.
Bridges Estate Agents created the listing.
Nearby Schools
| Name | Type | Ofsted | Distance |
|---|---|---|---|
| Maple Vue Children'S Centre | Children's Centre | 1.15 KM | |
| Alderwood School | Community School | Good | 1.17 KM |
| Walsh Memorial Cofe Controlled Infant School | Voluntary Controlled School | Outstanding | 1.24 KM |
| Walsh Cofe Junior School | Voluntary Controlled School | Requires improvement | 1.24 KM |
| Shawfield Primary School | Community School | Good | 1.27 KM |
Images
Nearby Streets
| Name | Average Price | Average Sqft | Distance |
|---|---|---|---|
| Lea Way | £ 350,000 | 0 | 0.00 KM |
| Harvest Lane | £ 0 | 0 | 0.00 KM |
| Tudor Court | £ 0 | 0 | 0.00 KM |
| Windsor Gardens | £ 0 | 0 | 0.00 KM |
| Alpha Road | £ 0 | 0 | 0.00 KM |
Nearby Transport
| Name | NLC | TLC | Distance |
|---|---|---|---|
| Ash | 5641 | ASH | 2.42 KM |
| North Camp | 5636 | NCM | 2.60 KM |
| Ash Vale | 5547 | AHV | 2.60 KM |
| Aldershot | 5623 | AHT | 2.89 KM |
| Farnborough (Main) | 5521 | FNB | 5.42 KM |
Nearby Listings
| Address | Price | Type | Score | Distance |
|---|---|---|---|---|
| Farm Road, Aldershot, Hampshire, GU12 | £ 425,000 | BUY | 7 / 10 | 0.00 KM |
| Field Way, Aldershot, Hampshire, GU12 | £ 400,000 | BUY | 6 / 10 | 0.06 KM |
| Farm Road, Aldershot, Hampshire, GU12 | £ 475,000 | BUY | 7 / 10 | 0.07 KM |
| Field Way, Aldershot, Hampshire | £ 515,000 | BUY | 7 / 10 | 0.10 KM |
| Field Way, Aldershot, Hampshire, GU12 | £ 350,000 | BUY | 7 / 10 | 0.12 KM |
Nearby Properties
| Address | Price | Distance |
|---|---|---|
| 11 Farm Road | £ 343,000 | 0.01 KM |
| 32 Farm Road | £ 250,000 | 0.01 KM |
| 22 Farm Road | £ 84,000 | 0.01 KM |
| 29 Farm Road | £ 450,000 | 0.01 KM |
| 24 Farm Road | £ 217,500 | 0.01 KM |