Twycross Road, Wokingham, Berkshire
By Avocado Property
£ 1,300,000
Reviews
4 out of 5 stars
Avocado Property says ..
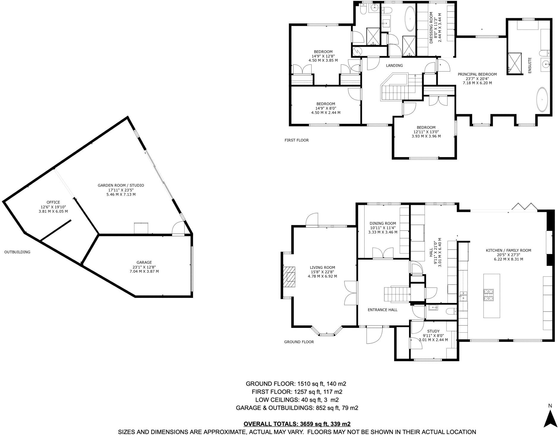
Marketed by Matt and Matt at Avocado Wokingham is this dream family home designed for living, working and entertaining.
Property Oracle says ..
Therefore, we give this property 8 / 10. *Disclaimer: This is our option and does constitute a recommendation or financial advice. Do your own research. *
- Price
- 8
- Condition
- 9
- Location
- 7
- Land
- 9
- Bedrooms
- 4
- Bathrooms
- 3
- Sqft (est)
- 3,117.23
The heatmap indicates the level of crime in the area. The color of the heatmap indicates the crime severity and recency.
Metrics Year-on-Year
- Average area value
- 561,923.00 £Increased by 17.28 %
- Est sale value
- 1,717,593.73 £Increased by 30.57 %
- Average area rental value
- 1,746.00 £/moDecreased by 3.54 %
- Est letting value
- 3,117.23 £/moUnchanged by 0.00 %
- Est rental Yield
- 3.73 %Decreased by 17.66 %
- Crime Rate
- 1.00 %Unchanged by 0.00 %
from 479,130.00 £
from 1,315,471.06 £
from 1,810.00 £/mo
from 3,117.23 £/mo
from 4.53 %
from 1.00 %
Agent Activity
Avocado Property created the listing.
Nearby Schools
| Name | Type | Ofsted | Distance |
|---|---|---|---|
| Brambles Children'S Centre | Children's Centre | 0.51 KM | |
| Keep Hatch Primary School | Academy Converter | 0.59 KM | |
| Foundry College | Pupil Referral Unit | Good | 0.62 KM |
| All Saints Cofe (Aided) Primary School | Voluntary Aided School | Good | 0.68 KM |
| St Crispin'S School | Academy Converter | 0.75 KM |
Images
Nearby Streets
| Name | Average Price | Average Sqft | Distance |
|---|---|---|---|
| Sundew Close | £ 0 | 0 | 0.00 KM |
| Binfield Road | £ 0 | 0 | 0.00 KM |
| Neville Close | £ 1,100,000 | 0 | 0.00 KM |
| Phoenix Avenue | £ 470,000 | 0 | 0.00 KM |
| Tudor Close | £ 0 | 0 | 0.00 KM |
Nearby Transport
| Name | NLC | TLC | Distance |
|---|---|---|---|
| Wokingham | 5696 | WKM | 2.79 KM |
| Crowthorne | 5628 | CRN | 5.47 KM |
| Winnersh | 5697 | WNS | 6.73 KM |
| Bracknell | 5693 | BCE | 7.31 KM |
| Sandhurst (Berks) | 5646 | SND | 7.80 KM |
Nearby Listings
| Address | Price | Type | Score | Distance |
|---|---|---|---|---|
| Twycross Road, Wokingham, Berkshire | £ 1,300,000 | BUY | 8 / 10 | 0.00 KM |
| Clover Close, Wokingham, Berkshire | £ 415,000 | BUY | 6 / 10 | 0.12 KM |
| Trefoil Close, Wokingham, RG40 | £ 400,000 | BUY | 6 / 10 | 0.15 KM |
| Binfield Road, Wokingham, Berkshire, RG40 | £ 725,000 | BUY | Unknown | 0.17 KM |
| Trefoil Close, Wokingham, Berkshire, RG40 | £ 550,000 | BUY | 6 / 10 | 0.18 KM |
Nearby Properties
| Address | Price | Distance |
|---|---|---|
| 5 Clover Close | £ 420,000 | 0.12 KM |
| 11 Clover Close | £ 377,500 | 0.12 KM |
| 9 Clover Close | £ 190,000 | 0.12 KM |
| 6 Clover Close | £ 325,000 | 0.12 KM |
| 3 Clover Close | £ 510,000 | 0.12 KM |