London Road, Pembroke Dock, Pembrokeshire, SA72
By John Francis
£ 100,000
Reviews
2 out of 5 stars
John Francis says ..
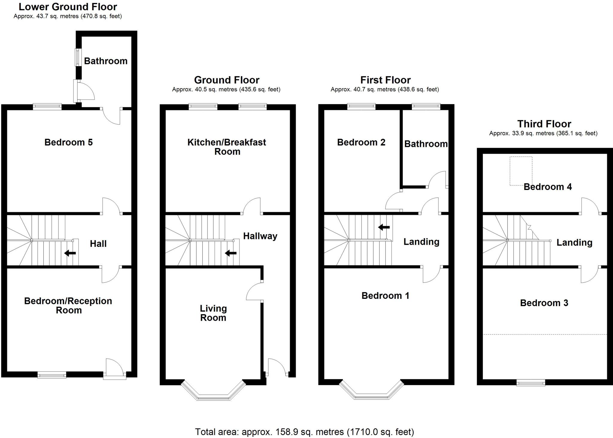
**** Auction Sale **** This spacious four storey town house is conveniently positioned within Pembroke Dock for town’s facilities, amenities, transport links and the Cleddau estuary. The accommodation in brief offers four/five bedrooms, two reception rooms and two bathrooms. The layout...
Property Oracle says ..
This property is a 5 bedroom, 2 bathroom terraced house located on London Road in Pembroke Dock, Pembrokeshire. The property benefits from a rear garden. While the location is convenient to local amenities and transportation, the condition of the property requires significant attention. The list price of £100,000 is considerably lower than the average price for the area, but this is likely due to the property needing extensive renovation. The lack of square footage information for the property makes a precise price per square foot comparison difficult, but based on comparable properties in the area, the list price may be reasonable considering the required work.
Therefore, we give this property 5 / 10. *Disclaimer: This is our option and does constitute a recommendation or financial advice. Do your own research. *
- Price
- 7
- Condition
- 3
- Location
- 7
- Land
- 6
- Bedrooms
- 5
- Bathrooms
- 2
- Lot (est)
- 158.90
The heatmap indicates the level of crime in the area. The color of the heatmap indicates the crime severity and recency.
Metrics Year-on-Year
- Average area value
- 278,905.00 £Increased by 2.67 %
- Average area rental value
- 800.00 £/moDecreased by 34.53 %
- Est rental Yield
- 3.44 %Decreased by 36.30 %
- Crime Rate
- 23.00 %Unchanged by 0.00 %
Agent Activity
John Francis created the listing.
Nearby Schools
| Name | Type | Ofsted | Distance |
|---|---|---|---|
| Pembroke Dock Cp School | Welsh Establishment | 0.51 KM | |
| Ysgol Harri Tudur/Henry Tudor School | Welsh Establishment | 1.53 KM | |
| Pembrokeshire Pupil Referral Service | Welsh Establishment | 2.10 KM | |
| Pennar Community School | Welsh Establishment | 2.12 KM | |
| Monkton Priory Cp School | Welsh Establishment | 2.32 KM |
Images
Nearby Streets
| Name | Average Price | Average Sqft | Distance |
|---|---|---|---|
| King William Street | £ 0 | 0 | 0.00 KM |
| Hawkstone Road | £ 0 | 0 | 0.00 KM |
| Gloucester Way | £ 0 | 0 | 0.00 KM |
| Argyle Street | £ 225,000 | 0 | 0.00 KM |
| St. John's Road | £ 0 | 0 | 0.00 KM |
Nearby Transport
| Name | NLC | TLC | Distance |
|---|---|---|---|
| Pembroke Dock | 4102 | PMD | 0.27 KM |
| Pembroke | 4101 | PMB | 4.12 KM |
| Lamphey | 4084 | LAM | 7.59 KM |
| Johnston (Pembs) | 4081 | JOH | 9.55 KM |
Nearby Listings
| Address | Price | Type | Score | Distance |
|---|---|---|---|---|
| London Road, Pembroke Dock, Pembrokeshire, SA72 | £ 100,000 | BUY | 5 / 10 | 0.00 KM |
| London Road, Pembroke Dock,, Pembrokeshire., SA72 | £ 65,000 | BUY | 4 / 10 | 0.00 KM |
| London Road, Pembroke Dock | £ 115,000 | BUY | 6 / 10 | 0.01 KM |
| London Road, Pembroke Dock | £ 120,000 | BUY | 5 / 10 | 0.08 KM |
| 21 London Road, Pembroke Dock | £ 165,000 | BUY | 7 / 10 | 0.08 KM |
Nearby Properties
| Address | Price | Distance |
|---|---|---|
| 58 London Road | £ 101,000 | 0.00 KM |
| 66 London Road | £ 117,500 | 0.00 KM |
| 52 London Road | £ 95,000 | 0.00 KM |
| 44 London Road | £ 85,000 | 0.00 KM |
| 82 London Road | £ 79,000 | 0.00 KM |