haart says ..
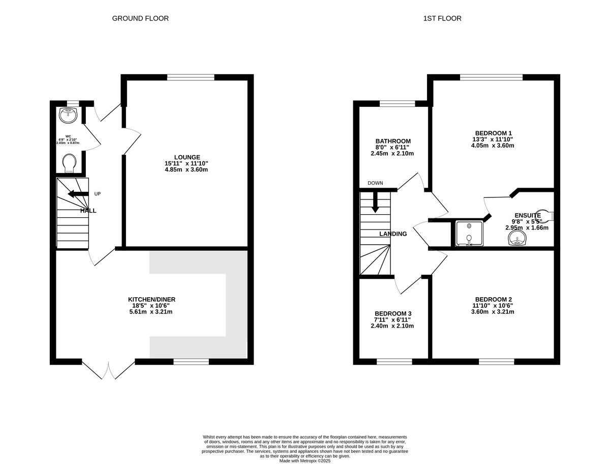
Modern and beautifully presented Bellway-built home in a popular family-friendly location. This 3-bedroom detached property features a spacious lounge, stylish open-plan kitchen/diner with integrated appliances, and patio doors leading to a private garden with decking—ideal for entertaining
Property Oracle says ..
This property is a three-bedroom, two-bathroom detached house located in Aylesbury, Buckinghamshire. The property is presented in excellent condition and benefits from a modern, well-maintained interior. The images show a recently decorated interior with modern fixtures and fittings. The property also has a rear garden with a decked area, ideal for outdoor entertaining. The location is convenient, with nearby schools and transport links. The asking price is slightly below the average price for the area, making it potentially good value for money, especially considering its condition and features. However, the lack of plot size information in the listing could impact the overall value assessment.
Therefore, we give this property 8 / 10. *Disclaimer: This is our option and does constitute a recommendation or financial advice. Do your own research. *
- Price
- 8
- Condition
- 9
- Location
- 8
- Land
- 7
- Bedrooms
- 3
- Bathrooms
- 2
- Sqft (est)
- 1,249.47
The heatmap indicates the level of crime in the area. The color of the heatmap indicates the crime severity and recency.
Metrics Year-on-Year
- Average area value
- 554,375.00 £Increased by 7.09 %
- Est sale value
- 814,654.44 £Increased by 33.06 %
- Average area rental value
- 1,490.00 £/moDecreased by 17.22 %
- Est letting value
- 1,249.47 £/moUnchanged by 0.00 %
- Est rental Yield
- 3.23 %Decreased by 22.54 %
- Crime Rate
- 11.00 %Unchanged by 0.00 %
Agent Activity
haart created the listing.
Nearby Schools
| Name | Type | Ofsted | Distance |
|---|---|---|---|
| The Aylesbury Vale Academy | Academy Sponsor Led | Good | 0.53 KM |
| Berryfields Family Centre (Aylesbury) | Children's Centre | 0.64 KM | |
| Green Ridge Primary Academy | Free Schools | 0.91 KM | |
| Thomas Hickman School | Community School | Good | 1.74 KM |
| Benjamin College | Other Independent Special School | Good | 2.34 KM |
Images
Nearby Streets
| Name | Average Price | Average Sqft | Distance |
|---|---|---|---|
| Pomeroy Court | £ 0 | 0 | 0.00 KM |
| Thornley Close | £ 0 | 0 | 0.00 KM |
| Oldfield Street | £ 425,000 | 0 | 0.00 KM |
| Newton Avenue | £ 349,167 | 0 | 0.00 KM |
| Riverside Walk | £ 0 | 0 | 0.00 KM |
Nearby Transport
| Name | NLC | TLC | Distance |
|---|---|---|---|
| Aylesbury Vale Parkway | 1090 | AVP | 1.43 KM |
| Aylesbury | 1492 | AYS | 4.72 KM |
| Stoke Mandeville | 1467 | SKM | 9.21 KM |
Nearby Listings
| Address | Price | Type | Score | Distance |
|---|---|---|---|---|
| Siddington Drive, Aylesbury | £ 425,000 | BUY | 8 / 10 | 0.00 KM |
| Siddington Drive, Aylesbury | £ 650,000 | BUY | 8 / 10 | 0.03 KM |
| Arch Grove, Aylesbury | £ 695,000 | BUY | Unknown | 0.07 KM |
| Amber Close, Aylesbury | £ 600,000 | BUY | Unknown | 0.09 KM |
| Arch Grove, Aylesbury | £ 425,000 | BUY | Unknown | 0.10 KM |
Nearby Properties
| Address | Price | Distance |
|---|---|---|
| 1 Averdal Drive | £ 349,950 | 0.05 KM |
| 2 Prima Road | £ 550,000 | 0.13 KM |
| 43 Siddington Drive | £ 525,000 | 0.17 KM |
| 55 Siddington Drive | £ 167,500 | 0.17 KM |
| 57 Siddington Drive | £ 210,000 | 0.17 KM |