WPF Properties Ltd says ..
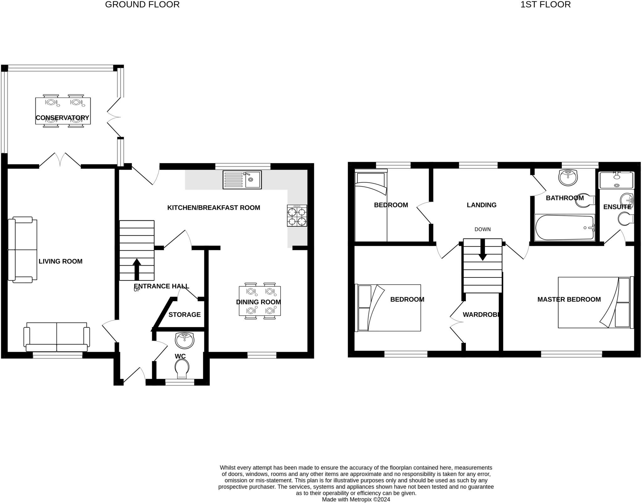
Modern Detached, Three Bedrooms, En Suite to Master, Parking for Five Vehicles, Well Presented, Viewing Recommended. WP Fitzpatrick are delighted to offer for sale this modern three bedroom detached home in Newton to the East of Hyde Town Centre. Newton is a thriving local community which is well...
Property Oracle says ..
This three-bedroom, two-bathroom detached house in Ferndale, Hyde, presents itself as a comfortable family home. The property boasts a modern aesthetic, with updated fixtures and fittings evident in the kitchen and bathrooms. The interior is presented in a clean and well-maintained manner, suggesting minimal need for immediate renovation. The exterior photos showcase a neat lawn and garden, adding to the overall appeal. The location in Ferndale benefits from relatively good access to local schools, and Newton for Hyde train station provides a commuting advantage. While Hyde itself might not be viewed as a top-tier location in Greater Manchester, the property’s value appears to be justified given comparable property prices in the area. More precise square footage data for comparable properties would provide a more definitive assessment of the list price. The property represents a decent family home in a location providing a balance of convenience and residential tranquility.
Therefore, we give this property 6 / 10. *Disclaimer: This is our option and does constitute a recommendation or financial advice. Do your own research. *
- Price
- 7
- Condition
- 7
- Location
- 7
- Land
- 6
- Bedrooms
- 3
- Bathrooms
- 2
- Sqft (est)
- 1,300.00
The heatmap indicates the level of crime in the area. The color of the heatmap indicates the crime severity and recency.
Metrics Year-on-Year
- Average area value
- 241,667.00 £Increased by 2.45 %
- Est sale value
- 349,700.00 £Increased by 0.37 %
- Average area rental value
- 948.00 £/moDecreased by 4.53 %
- Est letting value
- 1,300.00 £/moUnchanged by 0.00 %
- Est rental Yield
- 4.71 %Decreased by 6.73 %
- Crime Rate
- 0.00 %
Agent Activity
WPF Properties Ltd marked this listing as sold.
WPF Properties Ltd created the listing.
Nearby Schools
| Name | Type | Ofsted | Distance |
|---|---|---|---|
| Broadbent Fold Primary School And Nursery | Community School | Good | 0.62 KM |
| Bradley Green Primary Academy | Academy Converter | Good | 0.63 KM |
| St Paul'S Catholic Primary School | Voluntary Aided School | Good | 1.29 KM |
| Oakfield Primary And Moderate Learning Difficulties Resource Provision | Academy Converter | Good | 1.32 KM |
| Cromwell High School | Community Special School | Outstanding | 1.44 KM |
Images
Nearby Streets
| Name | Average Price | Average Sqft | Distance |
|---|---|---|---|
| Yew Tree Lane | £ 304,995 | 0 | 0.00 KM |
| Cook Street | £ 69,000 | 0 | 0.00 KM |
| Hilton Street | £ 235,000 | 0 | 0.00 KM |
| Hunt Road | £ 0 | 0 | 0.00 KM |
| Dryden Close | £ 0 | 0 | 0.00 KM |
Nearby Transport
| Name | NLC | TLC | Distance |
|---|---|---|---|
| Newton For Hyde | 2789 | NWN | 1.45 KM |
| Godley | 2948 | GDL | 1.67 KM |
| Stalybridge | 2983 | SYB | 2.09 KM |
| Flowery Field | 2786 | FLF | 2.53 KM |
| Hyde North | 2959 | HYT | 2.98 KM |
Nearby Listings
| Address | Price | Type | Score | Distance |
|---|---|---|---|---|
| Ferndale, HYDE, Cheshire, SK14 | £ 260,000 | BUY | 6 / 10 | 0.00 KM |
| Ferndale, Hyde, Cheshire, SK14 | £ 310,000 | BUY | 7 / 10 | 0.01 KM |
| Ferndale, Hyde, Cheshire, SK14 | £ 275,000 | BUY | 6 / 10 | 0.01 KM |
| Ferndale, Hyde, SK14 4GP | £ 145,000 | BUY | 6 / 10 | 0.01 KM |
| Ferndale, Hyde | £ 450,000 | BUY | 8 / 10 | 0.10 KM |
Nearby Properties
| Address | Price | Distance |
|---|---|---|
| 29 Ferndale | £ 249,950 | 0.00 KM |
| 1 Ferndale | £ 235,000 | 0.00 KM |
| 15 Ferndale | £ 177,950 | 0.00 KM |
| 14 Ferndale | £ 380,000 | 0.00 KM |
| 3 Ferndale | £ 210,000 | 0.00 KM |