Boston Manor Road, Brentford, TW8
By Daniel Madden and Partners
£ 770,000
Reviews
3 out of 5 stars
Daniel Madden and Partners says ..
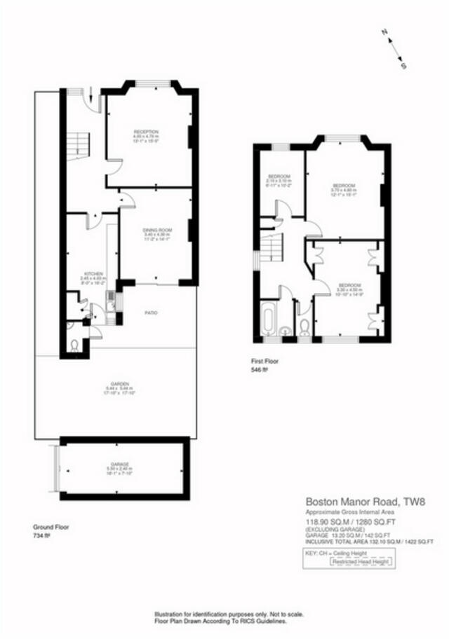
Offered to the market with no onward chain, this three-bedroom semi-detached residence presents an opportunity to acquire a home of character and charm with the ability to put your own stamp on the home
Property Oracle says ..
This semi-detached property on Boston Manor Road in Brentford offers a good balance of location, size, and potential. Its proximity to schools, transportation, and local amenities makes it an attractive option for families and commuters. While the property may benefit from some modernisation, it presents a solid opportunity for buyers looking to invest in a well-connected area of London. The garden is a notable feature, providing ample outdoor space. The price appears reasonable when compared to the local average, but prospective buyers should factor in renovation costs.
Therefore, we give this property 6 / 10. *Disclaimer: This is our option and does constitute a recommendation or financial advice. Do your own research. *
- Price
- 7
- Condition
- 6
- Location
- 7
- Land
- 7
- Bedrooms
- 3
- Bathrooms
- 1
- Sqft (est)
- 1,279.83
The heatmap indicates the level of crime in the area. The color of the heatmap indicates the crime severity and recency.
Metrics Year-on-Year
- Average area value
- 457,259.00 £Decreased by 25.19 %
- Est sale value
- 1,026,423.66 £Increased by 19.17 %
- Average area rental value
- 1,825.00 £/moDecreased by 10.23 %
- Est letting value
- 3,839.49 £/moIncreased by 50.00 %
- Est rental Yield
- 4.79 %Increased by 20.05 %
- Crime Rate
- 1.00 %Unchanged by 0.00 %
Agent Activity
Daniel Madden and Partners created the listing.
Nearby Schools
| Name | Type | Ofsted | Distance |
|---|---|---|---|
| Gunnersbury Catholic School | Voluntary Aided School | Outstanding | 0.60 KM |
| Our Lady And St John'S Catholic Primary School | Voluntary Aided School | Good | 0.72 KM |
| Log Cabin Children'S Centre | Children's Centre | 0.84 KM | |
| Ealing Fields High School | Free Schools | Good | 0.85 KM |
| Fielding Primary School | Community School | Outstanding | 0.87 KM |
Images
Nearby Streets
| Name | Average Price | Average Sqft | Distance |
|---|---|---|---|
| Murray Road | £ 630,000 | 0 | 0.00 KM |
| Mayo Court | £ 739,950 | 0 | 0.00 KM |
| Boston Manor Road | £ 0 | 0 | 0.00 KM |
| West Cross Way | £ 0 | 0 | 0.00 KM |
| Great West Road | £ 0 | 0 | 0.00 KM |
Nearby Transport
| Name | NLC | TLC | Distance |
|---|---|---|---|
| Brentford | 5552 | BFD | 1.25 KM |
| Syon Lane | 5609 | SYL | 1.43 KM |
| West Ealing | 3188 | WEA | 2.24 KM |
| Isleworth | 5592 | ISL | 2.84 KM |
| Drayton Green | 3099 | DRG | 2.85 KM |
Nearby Listings
| Address | Price | Type | Score | Distance |
|---|---|---|---|---|
| Boston Manor Road, Brentford, TW8 | £ 770,000 | BUY | 6 / 10 | 0.00 KM |
| Boston Manor Road Brentford | £ 849,950 | BUY | 6 / 10 | 0.00 KM |
| Boston Manor Road, Brentford, TW8 | £ 825,000 | BUY | Unknown | 0.00 KM |
| Boston Manor Road, Brentford, TW8 | £ 760,000 | BUY | 6 / 10 | 0.00 KM |
| Boston Manor Road, Brentford | £ 950,000 | BUY | Unknown | 0.14 KM |
Nearby Properties
| Address | Price | Distance |
|---|---|---|
| 106 Boston Manor Road | £ 300,000 | 0.12 KM |
| 140 Boston Manor Road | £ 317,500 | 0.12 KM |
| 142 Boston Manor Road | £ 455,000 | 0.12 KM |
| 128 Boston Manor Road | £ 440,000 | 0.12 KM |
| 134 Boston Manor Road | £ 780,000 | 0.12 KM |