Ocean says ..
Nestled at the top of a characterful Bristol hill, this light-filled Victorian end terrace is the perfect sanctuary. 3 bedrooms, home office, courtyard garden, and views galore! a rare opportunity to secure a proper family home in Totterdown.
Property Oracle says ..
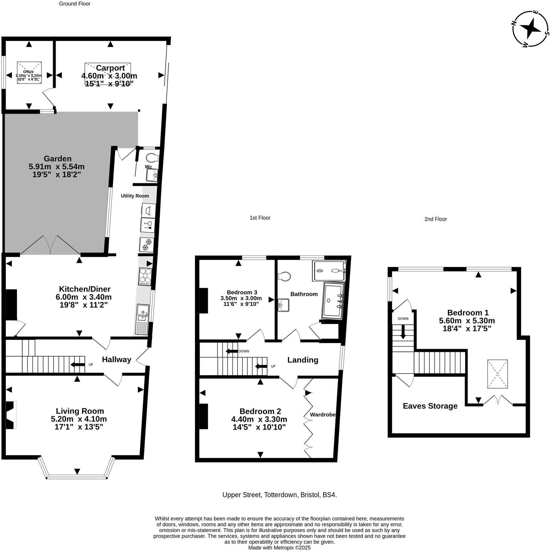
This is a three-bedroom end-of-terrace house located on Upper Street, Totterdown, Bristol. The property is in a popular residential area, close to local amenities and schools. The house has two bathrooms and a garden. The property also benefits from good transport links, with Bristol Temple Meads train station located 1.40 KM away. The house is in reasonable condition, with modern fixtures and fittings. However, some rooms may benefit from redecoration. The asking price is £525,000, which is slightly above the average for the area. Overall, this is a desirable property in a popular location.
Therefore, we give this property 6 / 10. *Disclaimer: This is our option and does constitute a recommendation or financial advice. Do your own research. *
- Price
- 6
- Condition
- 7
- Location
- 7
- Land
- 6
- Bedrooms
- 3
- Bathrooms
- 2
The heatmap indicates the level of crime in the area. The color of the heatmap indicates the crime severity and recency.
Metrics Year-on-Year
- Average area value
- 290,625.00 £Decreased by 26.53 %
- Average area rental value
- 1,590.00 £/moDecreased by 1.73 %
- Est rental Yield
- 6.57 %Increased by 33.81 %
- Crime Rate
- 2.00 %Unchanged by 0.00 %
Agent Activity
Ocean created the listing.
Nearby Schools
| Name | Type | Ofsted | Distance |
|---|---|---|---|
| Hillcrest Primary School | Community School | Good | 0.25 KM |
| Cleve House School | Other Independent School | 0.57 KM | |
| St Philips Marsh Nursery School And Barton Hill Childrens Centre/Cashmore Early Years Centre | Local Authority Nursery School | Good | 0.71 KM |
| St Philip'S Marsh Nursery School & Barton Hill Children'S Centre | Children's Centre | 0.76 KM | |
| Knowle Park Primary School | Community School | Good | 1.14 KM |
Images
Nearby Streets
| Name | Average Price | Average Sqft | Distance |
|---|---|---|---|
| Sydenham Road | £ 392,500 | 0 | 0.00 KM |
| Frederick Street | £ 470,000 | 0 | 0.00 KM |
| Crowndale Road | £ 485,000 | 0 | 0.00 KM |
| River Road | £ 350,000 | 0 | 0.00 KM |
| The Hill | £ 315,833 | 0 | 0.00 KM |
Nearby Transport
| Name | NLC | TLC | Distance |
|---|---|---|---|
| Bristol Temple Meads | 3231 | BRI | 1.40 KM |
| Lawrence Hill | 3225 | LWH | 2.01 KM |
| Bedminster | 3245 | BMT | 2.51 KM |
| Stapleton Road | 3250 | SRD | 2.97 KM |
| Montpelier | 3203 | MTP | 3.56 KM |
Nearby Listings
| Address | Price | Type | Score | Distance |
|---|---|---|---|---|
| Upper Street, Totterdown, Bristol. | £ 525,000 | BUY | 6 / 10 | 0.00 KM |
| Upper Street, Totterdown, Bristol | £ 260,000 | BUY | 7 / 10 | 0.04 KM |
| Balmain Street, Totterdown | £ 460,000 | BUY | 7 / 10 | 0.05 KM |
| Balmain Street, Totterdown, Bristol. | £ 400,000 | BUY | 7 / 10 | 0.06 KM |
| Upper Street, Totterdown, Bristol | £ 425,000 | BUY | 7 / 10 | 0.06 KM |
Nearby Properties
| Address | Price | Distance |
|---|---|---|
| 32 Balmain Street | £ 264,250 | 0.03 KM |
| 33 Balmain Street | £ 388,200 | 0.03 KM |
| 59a Balmain Street | £ 266,000 | 0.03 KM |
| 41 Balmain Street | £ 280,000 | 0.03 KM |
| 47 Balmain Street | £ 425,000 | 0.03 KM |