Castell Malgwyn, Llechryd, Cardigan, Pembrokeshire, SA43
By Savills
£ 295,000
Reviews
3 out of 5 stars
Savills says ..
Rare opportunity to create your own home within a Grade II listed country House.
Property Oracle says ..
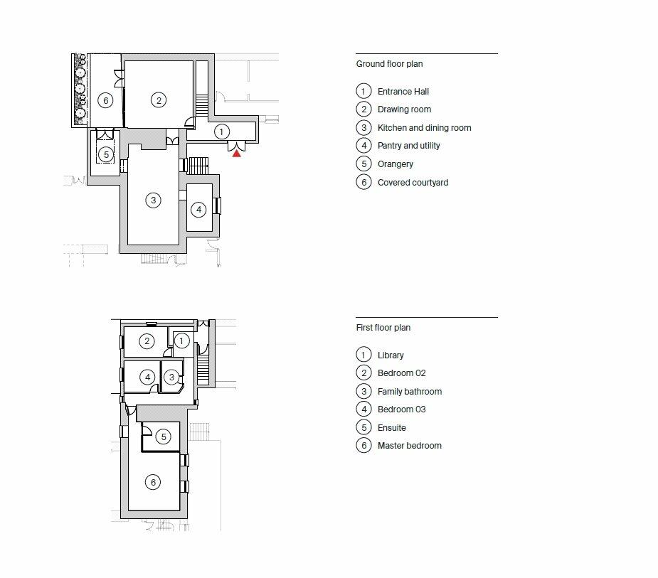
This property is a unique opportunity to acquire part of a Grade II listed manor house in the picturesque Welsh countryside. Situated in Llechryd near Cardigan, the property offers a tranquil setting with the potential to create a truly remarkable home, but requires considerable investment and work. The available artist’s impressions highlight a transformation from a dilapidated state to a modern, stylish dwelling. The property comprises 2310 sqft according to the provided floor plans, with three bedrooms and two bathrooms. While its location offers proximity to schools and Cardigan, the lack of specified transport links and the significant renovation needed make it a high-risk, high-reward venture. The cost of the renovation should be carefully considered against the listing price. The overall condition of the property is clearly its biggest drawback. The communal gardens and grounds shared with the other parts of the manor offer an amenity which is not typical of most properties on the market, which should not be under-estimated. Buyers should be fully aware of the implications of purchasing a property in this condition and location before committing to the purchase.
Therefore, we give this property 6 / 10. *Disclaimer: This is our option and does constitute a recommendation or financial advice. Do your own research. *
- Price
- 7
- Condition
- 4
- Location
- 7
- Land
- 6
- Bedrooms
- 3
- Bathrooms
- 2
The heatmap indicates the level of crime in the area. The color of the heatmap indicates the crime severity and recency.
Metrics Year-on-Year
- Average area value
- 278,905.00 £Increased by 2.67 %
- Average area rental value
- 800.00 £/moDecreased by 34.53 %
- Est rental Yield
- 3.44 %Decreased by 36.30 %
- Crime Rate
- 0.00 %
Agent Activity
Savills created the listing.
Nearby Schools
| Name | Type | Ofsted | Distance |
|---|---|---|---|
| Ysgol Llechryd | Welsh Establishment | 0.82 KM | |
| Cilgerran V.C.P. School | Welsh Establishment | 3.12 KM | |
| Ysgol Penparc | Welsh Establishment | 4.90 KM | |
| Ysgol Uwchradd Aberteifi | Welsh Establishment | 6.14 KM | |
| St Dogmaels | Welsh Establishment | 8.39 KM |
Images
Nearby Streets
| Name | Average Price | Average Sqft | Distance |
|---|---|---|---|
| Coedmor Lane | £ 395,000 | 0 | 0.00 KM |
| Church Row | £ 0 | 0 | 0.00 KM |
| Bancyfelin | £ 0 | 0 | 0.00 KM |
Nearby Listings
| Address | Price | Type | Score | Distance |
|---|---|---|---|---|
| Castell Malgwyn, Llechryd, Cardigan, Pembrokeshire, SA43 | £ 295,000 | BUY | 6 / 10 | 0.00 KM |
| Castell Malgwyn, Llechryd, Cardigan, Pembrokeshire, SA43 | £ 495,000 | BUY | 5 / 10 | 0.01 KM |
| Castell Malgwyn, Llechryd, Cardigan, Ceredigion, SA43 2QA | £ 295,000 | BUY | Unknown | 0.04 KM |
| Llechryd, Cardigan, Ceredigion, SA43 2QA | £ 495,000 | BUY | Unknown | 0.11 KM |
| Maeshelyg, Llechryd, Dyfed, SA43 | £ 150,000 | BUY | 6 / 10 | 0.82 KM |
Nearby Properties
| Address | Price | Distance |
|---|---|---|
| 9 Maesyderi | £ 125,000 | 0.71 KM |
| 2 Harries Terrace | £ 153,750 | 0.72 KM |
| 4 Harries Terrace | £ 152,000 | 0.72 KM |
| 3 Harries Terrace | £ 84,000 | 0.72 KM |
| 16 Gelliwen | £ 190,000 | 0.77 KM |