Sutherland Street, South Bank
By Churchills Estate Agents
£ 285,000
Reviews
3 out of 5 stars
Churchills Estate Agents says ..
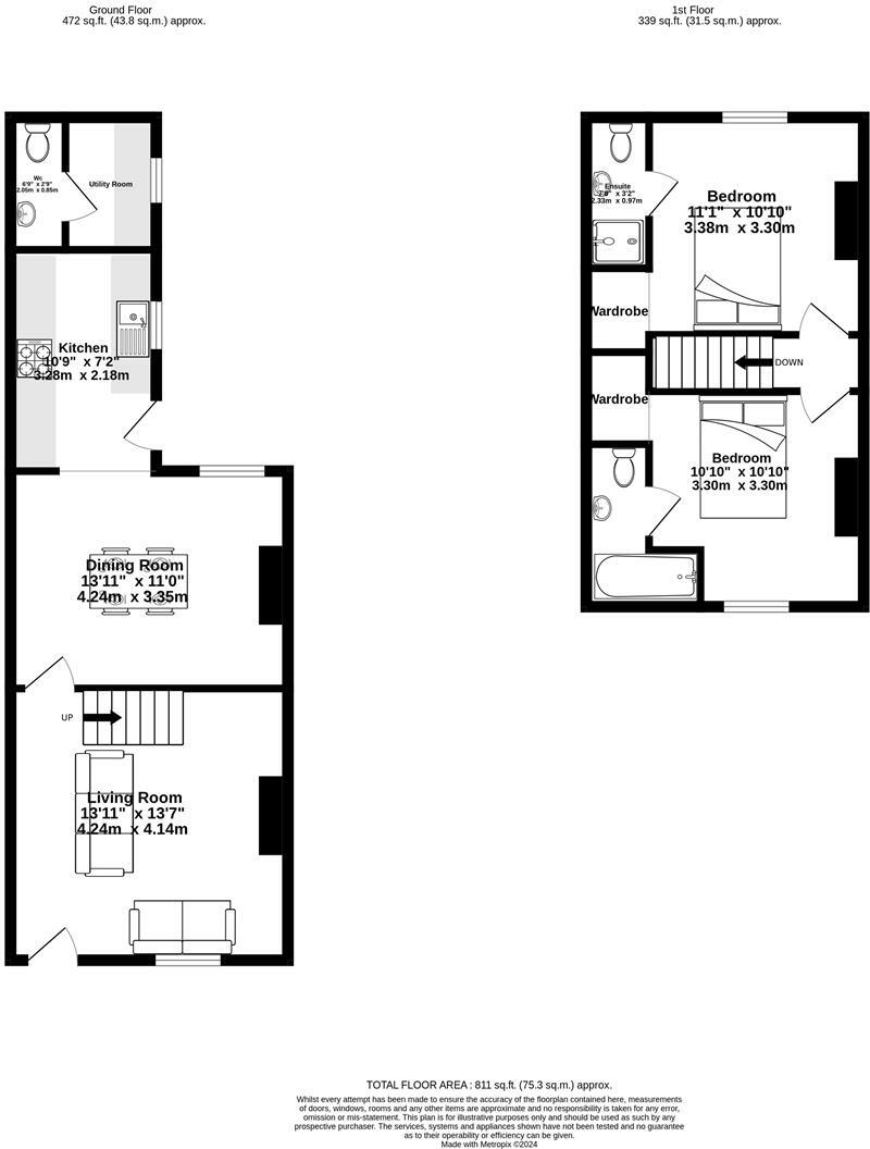
A SUPERB 2 BEDROOM PERIOD TOWN HOUSE EXTENDED TO PROVIDE LARGER THAN AVERAGE LIVING SPACE AND TWO EN-SUITE BEDROOMS. Set in this highly sought after location close to York Racecourse and within walking distance to the city centre and railway station, this property makes an ideal first time buy or...
Property Oracle says ..
This property is a 2 bedroom, 2 bathroom terraced house located in South Bank, York. The property is described as having larger than average living space and is within walking distance of York Racecourse, the city centre and railway station. Based on the photos, the property appears to be in good condition, having undergone some modernisation. The kitchen and bathrooms look recently updated. There is a small rear courtyard garden. The list price is below the average price for the area, and significantly below the average price per sqft. However, the lack of plot size information in the listing makes a definitive statement on value difficult. The property is well located for access to amenities and transport links.
Therefore, we give this property 6 / 10. *Disclaimer: This is our option and does constitute a recommendation or financial advice. Do your own research. *
- Price
- 7
- Condition
- 8
- Location
- 9
- Land
- 3
- Bedrooms
- 2
- Bathrooms
- 2
- Sqft (est)
- 810.52
The heatmap indicates the level of crime in the area. The color of the heatmap indicates the crime severity and recency.
Metrics Year-on-Year
- Average area value
- 542,496.00 £Increased by 34.28 %
- Est sale value
- 338,797.36 £Increased by 33.55 %
- Average area rental value
- 1,435.00 £/moIncreased by 6.30 %
- Est letting value
- 810.52 £/moUnchanged by 0.00 %
- Est rental Yield
- 3.17 %Decreased by 20.95 %
- Crime Rate
- 5.00 %Unchanged by 0.00 %
Agent Activity
Churchills Estate Agents created the listing.
Nearby Schools
| Name | Type | Ofsted | Distance |
|---|---|---|---|
| Knavesmire Primary School | Academy Converter | 0.13 KM | |
| Knavesmire Children'S Centre | Children's Centre | 0.13 KM | |
| Millthorpe School | Academy Converter | Good | 0.47 KM |
| Scarcroft Primary School | Academy Converter | 0.91 KM | |
| The Mount School (York) | Other Independent School | 1.18 KM |
Images
Nearby Streets
| Name | Average Price | Average Sqft | Distance |
|---|---|---|---|
| Bishopthorpe Road | £ 0 | 0 | 0.00 KM |
| Nunnery Lane | £ 0 | 0 | 0.00 KM |
| Drake Street | £ 180,000 | 0 | 0.00 KM |
| Knavesmire Road | £ 350,000 | 0 | 0.00 KM |
| Bishopgate Street | £ 0 | 0 | 0.00 KM |
Nearby Transport
| Name | NLC | TLC | Distance |
|---|---|---|---|
| York | 8263 | YRK | 1.51 KM |
| Poppleton | 8254 | POP | 7.31 KM |
Nearby Listings
| Address | Price | Type | Score | Distance |
|---|---|---|---|---|
| Sutherland Street, South Bank | £ 285,000 | BUY | 6 / 10 | 0.00 KM |
| Sutherland Street, Bishopthorpe Road | £ 215,000 | BUY | 5 / 10 | 0.05 KM |
| Westwood Terrace, York | £ 300,000 | BUY | 6 / 10 | 0.07 KM |
| Westwood Terrace, York | £ 315,000 | BUY | 7 / 10 | 0.07 KM |
| Sutherland Street, York | £ 300,000 | BUY | 7 / 10 | 0.07 KM |
Nearby Properties
| Address | Price | Distance |
|---|---|---|
| 42 Sutherland Street | £ 141,000 | 0.05 KM |
| 20 Sutherland Street | £ 143,500 | 0.05 KM |
| 30 Sutherland Street | £ 157,500 | 0.05 KM |
| 50 Sutherland Street | £ 163,000 | 0.05 KM |
| 82 Sutherland Street | £ 173,000 | 0.05 KM |