Tan Dderwen, Llangattock, NP8
By Number One Real Estate
£ 330,000
Reviews
3 out of 5 stars
Number One Real Estate says ..
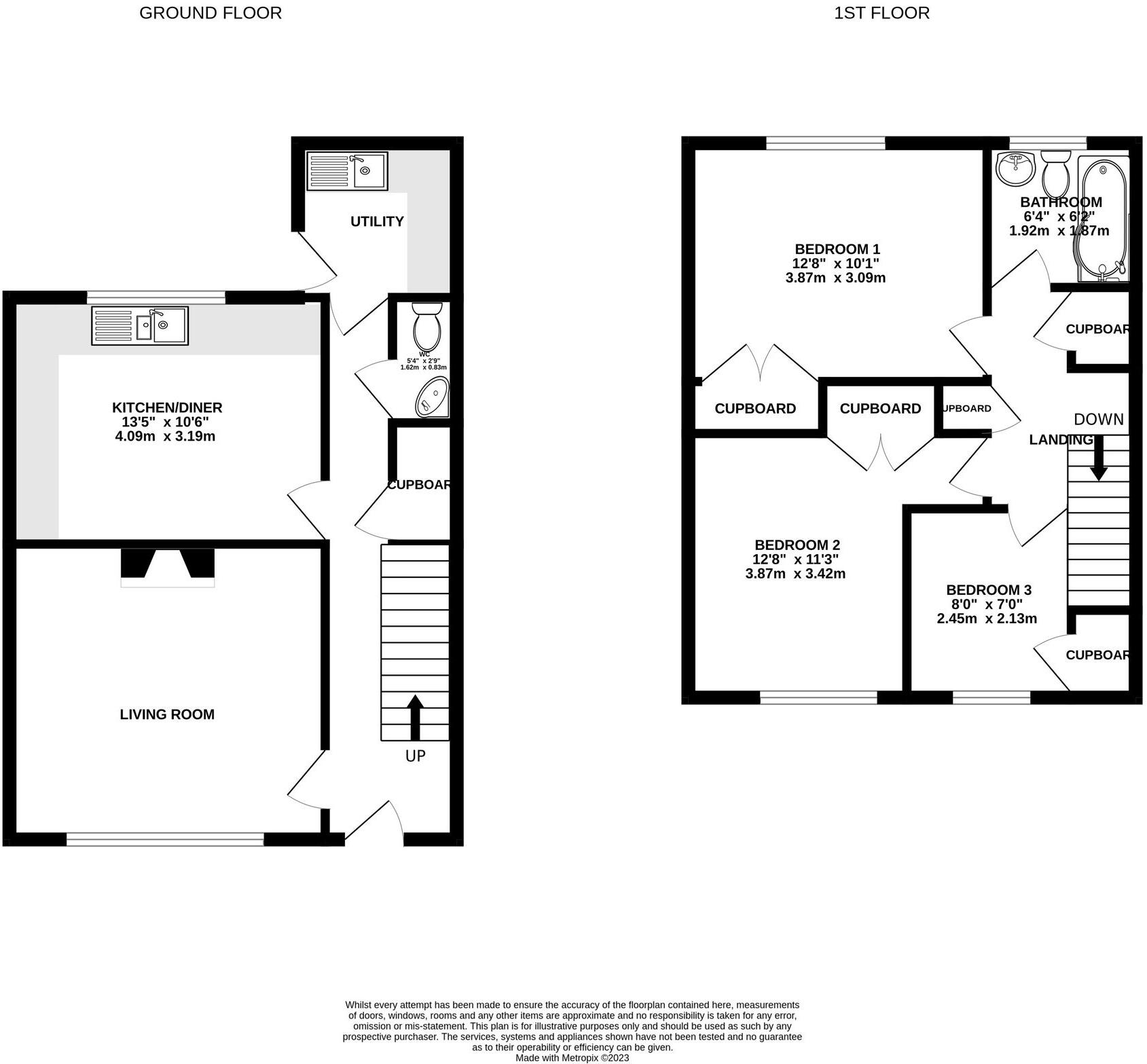
* SEMI-DETACHED * THREE BEDROOMS * GARDENS * ON STREET PARKING * OUTBUILDING * CLOAKROOM * BATHROOM * UTILITY
Property Oracle says ..
This is a three-bedroom terraced house in Llangattock, Powys. The property is in good condition, with a modern kitchen and bathroom. It has a garden with both lawn and patio areas. The property is located in a desirable location, with access to local amenities and schools. The listing price is £330,000, which seems reasonable considering the condition and location. The property is conveniently located near Crickhowell High School.
Therefore, we give this property 7 / 10. *Disclaimer: This is our option and does constitute a recommendation or financial advice. Do your own research. *
- Price
- 7
- Condition
- 8
- Location
- 7
- Land
- 7
- Bedrooms
- 3
- Bathrooms
- 1
- Sqft (est)
- 523.40
The heatmap indicates the level of crime in the area. The color of the heatmap indicates the crime severity and recency.
Metrics Year-on-Year
- Average area value
- 311,704.00 £Increased by 34.17 %
- Est sale value
- 191,564.40 £Increased by 10.57 %
- Average area rental value
- 1,067.00 £/moDecreased by 19.35 %
- Est letting value
- 523.40 £/moUnchanged by 0.00 %
- Est rental Yield
- 4.11 %Decreased by 39.82 %
- Crime Rate
- 45.00 %Unchanged by 0.00 %
Agent Activity
Number One Real Estate created the listing.
Nearby Schools
| Name | Type | Ofsted | Distance |
|---|---|---|---|
| Crickhowell High School | Welsh Establishment | 1.52 KM | |
| Crickhowell C.P. School | Welsh Establishment | 1.65 KM | |
| Brynmawr Foundation School | Welsh Establishment | 5.31 KM | |
| Llanbedr C.I.W. (Aided) School | Welsh Establishment | 5.45 KM | |
| St Mary'S C In W Voluntary Aided School | Welsh Establishment | 5.65 KM |
Images
Nearby Streets
| Name | Average Price | Average Sqft | Distance |
|---|---|---|---|
| Owen's Row | £ 0 | 0 | 0.00 KM |
| Crown Cottages | £ 0 | 0 | 0.00 KM |
| Canal Close | £ 475,000 | 0 | 0.00 KM |
| Green Hill Way | £ 0 | 0 | 0.00 KM |
| Church Street | £ 0 | 0 | 0.00 KM |
Nearby Listings
| Address | Price | Type | Score | Distance |
|---|---|---|---|---|
| Tan Dderwen, Llangattock, NP8 | £ 330,000 | BUY | 7 / 10 | 0.00 KM |
| 9 Tan Dderwen, Llangattock, Crickhowell, NP8 1LQ | £ 220,000 | BUY | 6 / 10 | 0.01 KM |
| Lime Trees Avenue, Llangattock, Crickhowell, NP8 1LB | £ 450,000 | BUY | 6 / 10 | 0.07 KM |
| 10 Plas Derwen, Llangattock, Crickhowell, NP8 1HY | £ 375,000 | BUY | 7 / 10 | 0.18 KM |
| Beechwood Road, Llangattock, Crickhowell, Powys. | £ 450,000 | BUY | 6 / 10 | 0.22 KM |
Nearby Properties
| Address | Price | Distance |
|---|---|---|
| 3 Lime Trees Avenue | £ 345,000 | 0.08 KM |
| 20 Lime Trees Avenue | £ 259,000 | 0.08 KM |
| 8 Lime Trees Avenue | £ 310,000 | 0.08 KM |
| 6 Lime Trees Avenue | £ 310,000 | 0.08 KM |
| 16 Lime Trees Avenue | £ 320,000 | 0.08 KM |