Rampton Baseley says ..
This superb four-bedroom Victorian house is located on this sought-after residential street near Tooting Common. The property boasts a tremendous sense of light and space.
Property Oracle says ..
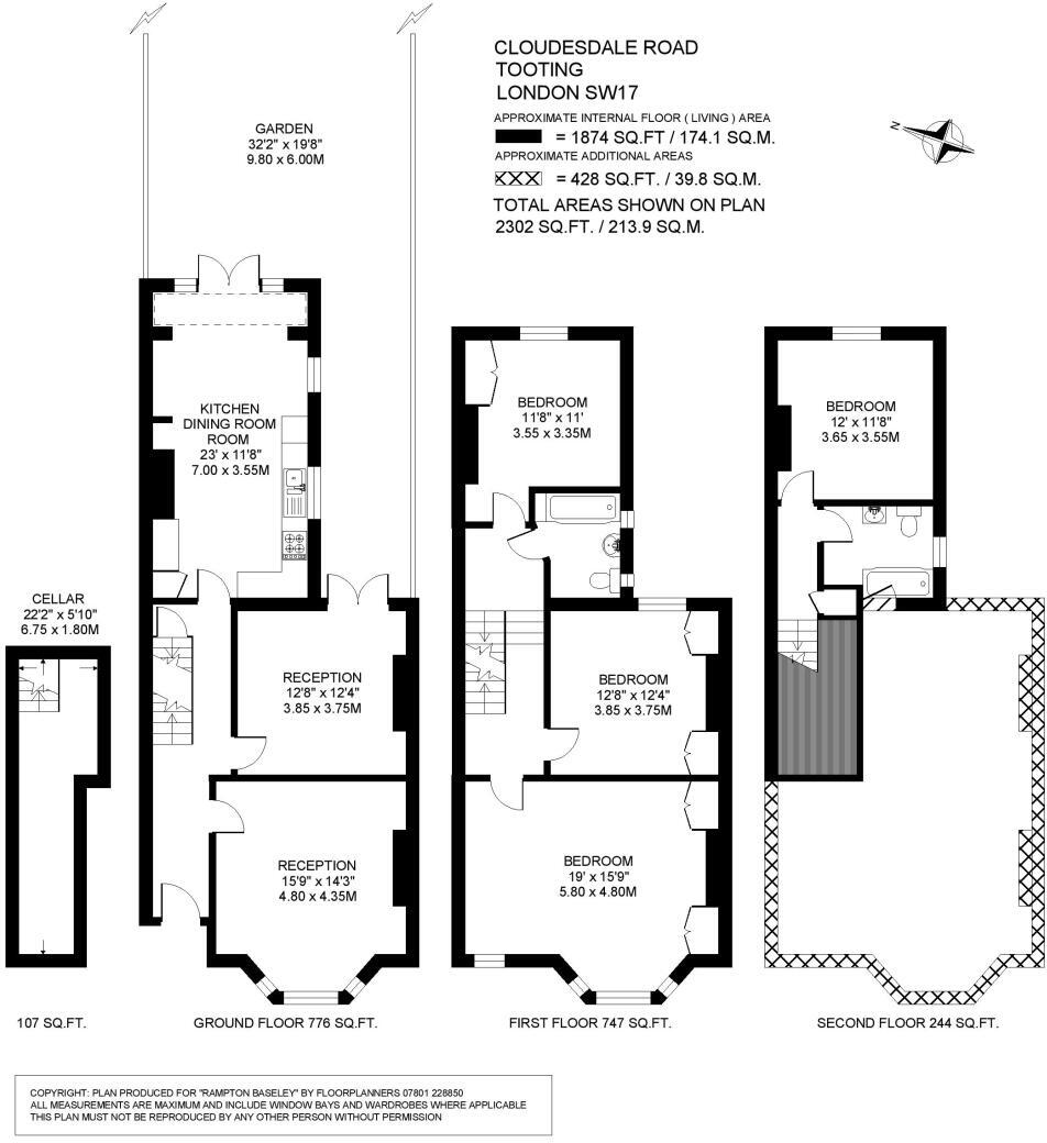
This is a terraced property located on Cloudesdale Road, in the Bedford area of Wandsworth, London. The property has 4 bedrooms and 2 bathrooms, with a square footage of 1,874.00 sqft and a plot size of 633.33 sqft. The property is in a good location, close to local schools and transport links. The property appears to be in good condition, but could benefit from some modernisation. The property has a garden, which is a valuable asset in London. The property is listed for £1,595,000, which is above the average price for the area, but the property is larger than average.
Therefore, we give this property 7 / 10. *Disclaimer: This is our option and does constitute a recommendation or financial advice. Do your own research. *
- Price
- 7
- Condition
- 7
- Location
- 8
- Land
- 6
- Bedrooms
- 4
- Bathrooms
- 2
- Sqft (est)
- 1,874.00
- Lot (est)
- 633.33
The heatmap indicates the level of crime in the area. The color of the heatmap indicates the crime severity and recency.
Metrics Year-on-Year
- Average area value
- 946,667.00 £Increased by 7.29 %
- Est sale value
- 1,915,228.00 £Increased by 37.74 %
- Average area rental value
- 2,720.00 £/moIncreased by 4.21 %
- Est letting value
- 3,748.00 £/moUnchanged by 0.00 %
- Est rental Yield
- 3.45 %Decreased by 2.82 %
- Crime Rate
- 7.00 %Unchanged by 0.00 %
Agent Activity
Rampton Baseley created the listing.
Nearby Schools
| Name | Type | Ofsted | Distance |
|---|---|---|---|
| Ravenstone Primary School | Academy Converter | 0.41 KM | |
| Eveline Day School | Other Independent School | 0.46 KM | |
| Rutherford House School | Free Schools | Good | 0.49 KM |
| Trinity St Mary'S Cofe Primary School | Voluntary Aided School | Good | 0.63 KM |
| Chestnut Grove School | Academy Converter | Good | 0.81 KM |
Images
Nearby Streets
| Name | Average Price | Average Sqft | Distance |
|---|---|---|---|
| Carnie Lodge | £ 450,000 | 0 | 0.00 KM |
| Oakmead Mews | £ 0 | 0 | 0.00 KM |
| Oakmead Road | £ 0 | 0 | 0.00 KM |
| Falcon Mews | £ 699,950 | 0 | 0.00 KM |
| Ryde Vale | £ 375,000 | 0 | 0.00 KM |
Nearby Transport
| Name | NLC | TLC | Distance |
|---|---|---|---|
| Balham | 5399 | BAL | 0.50 KM |
| Wandsworth Common | 5395 | WSW | 1.60 KM |
| Tooting | 5389 | TOO | 2.43 KM |
| Streatham | 5383 | STE | 2.59 KM |
| Streatham Hill | 5435 | SRH | 2.62 KM |
Nearby Listings
| Address | Price | Type | Score | Distance |
|---|---|---|---|---|
| Cloudesdale Road, SW17 | £ 1,595,000 | BUY | 7 / 10 | 0.00 KM |
| Cloudesdale Road,London,SW17 8ET | £ 275,000 | BUY | Unknown | 0.00 KM |
| Cloudesdale Road, Balham | £ 1,500,000 | BUY | 6 / 10 | 0.01 KM |
| Cloudesdale Road, SW17 | £ 1,795,000 | BUY | 7 / 10 | 0.01 KM |
| Foxbourne Road, SW17 | £ 1,700,000 | BUY | Unknown | 0.05 KM |
Nearby Properties
| Address | Price | Distance |
|---|---|---|
| 55 Cloudesdale Road | £ 840,000 | 0.01 KM |
| 65 Cloudesdale Road | £ 550,000 | 0.01 KM |
| 43 Cloudesdale Road | £ 158,000 | 0.01 KM |
| 21 Cloudesdale Road | £ 620,000 | 0.01 KM |
| 41 Cloudesdale Road | £ 1,515,000 | 0.01 KM |