Ames Road, Swanscombe, Kent, DA10
By Anthony Martin
£ 400,000
Reviews
3 out of 5 stars
Anthony Martin says ..
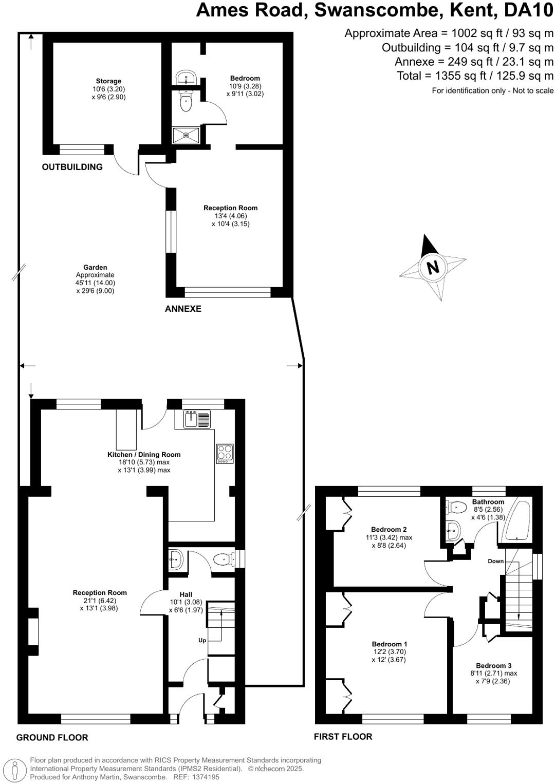
Guide Price £400,000 to £425,000 Offered Chain Free - Anthony Martin present this fantastic family home with a separate annexe/outbuilding offering huge versatility. Main house includes front reception, spacious kitchen/dining room, Ground floor shower room thre...
Property Oracle says ..
This is a three-bedroom semi-detached house located on Ames Road in Swanscombe, Kent. The property offers 1,355 sqft of living space and includes a garden. While the house appears to be in reasonable condition, some areas could benefit from modernization. The location is convenient, with nearby schools and transportation options. The asking price of £400,000 seems fair given the property’s size, location, and condition. It would be ideal for a family.
Therefore, we give this property 6 / 10. *Disclaimer: This is our option and does constitute a recommendation or financial advice. Do your own research. *
- Price
- 7
- Condition
- 6
- Location
- 6
- Land
- 7
- Bedrooms
- 3
- Bathrooms
- 1
- Sqft (est)
- 1,355.00
The heatmap indicates the level of crime in the area. The color of the heatmap indicates the crime severity and recency.
Metrics Year-on-Year
- Average area value
- 680,617.00 £Decreased by 16.07 %
- Est sale value
- 607,040.00 £Decreased by 14.18 %
- Average area rental value
- 1,914.00 £/moIncreased by 14.68 %
- Est letting value
- 1,355.00 £/moUnchanged by 0.00 %
- Est rental Yield
- 3.37 %Increased by 36.44 %
- Crime Rate
- 24.00 %Unchanged by 0.00 %
Agent Activity
Anthony Martin created the listing.
Nearby Schools
| Name | Type | Ofsted | Distance |
|---|---|---|---|
| Swanscombe Children'S Centre | Children's Centre | 0.50 KM | |
| Manor Community Primary School | Academy Converter | Good | 0.50 KM |
| The Craylands School | Community School | Good | 0.53 KM |
| The Ebbsfleet Academy | Academy Sponsor Led | Good | 0.81 KM |
| Cherry Orchard Primary Academy | Academy Sponsor Led | 1.05 KM |
Images
Nearby Streets
| Name | Average Price | Average Sqft | Distance |
|---|---|---|---|
| Ames Road | £ 451,662 | 0 | 0.00 KM |
| Lewis Road | £ 0 | 0 | 0.00 KM |
| Park Road | £ 0 | 0 | 0.00 KM |
| Rectory Road | £ 0 | 0 | 0.00 KM |
| St Peter's Close | £ 0 | 0 | 0.00 KM |
Nearby Transport
| Name | NLC | TLC | Distance |
|---|---|---|---|
| Swanscombe | 5156 | SWM | 0.59 KM |
| Ebbsfleet International | 5566 | EBD | 1.63 KM |
| Northfleet | 5120 | NFL | 2.00 KM |
| Greenhithe For Bluewater | 5138 | GNH | 2.94 KM |
| Grays | 7443 | GRY | 3.89 KM |
Nearby Listings
| Address | Price | Type | Score | Distance |
|---|---|---|---|---|
| Ames Road, Swanscombe, Kent, DA10 | £ 400,000 | BUY | 6 / 10 | 0.00 KM |
| Chapel Court, Milton Road, Swanscombe, Kent, DA10 | £ 375,000 | BUY | 7 / 10 | 0.13 KM |
| Chapel Court, Milton Road, Swanscombe | £ 375,000 | BUY | 6 / 10 | 0.14 KM |
| Flat 14 Kingsdale Court, Milton Road, Swanscombe, Kent, DA10 0LX | £ 45,000 | BUY | 7 / 10 | 0.16 KM |
| Lewis Road, Swanscombe, Kent, DA10 | £ 425,000 | BUY | 6 / 10 | 0.18 KM |
Nearby Properties
| Address | Price | Distance |
|---|---|---|
| 9 Sweyne Road | £ 335,000 | 0.05 KM |
| 17 Sweyne Road | £ 128,000 | 0.05 KM |
| 8 Sweyne Road | £ 166,500 | 0.05 KM |
| 6 Park Road | £ 295,000 | 0.15 KM |
| 94 Ames Road | £ 197,995 | 0.17 KM |