Middle Barton, Oxfordshire, OX7
By Chancellors
£ 425,000
Reviews
3 out of 5 stars
Chancellors says ..
Situated within a sought-after location in Middle Barton. Withens Cottage contains character features throughout, exposed timber, stone work, an open fireplace, off street parking and a private enclosed garden.
Property Oracle says ..
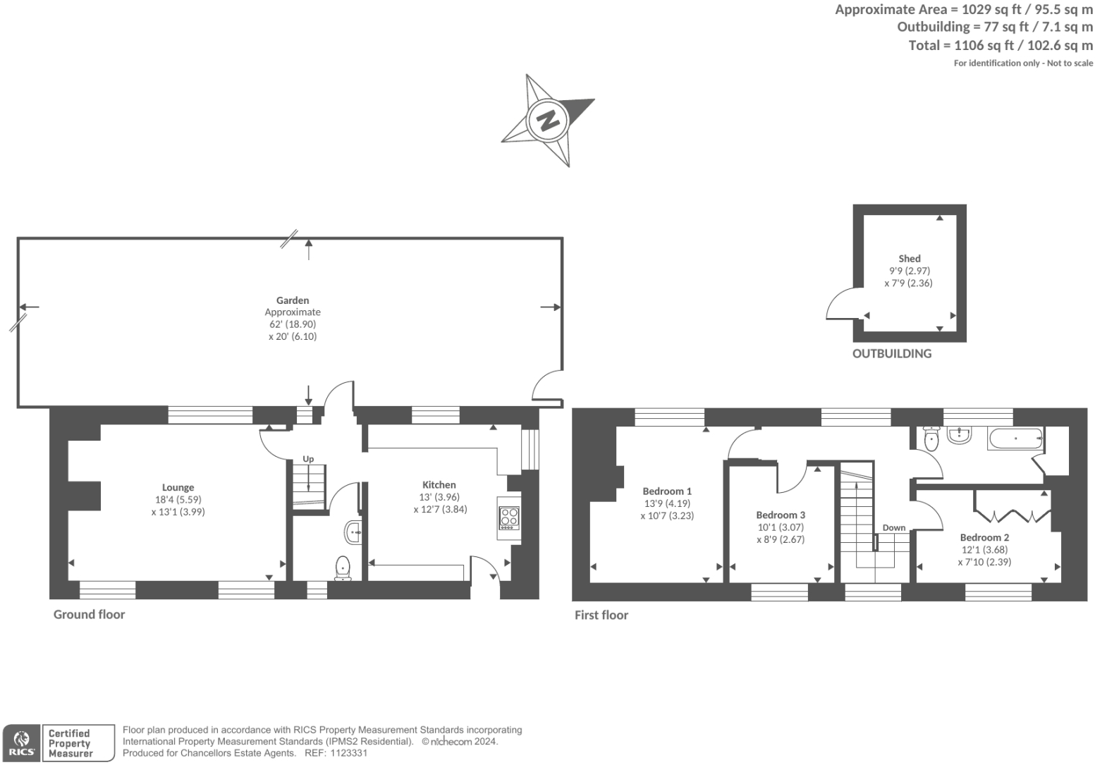
This three-bedroom property in Middle Barton, Oxfordshire, presents a blend of charming character and potential for improvement. Located on South Street, the property benefits from its village setting, offering proximity to a primary school and local amenities. The stone exterior and exposed beams inside contribute to a traditional feel, but the interior decor appears dated, suggesting a need for modernisation. The kitchen and bathroom, in particular, would likely benefit from updating. The garden is of modest size, providing some outdoor space, but is not expansive. The property’s list price seems competitive within the context of the local market, although comparable properties show a range in price, indicating the need for a thorough assessment of the property’s condition and potential to determine its true value. Potential buyers should factor in the cost of renovations and updates when considering this property.
Therefore, we give this property 6 / 10. *Disclaimer: This is our option and does constitute a recommendation or financial advice. Do your own research. *
- Price
- 7
- Condition
- 6
- Location
- 7
- Land
- 4
- Bedrooms
- 3
- Bathrooms
- 1
- Sqft (est)
- 1,104.38
- Lot (est)
- 1,279.83
The heatmap indicates the level of crime in the area. The color of the heatmap indicates the crime severity and recency.
Metrics Year-on-Year
- Average area value
- 270,000.00 £Increased by 41.58 %
- Est sale value
- 400,889.94 £Increased by 61.33 %
- Average area rental value
- 936.00 £/moDecreased by 3.51 %
- Est letting value
- 1,104.38 £/moUnchanged by 0.00 %
- Est rental Yield
- 4.16 %Decreased by 31.80 %
- Crime Rate
- 24.00 %Unchanged by 0.00 %
Agent Activity
Chancellors created the listing.
Nearby Schools
| Name | Type | Ofsted | Distance |
|---|---|---|---|
| Middle Barton Primary School | Academy Converter | 0.61 KM | |
| Wootton-By-Woodstock Church Of England Primary School | Academy Converter | 5.82 KM | |
| Dr Radcliffe'S Church Of England Primary School | Academy Converter | 6.44 KM | |
| Great Tew County Primary School | Community School | Good | 7.41 KM |
| Deddington Church Of England Primary School | Academy Converter | 7.99 KM |
Images
Nearby Transport
| Name | NLC | TLC | Distance |
|---|---|---|---|
| Heyford | 3194 | HYD | 7.58 KM |
| Tackley | 3195 | TAC | 9.25 KM |
Nearby Listings
| Address | Price | Type | Score | Distance |
|---|---|---|---|---|
| Middle Barton, Oxfordshire, OX7 | £ 400,000 | BUY | 6 / 10 | 0.00 KM |
| Middle Barton, Oxfordshire, OX7 | £ 425,000 | BUY | 6 / 10 | 0.00 KM |
| Middle Barton, Oxfordshire, OX7 | £ 450,000 | BUY | 6 / 10 | 0.02 KM |
| South Street, Middle Barton | £ 325,000 | BUY | Unknown | 0.03 KM |
| South Street, Middle Barton | £ 850,000 | BUY | 7 / 10 | 0.07 KM |
Nearby Properties
| Address | Price | Distance |
|---|---|---|
| 38 South Street | £ 217,500 | 0.07 KM |
| 33 South Street | £ 483,687 | 0.07 KM |
| 36 South Street | £ 415,000 | 0.07 KM |
| 44 South Street | £ 330,000 | 0.07 KM |
| 46 South Street | £ 240,000 | 0.07 KM |