Christies Residential says ..
A recently refurbished and well proportioned first-floor studio apartment, ideally located in a peaceful residential area just one mile from Esher town centre. This bright and airy property offers stylish, modern living in a well-maintained building, perfect for first-time buyers, investors, o...
Property Oracle says ..
This property is a 280 sqft apartment located on Claremont Avenue in Esher, Surrey. The apartment appears to be newly renovated or in excellent condition, with a modern kitchen and bathroom. While the listing doesn’t specify the presence of a garden, the images show a well-maintained lawn area, suggesting some outdoor space may be available for use. Esher is a desirable location in Surrey, known for its good schools and transport links. However, the list price of £199,950 is significantly lower than the average house price in the area (£1,320,850), and the average price per sqft (£675.00) is considerably higher than what this property is listed for. This suggests that the price may be very competitive, but further investigation into the specifics of the apartment’s access to communal gardens or other amenities would be needed to fully assess its value. The proximity to good schools and transport links is a positive factor, enhancing the property’s overall appeal.
Therefore, we give this property 8 / 10. *Disclaimer: This is our option and does constitute a recommendation or financial advice. Do your own research. *
- Price
- 8
- Condition
- 10
- Location
- 9
- Land
- 7
- Bedrooms
- 0
- Bathrooms
- 1
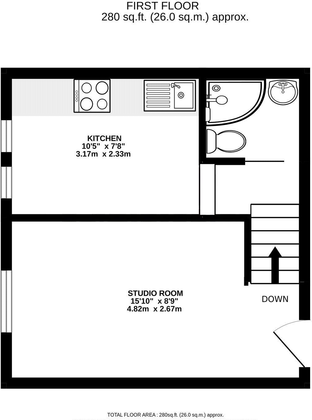
- Sqft (est)
- 280.00
The heatmap indicates the level of crime in the area. The color of the heatmap indicates the crime severity and recency.
Metrics Year-on-Year
- Average area value
- 1,532,000.00 £Increased by 47.20 %
- Est sale value
- 446,320.00 £Increased by 112.53 %
- Average area rental value
- 4,103.00 £/moIncreased by 15.06 %
- Est letting value
- 1,120.00 £/moIncreased by 100.00 %
- Est rental Yield
- 3.21 %Decreased by 21.90 %
- Crime Rate
- 12.00 %Unchanged by 0.00 %
Agent Activity
Christies Residential created the listing.
Nearby Schools
| Name | Type | Ofsted | Distance |
|---|---|---|---|
| Claremont Fan Court School | Other Independent School | 0.97 KM | |
| Burhill Sure Start Children'S Centre | Children's Centre | 1.96 KM | |
| Esher Church Of England High School | Academy Converter | Good | 2.07 KM |
| North East Surrey Secondary Short Stay School | Pupil Referral Unit | Good | 2.10 KM |
| Esher Church School | Academy Converter | Good | 2.15 KM |
Images
Nearby Streets
| Name | Average Price | Average Sqft | Distance |
|---|---|---|---|
| Westacres | £ 1,795,000 | 0 | 0.00 KM |
| Neville Close | £ 1,850,000 | 0 | 0.00 KM |
| Willow House | £ 2,495,000 | 0 | 0.00 KM |
| Cobham Bypass | £ 0 | 0 | 0.00 KM |
| Heathfield Road | £ 0 | 0 | 0.00 KM |
Nearby Transport
| Name | NLC | TLC | Distance |
|---|---|---|---|
| Hersham | 5590 | HER | 2.32 KM |
| Oxshott | 5602 | OXS | 3.12 KM |
| Claygate | 5556 | CLG | 3.47 KM |
| Esher | 5558 | ESH | 3.73 KM |
| Walton-On-Thames | 5575 | WAL | 4.19 KM |
Nearby Listings
| Address | Price | Type | Score | Distance |
|---|---|---|---|---|
| ESHER | £ 199,950 | BUY | 8 / 10 | 0.00 KM |
| Portsmouth Road, ESHER, KT10 | £ 450,000 | BUY | 8 / 10 | 0.01 KM |
| Claremont Avenue, Esher, KT10 | £ 1,950,000 | BUY | Unknown | 0.05 KM |
| Sandgate, Portsmouth Road, Esher, Surrey, KT10 | £ 500,000 | BUY | 8 / 10 | 0.06 KM |
| Portsmouth Road, Esher, KT10 | £ 275,000 | BUY | 8 / 10 | 0.07 KM |
Nearby Properties
| Address | Price | Distance |
|---|---|---|
| 5a West Acres | £ 1,540,000 | 0.18 KM |
| 5 West Acres | £ 1,600,000 | 0.18 KM |
| 17 Claremont Avenue | £ 2,075,000 | 0.20 KM |
| 26 Claremont Avenue | £ 660,000 | 0.20 KM |
| 7 Claremont Avenue | £ 880,000 | 0.20 KM |