Barlow Street, York YO26 5HP
By Bishops Personal Agents
£ 219,950
Reviews
2 out of 5 stars
Bishops Personal Agents says ..
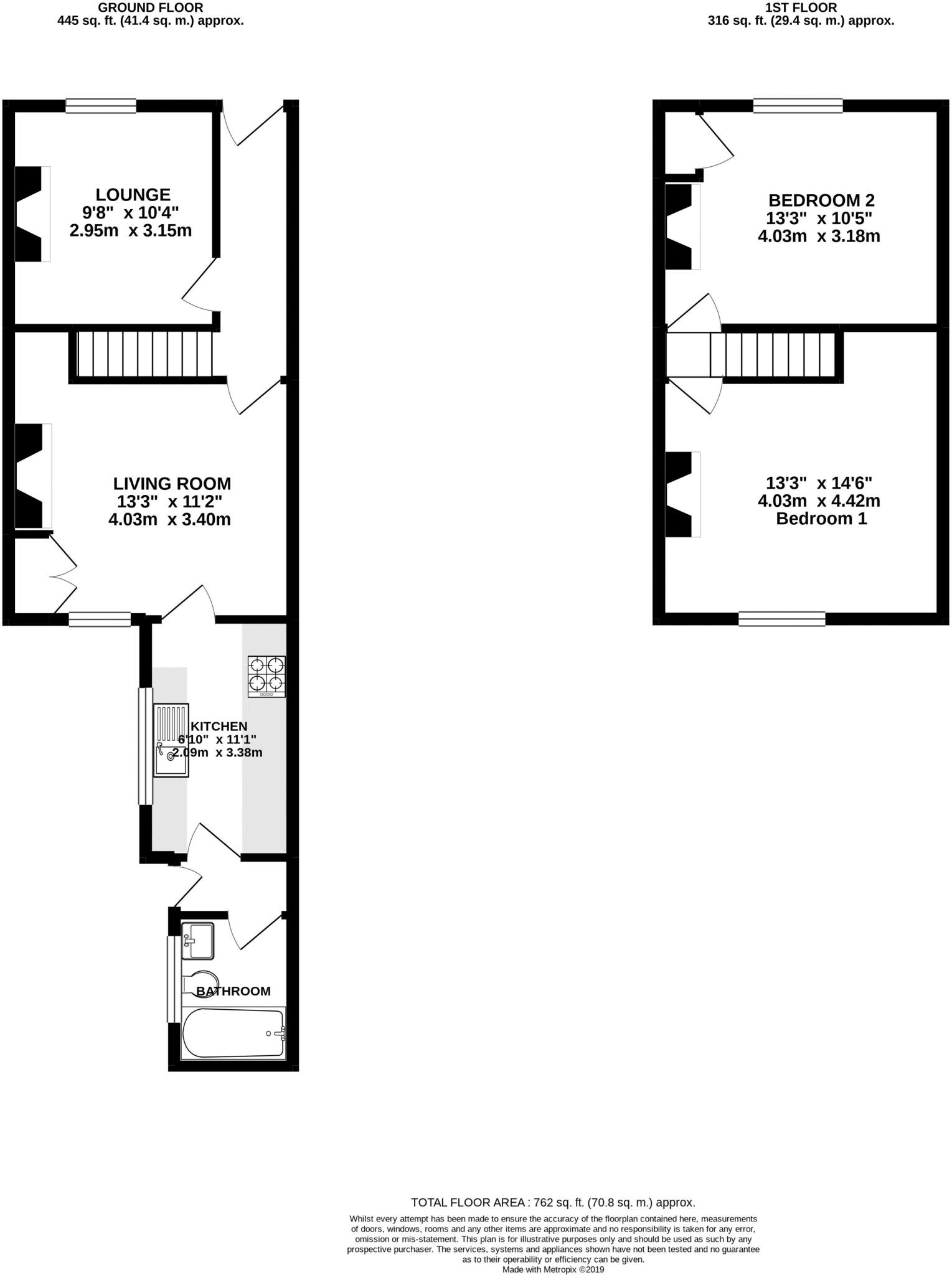
Bishops Personal Agents offer for sale a fabulous opportunity to add your own stamp and style on this spacious two bedroom mid terraced house, situated in the heart of this very popular location, close to the local Acomb shopping precinct and within easy walking distance of very popular local sch...
Property Oracle says ..
This is a two-bedroom terraced house located on Barlow Street in Holgate, York. The property is listed with Bishops Personal Agents for £219,950. It offers 909.75 sqft of living space and includes one bathroom. The location is convenient, with nearby schools and transportation options. However, the property’s condition suggests it needs some renovation, and the outdoor space is limited. The price appears reasonable given the location and potential for improvement.
Therefore, we give this property 5 / 10. *Disclaimer: This is our option and does constitute a recommendation or financial advice. Do your own research. *
- Price
- 7
- Condition
- 5
- Location
- 7
- Land
- 3
- Bedrooms
- 2
- Bathrooms
- 1
- Sqft (est)
- 909.75
The heatmap indicates the level of crime in the area. The color of the heatmap indicates the crime severity and recency.
Metrics Year-on-Year
- Average area value
- 205,714.00 £Decreased by 35.49 %
- Est sale value
- 302,946.75 £Decreased by 12.14 %
- Average area rental value
- 1,183.00 £/moIncreased by 12.03 %
- Est letting value
- 909.75 £/moUnchanged by 0.00 %
- Est rental Yield
- 6.90 %Increased by 73.80 %
- Crime Rate
- 3.00 %Unchanged by 0.00 %
Agent Activity
Bishops Personal Agents created the listing.
Nearby Schools
| Name | Type | Ofsted | Distance |
|---|---|---|---|
| Carr Children'S Centre | Children's Centre | 0.68 KM | |
| Carr Junior School | Academy Converter | 0.68 KM | |
| Carr Infant School | Community School | Good | 0.88 KM |
| Poppleton Road Primary School | Community School | Good | 0.89 KM |
| Hob Moor Children'S Centre | Children's Centre | 1.04 KM |
Images
Nearby Streets
| Name | Average Price | Average Sqft | Distance |
|---|---|---|---|
| Glebe Avenue | £ 0 | 0 | 0.00 KM |
| Woodlea Grove | £ 0 | 0 | 0.00 KM |
| School Street | £ 0 | 0 | 0.00 KM |
| Fairfax Close | £ 120,000 | 0 | 0.00 KM |
| Ouse Acres | £ 0 | 0 | 0.00 KM |
Nearby Transport
| Name | NLC | TLC | Distance |
|---|---|---|---|
| York | 8263 | YRK | 3.29 KM |
| Poppleton | 8254 | POP | 3.40 KM |
Nearby Listings
| Address | Price | Type | Score | Distance |
|---|---|---|---|---|
| Barlow Street, York YO26 5HP | £ 219,950 | BUY | 5 / 10 | 0.00 KM |
| Barlow Street, York YO26 5HP | £ 219,000 | BUY | 6 / 10 | 0.00 KM |
| Barlow Street, York, North Yorkshire | £ 155,000 | BUY | 5 / 10 | 0.04 KM |
| Barlow Street, York, North Yorkshire, YO26 | £ 265,000 | BUY | 7 / 10 | 0.04 KM |
| Barlow Street, York, North Yorkshire, YO26 | £ 265,000 | BUY | 6 / 10 | 0.07 KM |
Nearby Properties
| Address | Price | Distance |
|---|---|---|
| 58 Barlow Street | £ 228,000 | 0.01 KM |
| 2a Barlow Street | £ 165,000 | 0.01 KM |
| 38 Barlow Street | £ 269,000 | 0.01 KM |
| 50 Barlow Street | £ 106,000 | 0.01 KM |
| 64 Barlow Street | £ 140,000 | 0.01 KM |