BO
163 Lindsworth Road, Kings Norton, Birmingham, B30 3SA
By Bond Wolfe
£ 35,000
Reviews
3 out of 5 stars
Bond Wolfe says ..
For Sale By Public Auction 11 September 2025 A vacant leasehold semi detached property
Property Oracle says ..
Therefore, we give this property 6 / 10. *Disclaimer: This is our option and does constitute a recommendation or financial advice. Do your own research. *
- Price
- 9
- Condition
- 2
- Location
- 7
- Land
- 6
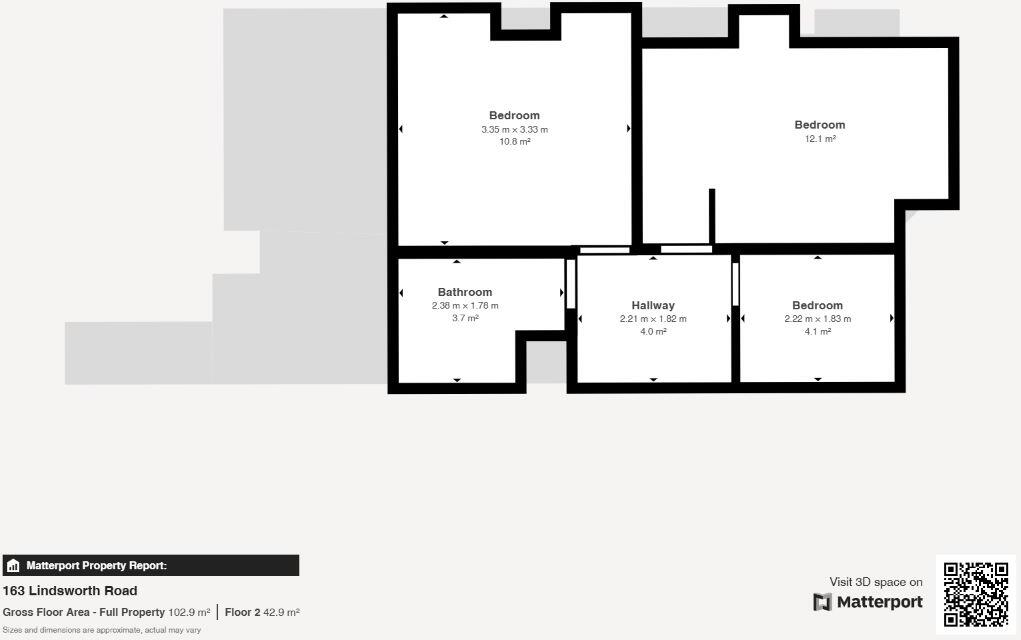
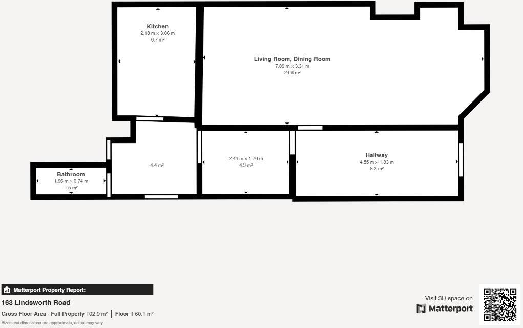
- Bedrooms
- 3
- Bathrooms
- 0
- Sqft (est)
- 373.51
The heatmap indicates the level of crime in the area. The color of the heatmap indicates the crime severity and recency.
Metrics Year-on-Year
- Average area value
- 281,000.00 £Increased by 9.76 %
- Est sale value
- 111,305.98 £Increased by 12.03 %
- Average area rental value
- 748.00 £/moDecreased by 41.38 %
- Est letting value
- 0.00 £/moDecreased by 100.00 %
- Est rental Yield
- 3.19 %Decreased by 46.66 %
- Crime Rate
- 3.00 %Unchanged by 0.00 %
from 256,008.00 £
from 99,353.66 £
from 1,276.00 £/mo
from 373.51 £/mo
from 5.98 %
from 3.00 %
Agent Activity
Bond Wolfe created the listing.
Nearby Schools
| Name | Type | Ofsted | Distance |
|---|---|---|---|
| Lindsworth School | Community Special School | Good | 0.55 KM |
| Broadmeadow Junior School | Community School | Good | 0.70 KM |
| Broadmeadow Infant School | Community School | Good | 0.70 KM |
| Bells Farm Primary School | Community School | Outstanding | 0.71 KM |
| Allens Croft Nursery School | Local Authority Nursery School | Outstanding | 1.04 KM |
Images
Nearby Streets
| Name | Average Price | Average Sqft | Distance |
|---|---|---|---|
| Winterbourne Croft | £ 142,000 | 0 | 0.00 KM |
| Dove Gardens | £ 300,000 | 0 | 0.00 KM |
| Oakwood Drive | £ 300,000 | 0 | 0.00 KM |
| St. Francis Drive | £ 330,000 | 0 | 0.00 KM |
| Wilde Close | £ 0 | 0 | 0.00 KM |
Nearby Transport
| Name | NLC | TLC | Distance |
|---|---|---|---|
| Bournville | 1112 | BRV | 2.42 KM |
| Kings Norton | 1109 | KNN | 2.45 KM |
| Selly Oak | 1105 | SLY | 4.34 KM |
| University (Birmingham) | 4504 | UNI | 5.22 KM |
| Wythall | 4532 | WYT | 6.12 KM |
Nearby Listings
| Address | Price | Type | Score | Distance |
|---|---|---|---|---|
| 163 Lindsworth Road, Kings Norton, Birmingham, B30 3SA | £ 35,000 | BUY | 6 / 10 | 0.00 KM |
| 163 Lindsworth Road, Kings Norton, Birmingham, B30 3SA | £ 29,000 | BUY | 6 / 10 | 0.00 KM |
| 163 Lindsworth Road, Kings Norton, Birmingham, West Midlands, B30 3SA | £ 198,000 | BUY | 5 / 10 | 0.00 KM |
| Lindsworth Road, Birmingham, B30 | £ 34,000 | BUY | 6 / 10 | 0.06 KM |
| Lindsworth Road, Birmingham, B30 | £ 395,000 | BUY | 6 / 10 | 0.06 KM |
Nearby Properties
| Address | Price | Distance |
|---|---|---|
| 169 Lindsworth Road | £ 134,000 | 0.06 KM |
| 201 Lindsworth Road | £ 160,000 | 0.06 KM |
| 187 Lindsworth Road | £ 345,000 | 0.06 KM |
| 183 Lindsworth Road | £ 205,000 | 0.06 KM |
| 171 Lindsworth Road | £ 160,000 | 0.06 KM |