Smart Homes Ltd says ..
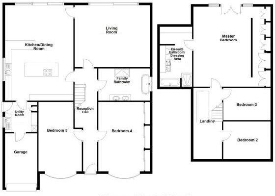
A beautifully presented and substantially extended detached dormer bungalow situated in a sought after semi-rural location with open views to rear. The property benefits from gas underfloor heating throughout the ground floor and offers accommodation comprising a spacious lounge, superb open p...
Property Oracle says ..
Therefore, we give this property 8 / 10. *Disclaimer: This is our option and does constitute a recommendation or financial advice. Do your own research. *
- Price
- 6
- Condition
- 9
- Location
- 8
- Land
- 9
- Bedrooms
- 5
- Bathrooms
- 2
- Sqft (est)
- 1,850.00
The heatmap indicates the level of crime in the area. The color of the heatmap indicates the crime severity and recency.
Metrics Year-on-Year
- Average area value
- 467,500.00 £Increased by 12.57 %
- Est sale value
- 627,150.00 £Decreased by 19.48 %
- Average area rental value
- 1,695.00 £/moIncreased by 3.35 %
- Est letting value
- 1,850.00 £/moUnchanged by 0.00 %
- Est rental Yield
- 4.35 %Decreased by 8.23 %
- Crime Rate
- 1.00 %Unchanged by 0.00 %
from 415,313.00 £
from 778,850.00 £
from 1,640.00 £/mo
from 1,850.00 £/mo
from 4.74 %
from 1.00 %
Agent Activity
Smart Homes Ltd created the listing.
Nearby Schools
| Name | Type | Ofsted | Distance |
|---|---|---|---|
| Meadow Green Primary School | Community School | Good | 0.93 KM |
| Cottonwood Children'S Centre | Children's Centre | 1.17 KM | |
| Woodrush High School | Academy Converter | Good | 1.46 KM |
| Coppice Primary School | Academy Converter | Good | 1.59 KM |
| Tidbury Green School | Community School | Good | 2.54 KM |
Images
Nearby Streets
| Name | Average Price | Average Sqft | Distance |
|---|---|---|---|
| Burnham Road | £ 479,167 | 0 | 0.00 KM |
| Hounsdfield Farmhouse | £ 295,000 | 0 | 0.00 KM |
| Manor Road | £ 550,000 | 0 | 0.00 KM |
| Franklin Close | £ 425,000 | 0 | 0.00 KM |
| Laburnum Close | £ 285,000 | 0 | 0.00 KM |
Nearby Transport
| Name | NLC | TLC | Distance |
|---|---|---|---|
| Wythall | 4532 | WYT | 1.00 KM |
| Earlswood (West Midlands) | 4520 | EWD | 1.74 KM |
| Whitlocks End | 4539 | WTE | 3.01 KM |
| The Lakes (Warks) | 4538 | TLK | 3.72 KM |
| Shirley | 4526 | SRL | 4.38 KM |
Nearby Listings
| Address | Price | Type | Score | Distance |
|---|---|---|---|---|
| Station Road, Wythall | £ 850,000 | BUY | 8 / 10 | 0.00 KM |
| Burnham Road, Wythall | £ 450,000 | BUY | 8 / 10 | 0.13 KM |
| Station Road, Wythall, B47 6AE | £ 500,000 | BUY | 7 / 10 | 0.14 KM |
| Station Road, Wythall, B47 6AE | £ 440,000 | BUY | 6 / 10 | 0.14 KM |
| Hastings Close, Wythall, B47 6AW | £ 535,000 | BUY | 7 / 10 | 0.20 KM |
Nearby Properties
| Address | Price | Distance |
|---|---|---|
| 155 Station Road | £ 207,500 | 0.11 KM |
| 151 Station Road | £ 412,500 | 0.11 KM |
| 183 Station Road | £ 380,000 | 0.11 KM |
| 153 Station Road | £ 590,000 | 0.11 KM |
| 177 Station Road | £ 690,000 | 0.11 KM |