Mark Ewin says ..
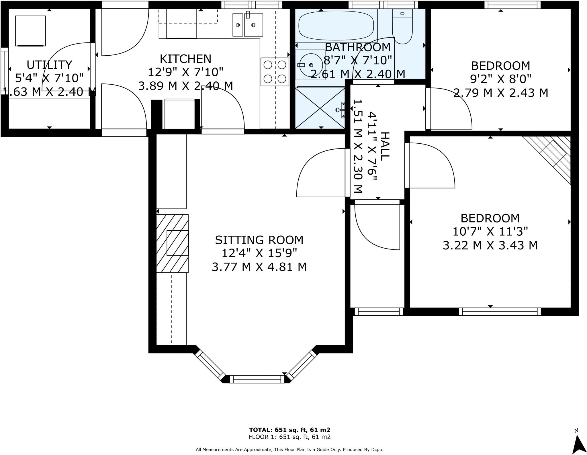
A two-bedroom, semi-detached bungalow in the village of Great Whelnetham benefitting from off-road parking and a double garage. The accommodation includes an entrance hall, sitting room with wood burner, kitchen, useful utility room, two bedrooms and a bathroom. The kitchen offers a range of w...
Property Oracle says ..
This 2-bedroom property located on Tutelina Road, Great Whelnetham, offers a blend of desirable features and areas for potential improvement. The village setting provides a quiet and family-friendly environment, with the added benefit of a primary school nearby. The property benefits from a decent-sized garden, providing outdoor space. The interior is presented in a reasonably contemporary style, with some updates to decor and fixtures, however, the kitchen and bathroom present more of a dated feel. The lack of plot size and the limited information on comparable property sizes make an accurate evaluation of the property’s value challenging. However, the asking price appears to be relatively affordable compared to other properties in the region but there is evidence suggesting it is perhaps high given the size of the property and the overall market in the area. Potential buyers should carefully consider both the property’s positives, such as the location and presence of a garden and the need for some future renovations and updates to aspects of the property before deciding.
Therefore, we give this property 6 / 10. *Disclaimer: This is our option and does constitute a recommendation or financial advice. Do your own research. *
- Price
- 7
- Condition
- 6
- Location
- 7
- Land
- 5
- Bedrooms
- 2
- Bathrooms
- 1
- Sqft (est)
- 656.60
The heatmap indicates the level of crime in the area. The color of the heatmap indicates the crime severity and recency.
Metrics Year-on-Year
- Average area value
- 223,188.00 £Decreased by 13.36 %
- Est sale value
- 206,172.40 £Decreased by 2.48 %
- Average area rental value
- 1,283.00 £/moIncreased by 2.15 %
- Est letting value
- 656.60 £/moUnchanged by 0.00 %
- Est rental Yield
- 6.90 %Increased by 17.95 %
- Crime Rate
- 112.00 %Unchanged by 0.00 %
Agent Activity
Mark Ewin created the listing.
Nearby Schools
| Name | Type | Ofsted | Distance |
|---|---|---|---|
| Great Whelnetham Church Of England Primary School | Academy Sponsor Led | 0.71 KM | |
| South Lee School | Other Independent School | 3.78 KM | |
| Riverwalk School | Academy Special Converter | 4.02 KM | |
| Hardwick Children'S Centre | Children's Centre | 4.21 KM | |
| Sebert Wood Community Primary School | Community School | Outstanding | 4.33 KM |
Images
Nearby Transport
| Name | NLC | TLC | Distance |
|---|---|---|---|
| Bury St Edmunds | 7008 | BSE | 6.76 KM |
| Thurston | 7356 | TRS | 8.10 KM |
Nearby Listings
| Address | Price | Type | Score | Distance |
|---|---|---|---|---|
| Tutelina Road, Great Whelnetham | £ 260,000 | BUY | 6 / 10 | 0.00 KM |
| Tutelina Road, Great Whelnetham | £ 290,000 | BUY | Unknown | 0.05 KM |
| Tutelina Road, Great Whelnetham | £ 350,000 | BUY | 7 / 10 | 0.13 KM |
| Raynsford Road, Great Whelnetham | £ 325,000 | BUY | 7 / 10 | 0.15 KM |
| Raynsford Road, Great Whelnetham, Bury St Edmunds | £ 270,000 | BUY | 6 / 10 | 0.16 KM |
Nearby Properties
| Address | Price | Distance |
|---|---|---|
| 38 Raynsford Road | £ 241,000 | 0.14 KM |
| 26 Raynsford Road | £ 217,750 | 0.14 KM |
| 5 Raynsford Road | £ 60,000 | 0.14 KM |
| 34 Raynsford Road | £ 180,000 | 0.14 KM |
| 7 Raynsford Road | £ 275,000 | 0.14 KM |