High Street, Ewell Village, KT17
By Greenfield & Company
£ 399,950
Reviews
3 out of 5 stars
Greenfield & Company says ..
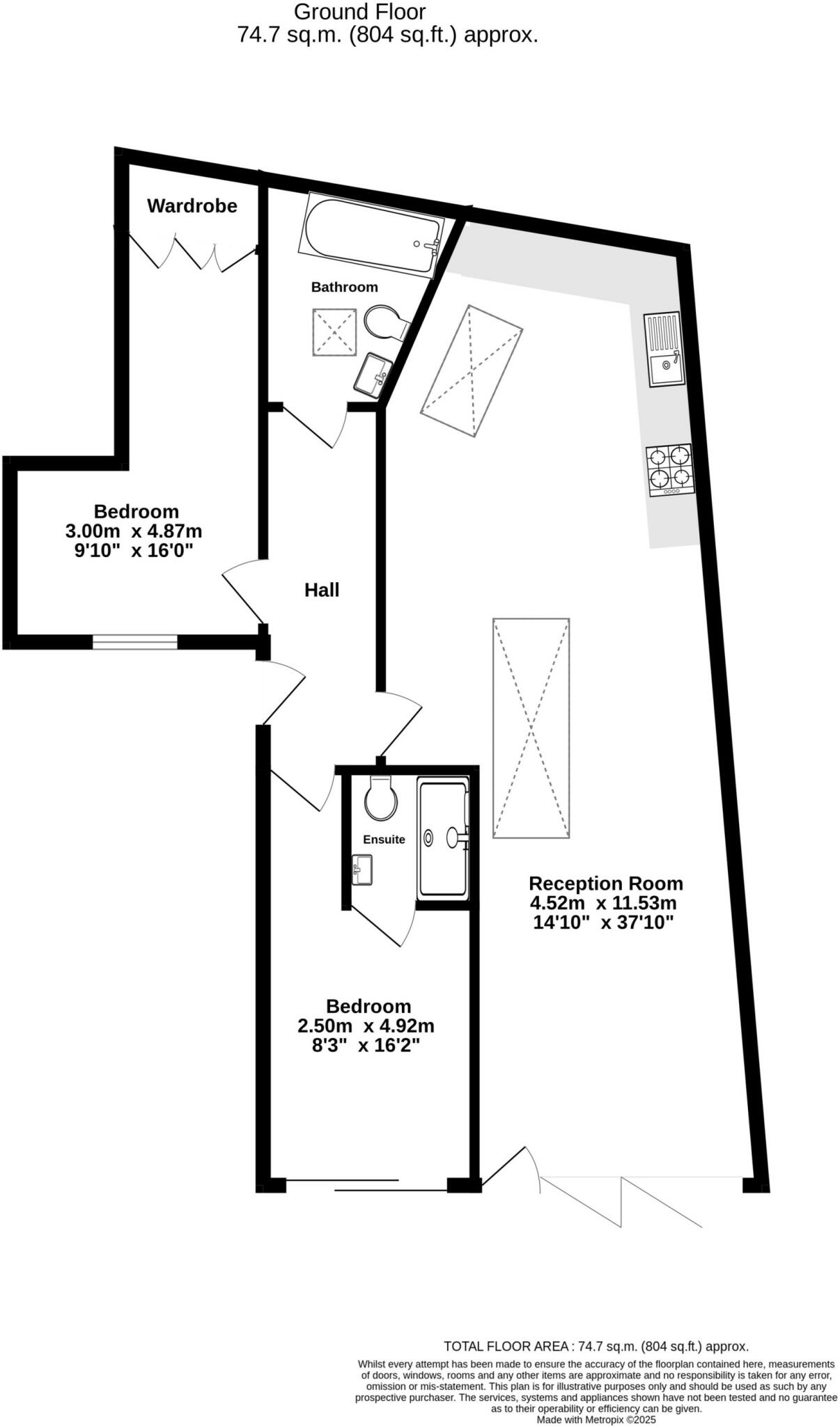
CENTRAL VILLAGE LOCATION - PRIVATE GARDEN - SHARE OF FREEHOLD - A beautifully converted & newly extended 2 bed ground floor maisonette, in a most convenient position for all village amenities, buses & train stations, boasting brand new, high quality fittings throughout and boasting a priv...
Property Oracle says ..
This recently renovated two-bedroom maisonette in Ewell Village, Surrey, presents a compelling proposition for buyers seeking a modern and conveniently located home. Situated on the High Street, the property benefits from excellent proximity to local shops, restaurants, and transportation links, including both Ewell West and Ewell East train stations. The nearby presence of highly rated schools, such as Ewell Grove Primary and Glyn School, further adds to its family-friendly appeal.
The interior is striking, having clearly undergone a full refurbishment. The images reveal a contemporary design with a neutral color palette and high-quality materials, including the modern kitchen, stylish bathrooms, and herringbone flooring throughout. The open-plan living space creates a bright and airy feel, and the large bifold doors leading to the private patio area seamlessly connect indoor and outdoor living areas.
The small private garden, although nicely paved, is limited in size. However, the location, condition, and quality of renovations offset this limitation.
Potential buyers should note the lack of available information regarding the property’s plot size, making definitive conclusions regarding value for money somewhat difficult. This information would facilitate a more precise valuation and a better comparison to other properties in the area. Nevertheless, based on the evidence at hand, this property could represent a worthwhile investment in a very well connected location with excellent transport links and schools.
Therefore, we give this property 7 / 10. *Disclaimer: This is our option and does constitute a recommendation or financial advice. Do your own research. *
- Price
- 7
- Condition
- 9
- Location
- 9
- Land
- 4
- Bedrooms
- 2
- Bathrooms
- 2
- Sqft (est)
- 804.06
The heatmap indicates the level of crime in the area. The color of the heatmap indicates the crime severity and recency.
Metrics Year-on-Year
- Average area value
- 636,667.00 £Increased by 2.53 %
- Est sale value
- 480,023.82 £Increased by 13.71 %
- Average area rental value
- 1,950.00 £/moIncreased by 15.73 %
- Est letting value
- 804.06 £/moUnchanged by 0.00 %
- Est rental Yield
- 3.68 %Increased by 12.88 %
- Crime Rate
- 15.00 %Unchanged by 0.00 %
Agent Activity
Greenfield & Company created the listing.
Nearby Schools
| Name | Type | Ofsted | Distance |
|---|---|---|---|
| Ewell Grove Primary And Nursery School | Community School | Outstanding | 0.15 KM |
| Ewell Castle School | Other Independent School | 0.32 KM | |
| St Clement'S Catholic Primary School | Voluntary Aided School | Good | 0.71 KM |
| North East Surrey College Of Technology | Further Education | Good | 0.88 KM |
| Glyn School | Academy Converter | Outstanding | 0.95 KM |
Images
Nearby Streets
| Name | Average Price | Average Sqft | Distance |
|---|---|---|---|
| Carpenter Close | £ 0 | 0 | 0.00 KM |
| Tudor Close | £ 0 | 0 | 0.00 KM |
| Portway | £ 0 | 0 | 0.00 KM |
| St Giles Close | £ 700,000 | 0 | 0.00 KM |
| Constable Close | £ 0 | 0 | 0.00 KM |
Nearby Transport
| Name | NLC | TLC | Distance |
|---|---|---|---|
| Ewell West | 5586 | EWW | 0.85 KM |
| Ewell East | 5415 | EWE | 0.96 KM |
| Stoneleigh | 5606 | SNL | 1.60 KM |
| Epsom | 5360 | EPS | 2.70 KM |
| Epsom Downs | 5361 | EPD | 3.04 KM |
Nearby Listings
| Address | Price | Type | Score | Distance |
|---|---|---|---|---|
| High Street, Ewell Village, KT17 | £ 399,950 | BUY | 7 / 10 | 0.00 KM |
| High Street, Ewell Village, | £ 220,000 | BUY | 6 / 10 | 0.01 KM |
| High Street, Ewell, Epsom | £ 220,000 | BUY | 5 / 10 | 0.02 KM |
| High Street, Ewell Village, KT17 | £ 449,950 | BUY | 7 / 10 | 0.03 KM |
| High Street, Ewell, Epsom | £ 275,000 | BUY | 6 / 10 | 0.03 KM |
Nearby Properties
| Address | Price | Distance |
|---|---|---|
| 40a High Street | £ 132,000 | 0.01 KM |
| 30a High Street | £ 225,000 | 0.01 KM |
| 32 High Street | £ 540,000 | 0.01 KM |
| 10 Cheam Road | £ 565,000 | 0.07 KM |
| 22 Cheam Road | £ 431,700 | 0.07 KM |