WI
Holmesley Road, Borehamwood, Hertfordshire, WD6
By Winkworth
£ 360,000
Reviews
3 out of 5 stars
Winkworth says ..
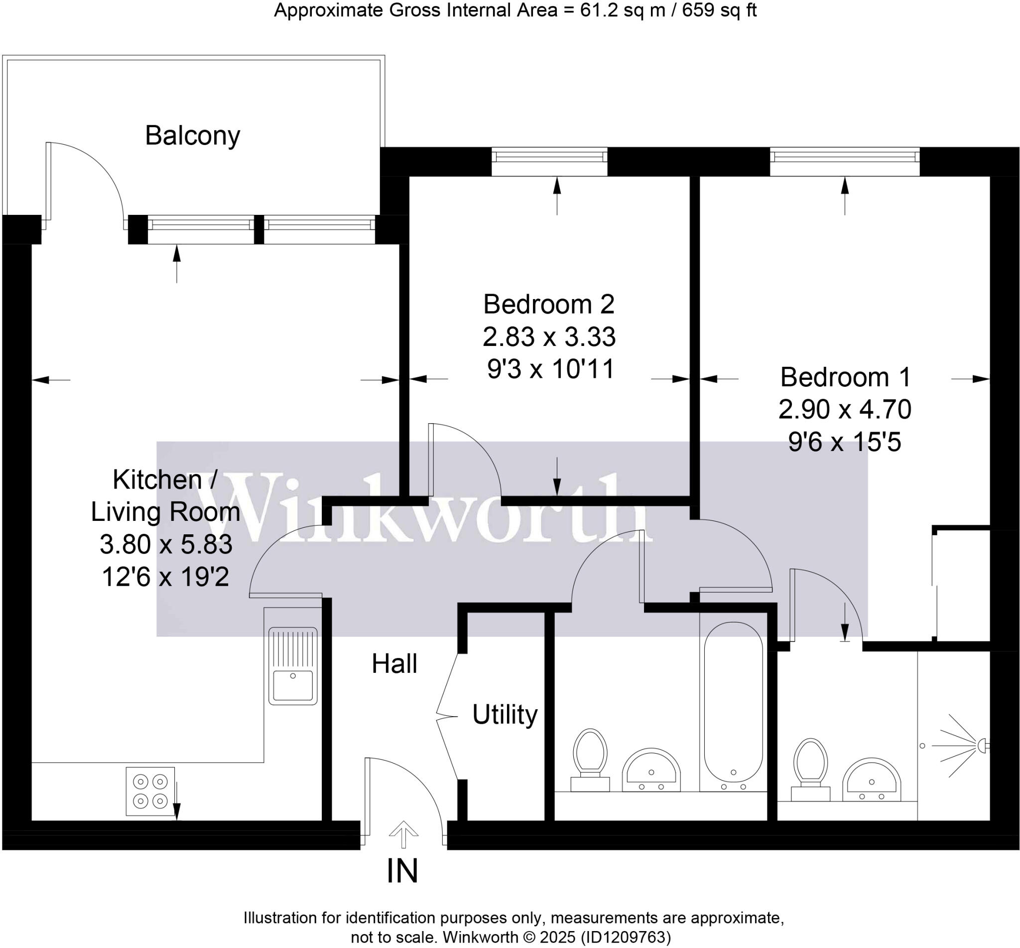
Constructed approx. six years ago by the highly regarded and award winning developers, Bellway Homes, is this well presented two double bedroom, two bathroom second floor apartment situated on the highly desirable Hertsmere Mews development, and within easy access of Borehamwood's bustling High S...
Property Oracle says ..
Therefore, we give this property 6 / 10. *Disclaimer: This is our option and does constitute a recommendation or financial advice. Do your own research. *
- Price
- 7
- Condition
- 8
- Location
- 7
- Land
- 3
- Bedrooms
- 2
- Bathrooms
- 2
The heatmap indicates the level of crime in the area. The color of the heatmap indicates the crime severity and recency.
Metrics Year-on-Year
- Average area value
- 389,998.00 £Decreased by 21.89 %
- Average area rental value
- 1,617.00 £/moDecreased by 8.80 %
- Est rental Yield
- 4.98 %Increased by 16.90 %
- Crime Rate
- 18.00 %Unchanged by 0.00 %
from 499,264.00 £
from 1,773.00 £/mo
from 4.26 %
from 18.00 %
Agent Activity
Winkworth created the listing.
Nearby Schools
| Name | Type | Ofsted | Distance |
|---|---|---|---|
| H5 Borehamwood Link Family Centre | Children's Centre | 0.16 KM | |
| Elstree Screen Arts Academy | University Technical College | Good | 0.44 KM |
| St Teresa Catholic Primary School | Voluntary Aided School | Good | 0.62 KM |
| Hertswood Academy | Academy Converter | Requires improvement | 0.62 KM |
| Monksmead School | Community School | Good | 0.68 KM |
Images
Nearby Streets
| Name | Average Price | Average Sqft | Distance |
|---|---|---|---|
| Gregson Close | £ 0 | 0 | 0.00 KM |
| Meadow Road | £ 0 | 0 | 0.00 KM |
| Baker Court | £ 0 | 0 | 0.00 KM |
| Northfield Road | £ 0 | 0 | 0.00 KM |
| Denham Way | £ 0 | 0 | 0.00 KM |
Nearby Transport
| Name | NLC | TLC | Distance |
|---|---|---|---|
| Elstree And Borehamwood | 1542 | ELS | 1.85 KM |
| Mill Hill Broadway | 1527 | MIL | 5.62 KM |
| Radlett | 1546 | RDT | 6.34 KM |
| Potters Bar | 6022 | PBR | 8.99 KM |
| Hendon | 1522 | HEN | 9.48 KM |
Nearby Listings
| Address | Price | Type | Score | Distance |
|---|---|---|---|---|
| Holmesley Road, Borehamwood, Hertfordshire, WD6 | £ 360,000 | BUY | 6 / 10 | 0.00 KM |
| Holmesley Road, Borehamwood, WD6 1AJ | £ 425,000 | BUY | 6 / 10 | 0.03 KM |
| Nuffield House,Holmesley Road, Borehamwood | £ 375,000 | BUY | 6 / 10 | 0.03 KM |
| Darwin House,Holmesley Road, Borehamwood | £ 375,000 | BUY | Unknown | 0.03 KM |
| Darwin House,Holmesley Road, Borehamwood | £ 279,000 | BUY | Unknown | 0.05 KM |
Nearby Properties
| Address | Price | Distance |
|---|---|---|
| 19 Todd Close | £ 410,000 | 0.20 KM |
| 24 Todd Close | £ 471,000 | 0.20 KM |
| 9 Todd Close | £ 528,000 | 0.21 KM |
| 15 Todd Close | £ 510,000 | 0.21 KM |
| 18 Todd Close | £ 515,000 | 0.21 KM |