Airbles Street, Motherwell
By Fred Estate Agents
£ 90,000
Reviews
2 out of 5 stars
Fred Estate Agents says ..
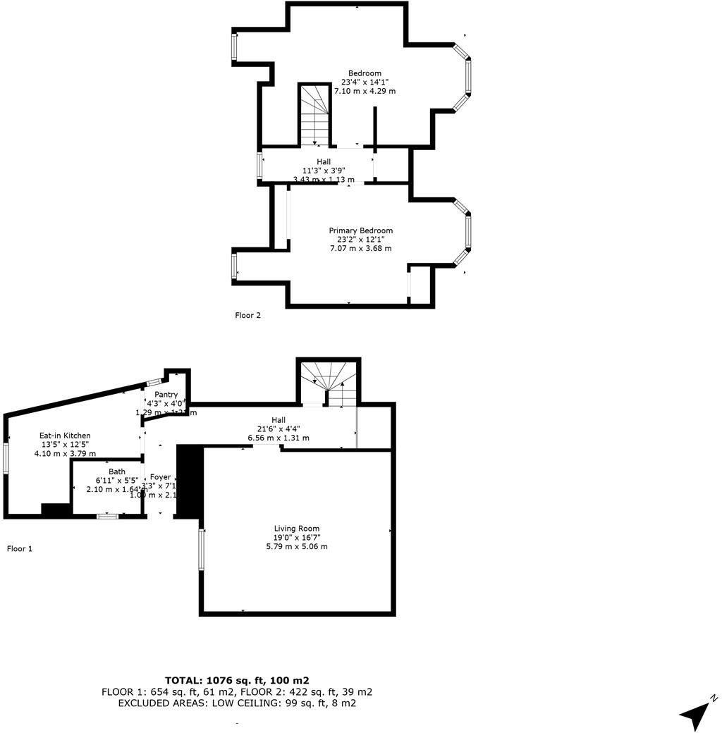
Situated within a central sought after location within the town of Motherwell and providing bright and airy accommodation throughout, lies this stunning two bedroom first floor attic flat.
Property Oracle says ..
This 2-bedroom, 1-bathroom property located on Airbles Street, Motherwell offers a modern and well-maintained interior. The photographs reveal recent renovations or updates to the kitchen and bathroom, presenting a contemporary aesthetic. The living spaces are well-presented, with stylish décor. The property is conveniently located near Airbles train station. A notable drawback is the lack of a garden or any exterior land. This could affect appeal to families or individuals seeking outdoor space. While the listed price seems competitive compared to similar properties in the area, it would be beneficial to have price per square foot information available for accurate comparison. The absence of details regarding nearby schools does impact assessment of the area, albeit the proximity to transport links mitigates this somewhat. Overall, this property would be well suited to a young professional or couple, or possibly an investor considering the lack of land and convenient rail location.
Therefore, we give this property 5 / 10. *Disclaimer: This is our option and does constitute a recommendation or financial advice. Do your own research. *
- Price
- 7
- Condition
- 8
- Location
- 7
- Land
- 1
- Bedrooms
- 2
- Bathrooms
- 1
- Sqft (est)
- 1,076.00
The heatmap indicates the level of crime in the area. The color of the heatmap indicates the crime severity and recency.
Metrics Year-on-Year
- Average area value
- 207,222.00 £Decreased by 2.13 %
- Est sale value
- 275,456.00 £Increased by 16.89 %
- Average area rental value
- 836.00 £/moDecreased by 9.62 %
- Est letting value
- 1,076.00 £/mo
- Est rental Yield
- 4.84 %Decreased by 7.63 %
- Crime Rate
- 0.00 %
Agent Activity
Fred Estate Agents created the listing.
Images
Nearby Streets
| Name | Average Price | Average Sqft | Distance |
|---|---|---|---|
| Windmill Court | £ 84,999 | 0 | 0.00 KM |
| Cross Stone Place | £ 138,333 | 0 | 0.00 KM |
| School View | £ 0 | 0 | 0.00 KM |
| Oakfield Drive | £ 85,000 | 0 | 0.00 KM |
| Cairns Street | £ 78,995 | 0 | 0.00 KM |
Nearby Transport
| Name | NLC | TLC | Distance |
|---|---|---|---|
| Airbles | 9695 | AIR | 0.93 KM |
| Motherwell | 9691 | MTH | 1.08 KM |
| Chatelherault | 9707 | CTE | 3.06 KM |
| Holytown | 9738 | HLY | 3.30 KM |
| Shieldmuir | 9552 | SDM | 3.39 KM |
Nearby Listings
| Address | Price | Type | Score | Distance |
|---|---|---|---|---|
| Airbles Street, Motherwell | £ 90,000 | BUY | 5 / 10 | 0.00 KM |
| Windmill Court, Motherwell | £ 87,500 | BUY | 5 / 10 | 0.02 KM |
| Windmill Court, Motherwell | £ 95,000 | BUY | 6 / 10 | 0.08 KM |
| Cross Stone Place, Motherwell | £ 130,000 | BUY | 7 / 10 | 0.09 KM |
| Windmill Court, Motherwell | £ 100,000 | BUY | 6 / 10 | 0.12 KM |