MC
10 Maison Dieu Place, Dover, CT16 1DX
By McHugh & Co
£ 100,000
Reviews
2 out of 5 stars
McHugh & Co says ..
LOT 244 **FOR SALE BY ONLINE AUCTION** on 18th September 2025 Freehold House Vacant Possession
Property Oracle says ..
Therefore, we give this property 5 / 10. *Disclaimer: This is our option and does constitute a recommendation or financial advice. Do your own research. *
- Price
- 9
- Condition
- 1
- Location
- 7
- Land
- 3
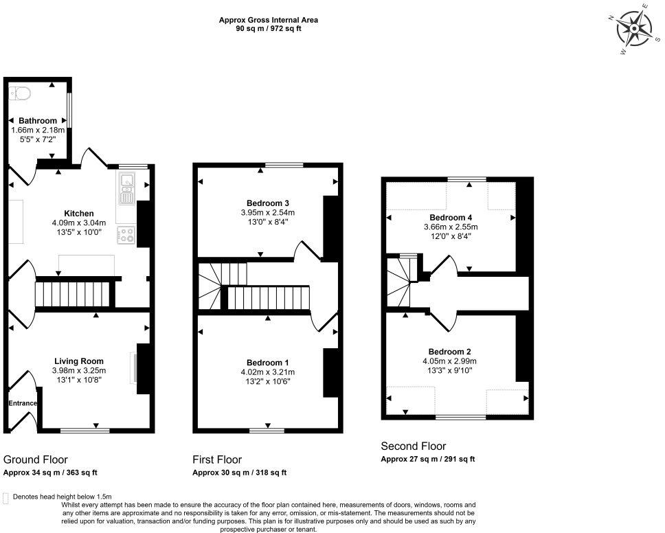
- Bedrooms
- 4
- Bathrooms
- 0
- Sqft (est)
- 789.53
The heatmap indicates the level of crime in the area. The color of the heatmap indicates the crime severity and recency.
Metrics Year-on-Year
- Average area value
- 174,500.00 £Decreased by 9.78 %
- Est sale value
- 374,237.22 £Increased by 120.47 %
- Average area rental value
- 983.00 £/moDecreased by 9.82 %
- Est letting value
- 1,579.06 £/moIncreased by 100.00 %
- Est rental Yield
- 6.76 %Unchanged by 0.00 %
- Crime Rate
- 40.00 %Unchanged by 0.00 %
from 193,425.00 £
from 169,748.95 £
from 1,090.00 £/mo
from 789.53 £/mo
from 6.76 %
from 40.00 %
Agent Activity
McHugh & Co created the listing.
Nearby Schools
| Name | Type | Ofsted | Distance |
|---|---|---|---|
| Dover College | Other Independent School | 0.19 KM | |
| Dover Grammar School For Girls | Community School | Outstanding | 0.49 KM |
| St Richard'S Catholic Primary School | Academy Converter | Good | 0.54 KM |
| Charlton Church Of England Primary School | Academy Sponsor Led | Good | 0.61 KM |
| St Edmund'S Catholic School | Academy Sponsor Led | Requires improvement | 0.75 KM |
Images
Nearby Streets
| Name | Average Price | Average Sqft | Distance |
|---|---|---|---|
| Wood Street | £ 210,000 | 0 | 0.00 KM |
| St. Edmunds Walk | £ 0 | 0 | 0.00 KM |
| Park Street | £ 335,000 | 0 | 0.00 KM |
| Edwards Road | £ 0 | 0 | 0.00 KM |
| Bridge Street | £ 0 | 0 | 0.00 KM |
Nearby Transport
| Name | NLC | TLC | Distance |
|---|---|---|---|
| Dover Priory | 5033 | DVP | 0.49 KM |
| Kearsney (Kent) | 5038 | KSN | 4.54 KM |
| Martin Mill | 5040 | MTM | 6.41 KM |
Nearby Listings
| Address | Price | Type | Score | Distance |
|---|---|---|---|---|
| 10 Maison Dieu Place, Dover, Kent, CT16 1DX | £ 110,000 | BUY | 5 / 10 | 0.00 KM |
| 10 Maison Dieu Place, Dover, Kent, CT16 1DX | £ 120,000 | BUY | 5 / 10 | 0.00 KM |
| 10 Maison Dieu Place, Dover, CT16 1DX | £ 100,000 | BUY | 5 / 10 | 0.00 KM |
| 10 Maison Dieu Place, Dover, Kent, CT16 1DX | £ 110,000 | BUY | 5 / 10 | 0.00 KM |
| Wood Street, Dover, Kent | £ 139,000 | BUY | Unknown | 0.03 KM |
Nearby Properties
| Address | Price | Distance |
|---|---|---|
| 3 Goodfellow Way | £ 126,500 | 0.06 KM |
| 6 Goodfellow Way | £ 125,000 | 0.06 KM |
| 14 Wood Street | £ 175,000 | 0.07 KM |
| 7 Wood Street | £ 110,000 | 0.07 KM |
| 21 Wood Street | £ 119,500 | 0.07 KM |