Central Reading, Berkshire, RG1
By Chancellors
£ 280,000
Reviews
3 out of 5 stars
Chancellors says ..
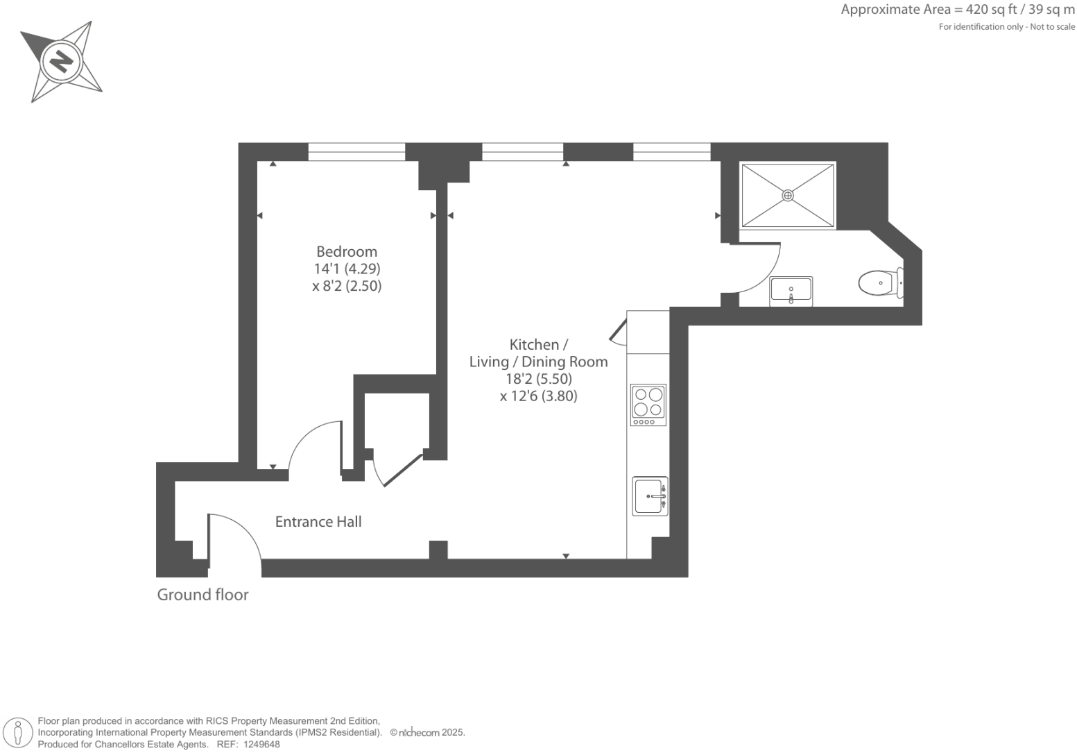
Set in this central position within the heart of Reading Town Centre is this one bedroom, well presented apartment. Accommodation includes open living space with kitchen with appliances, shower room, double bedroom. No chain
Property Oracle says ..
This property is a one-bedroom flat located in a central Reading location on Broad Street. The flat is modern and well presented, with a contemporary kitchen and bathroom. The location benefits from being close to Reading train station, providing excellent transport links. There are also several schools and amenities within walking distance. The list price of £280,000 is slightly below the average price for the area, however, the property is significantly smaller than the average size, with only 420 sqft. Therefore, the price per sqft is higher than average. Overall, this is a well-located, modern flat suitable for a single person or couple. However, the lack of outdoor space is a notable drawback.
Therefore, we give this property 6 / 10. *Disclaimer: This is our option and does constitute a recommendation or financial advice. Do your own research. *
- Price
- 7
- Condition
- 9
- Location
- 9
- Land
- 1
- Bedrooms
- 1
- Bathrooms
- 1
- Sqft (est)
- 420.00
- Lot (est)
- 420.00
The heatmap indicates the level of crime in the area. The color of the heatmap indicates the crime severity and recency.
Metrics Year-on-Year
- Average area value
- 350,323.00 £Decreased by 1.18 %
- Est sale value
- 181,020.00 £Increased by 20.73 %
- Average area rental value
- 1,334.00 £/moDecreased by 2.49 %
- Est letting value
- 420.00 £/moUnchanged by 0.00 %
- Est rental Yield
- 4.57 %Decreased by 1.30 %
- Crime Rate
- 48.00 %Unchanged by 0.00 %
Agent Activity
Chancellors created the listing.
Nearby Schools
| Name | Type | Ofsted | Distance |
|---|---|---|---|
| Katesgrove Primary School | Community School | Good | 0.75 KM |
| The Deenway Montessori School | Other Independent School | Good | 0.90 KM |
| Kendrick School | Academy Converter | 0.91 KM | |
| E P Collier Primary School | Community School | Good | 0.97 KM |
| Coley Primary School | Community School | Good | 1.01 KM |
Images
Nearby Streets
| Name | Average Price | Average Sqft | Distance |
|---|---|---|---|
| Market Place | £ 210,000 | 0 | 0.00 KM |
| Butter Market | £ 0 | 0 | 0.00 KM |
| Station Road | £ 273,750 | 0 | 0.00 KM |
| King Street | £ 0 | 0 | 0.00 KM |
| Minster Street | £ 0 | 0 | 0.00 KM |
Nearby Transport
| Name | NLC | TLC | Distance |
|---|---|---|---|
| Reading | 3149 | RDG | 0.32 KM |
| Reading West | 3160 | RDW | 2.12 KM |
| Earley | 5694 | EAR | 6.09 KM |
| Tilehurst | 3154 | TLH | 6.73 KM |
| Winnersh Triangle | 5698 | WTI | 9.07 KM |
Nearby Listings
| Address | Price | Type | Score | Distance |
|---|---|---|---|---|
| Central Reading, Berkshire, RG1 | £ 280,000 | BUY | 6 / 10 | 0.00 KM |
| Cross Street, Reading, Berkshire, RG1 | £ 600,000 | BUY | 6 / 10 | 0.06 KM |
| 7-11 Station Road, Reading, RG1 | £ 285,000 | BUY | 6 / 10 | 0.08 KM |
| Queen Victoria Street, Reading, Berkshire, RG1 | £ 250,000 | BUY | 5 / 10 | 0.10 KM |
| Market Place, Reading, Berkshire, RG1 | £ 169,995 | BUY | Unknown | 0.12 KM |
Nearby Properties
| Address | Price | Distance |
|---|---|---|
| 27 Cross Street | £ 825,000 | 0.04 KM |
| 6 Cross Street | £ 485,000 | 0.07 KM |
| 16 Kings Road | £ 410,000 | 0.45 KM |
| 25 Crane Wharf | £ 481,000 | 0.47 KM |
| 27 Crane Wharf | £ 249,950 | 0.47 KM |