OA
Penton Road, Staines Upon Thames, Surrey, TW18
By Oasis Estate Agents
£ 350,000
Reviews
3 out of 5 stars
Oasis Estate Agents says ..
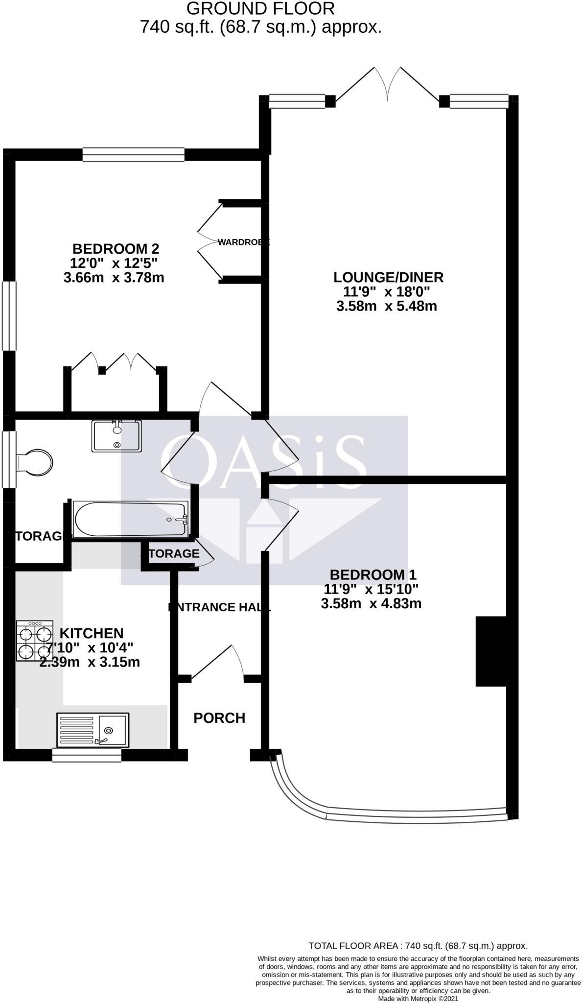
Oasis are pleased to offer to the market this extended ground floor maisonette. The property is situated in a popular residential road close to the River Thames and within a close distance to Staines-upon-Thames town centre. The property is in good decorative order and the accommodation comprises...
Property Oracle says ..
Therefore, we give this property 7 / 10. *Disclaimer: This is our option and does constitute a recommendation or financial advice. Do your own research. *
- Price
- 8
- Condition
- 8
- Location
- 7
- Land
- 7
- Bedrooms
- 2
- Bathrooms
- 1
- Sqft (est)
- 739.48
The heatmap indicates the level of crime in the area. The color of the heatmap indicates the crime severity and recency.
Metrics Year-on-Year
- Average area value
- 512,500.00 £Decreased by 7.89 %
- Est sale value
- 491,754.20 £Increased by 39.41 %
- Average area rental value
- 2,075.00 £/moIncreased by 3.18 %
- Est letting value
- 1,478.96 £/moIncreased by 100.00 %
- Est rental Yield
- 4.86 %Increased by 11.98 %
- Crime Rate
- 5.00 %Unchanged by 0.00 %
from 556,426.00 £
from 352,731.96 £
from 2,011.00 £/mo
from 739.48 £/mo
from 4.34 %
from 5.00 %
Agent Activity
Oasis Estate Agents created the listing.
Nearby Schools
| Name | Type | Ofsted | Distance |
|---|---|---|---|
| Our Lady Of The Rosary Rc Primary School | Voluntary Aided School | Good | 0.45 KM |
| Riverbridge Primary School | Academy Converter | Good | 0.58 KM |
| Staines Preparatory School | Other Independent School | 1.14 KM | |
| The Magna Carta School | Academy Converter | Good | 1.59 KM |
| The Haven Sure Start Children'S Centre | Children's Centre | 1.67 KM |
Images
Nearby Streets
| Name | Average Price | Average Sqft | Distance |
|---|---|---|---|
| St Peter's Close | £ 700,000 | 0 | 0.00 KM |
| Park Avenue | £ 0 | 0 | 0.00 KM |
| Thames Side | £ 0 | 0 | 0.00 KM |
| Parkside Place | £ 0 | 0 | 0.00 KM |
| Elmsleigh Road | £ 0 | 0 | 0.00 KM |
Nearby Transport
| Name | NLC | TLC | Distance |
|---|---|---|---|
| Staines | 5670 | SNS | 1.00 KM |
| Chertsey | 5553 | CHY | 4.18 KM |
| Egham | 5669 | EGH | 4.34 KM |
| Ashford (Surrey) | 5667 | AFS | 4.57 KM |
| Wraysbury | 5673 | WRY | 5.29 KM |
Nearby Listings
| Address | Price | Type | Score | Distance |
|---|---|---|---|---|
| Penton Road, Staines Upon Thames, Surrey, TW18 | £ 350,000 | BUY | 7 / 10 | 0.00 KM |
| Allyn Close, Staines-upon-Thames, Surrey, TW18 | £ 550,000 | BUY | 6 / 10 | 0.05 KM |
| Penton Court, Jamnagar Close, Staines-upon-Thames, Surrey, TW18 | £ 280,000 | BUY | Unknown | 0.08 KM |
| Argosy Gardens, Staines-upon-Thames | £ 1,250,000 | BUY | Unknown | 0.09 KM |
| Penton Road, Staines, Surrey, TW18 | £ 700,000 | BUY | Unknown | 0.09 KM |
Nearby Properties
| Address | Price | Distance |
|---|---|---|
| 28 Penton Road | £ 325,000 | 0.02 KM |
| 16 Penton Road | £ 600,000 | 0.02 KM |
| 18b Penton Road | £ 280,000 | 0.02 KM |
| 18a Penton Road | £ 186,000 | 0.02 KM |
| 12 Penton Road | £ 520,000 | 0.02 KM |