Fair View, Dilton, Barnstaple, Devon, EX31 1JR
By Pattinson Estate Agents
£ 140,000
Reviews
3 out of 5 stars
Pattinson Estate Agents says ..
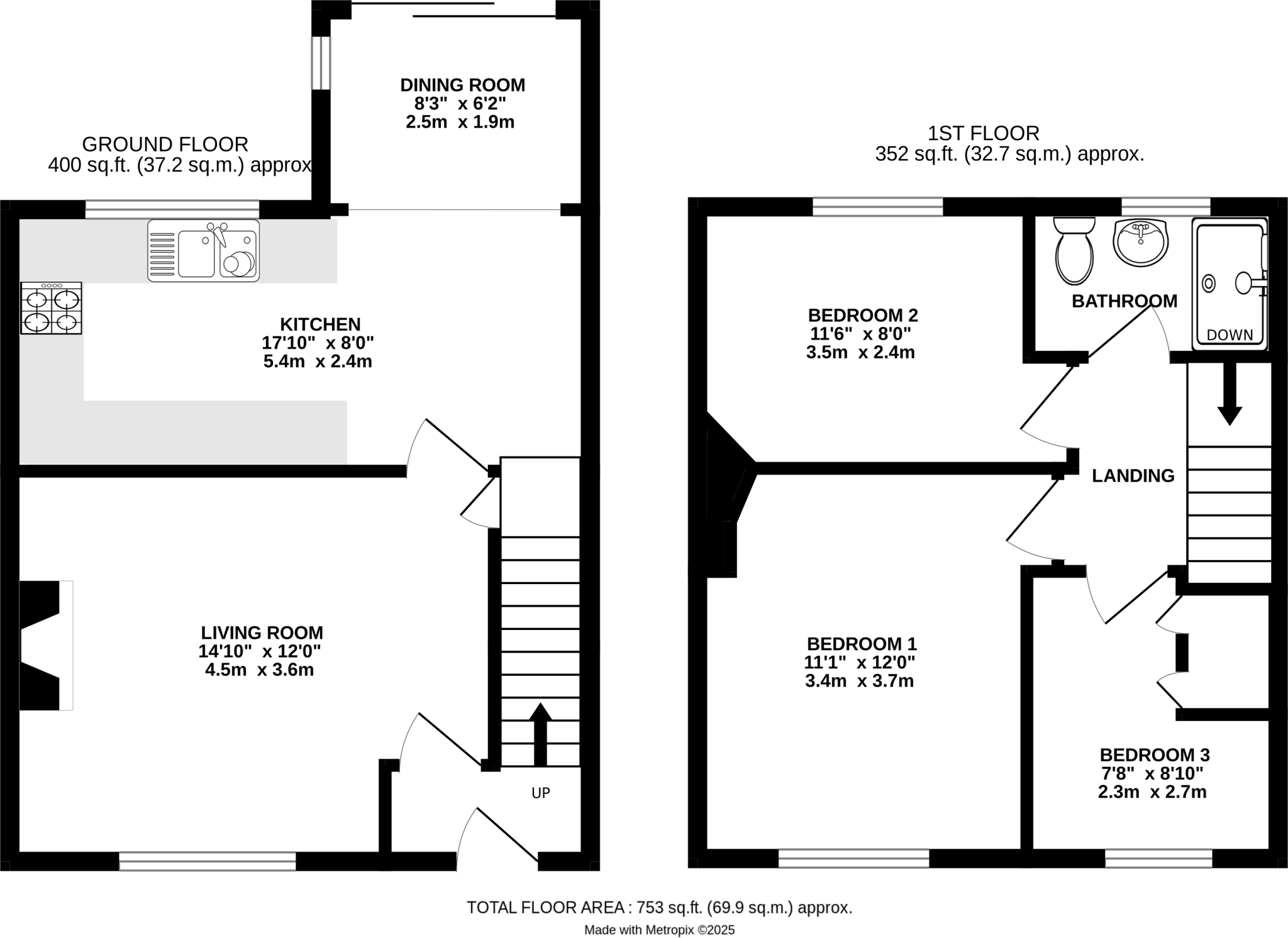
Presented to he market this three bedroom terraced house in need of general modernisation and improvement and being within easy level walking distance to Barnstaple Town Centre and all the amenities it offers, offering fantastic potential to add value throughout. Entering the property over t...
Property Oracle says ..
Therefore, we give this property 6 / 10. *Disclaimer: This is our option and does constitute a recommendation or financial advice. Do your own research. *
- Price
- 9
- Condition
- 3
- Location
- 7
- Land
- 7
- Bedrooms
- 3
- Bathrooms
- 1
- Sqft (est)
- 665.30
The heatmap indicates the level of crime in the area. The color of the heatmap indicates the crime severity and recency.
Metrics Year-on-Year
- Average area value
- 661,000.00 £Increased by 29.29 %
- Est sale value
- 360,592.60 £Increased by 47.28 %
- Average area rental value
- 2,410.00 £/moIncreased by 120.90 %
- Est letting value
- 665.30 £/mo
- Est rental Yield
- 4.38 %Increased by 71.09 %
- Crime Rate
- 6.00 %Unchanged by 0.00 %
from 511,241.00 £
from 244,830.40 £
from 1,091.00 £/mo
from 0.00 £/mo
from 2.56 %
from 6.00 %
Agent Activity
Pattinson Estate Agents created the listing.
Nearby Schools
| Name | Type | Ofsted | Distance |
|---|---|---|---|
| Pathfield School | Foundation Special School | Good | 0.30 KM |
| Pilton Bluecoat Church Of England Academy | Academy Converter | Good | 0.33 KM |
| Pilton Infants' School | Community School | Outstanding | 0.38 KM |
| Pilton Community College | Academy Converter | Requires improvement | 0.58 KM |
| Yeo Valley Primary School | Academy Sponsor Led | 1.28 KM |
Images
Nearby Streets
| Name | Average Price | Average Sqft | Distance |
|---|---|---|---|
| Mill Lane | £ 250,000 | 0 | 0.00 KM |
| Pathfield Lawn | £ 0 | 0 | 0.00 KM |
| Castle Quay | £ 0 | 0 | 0.00 KM |
| Whites Lane | £ 0 | 0 | 0.00 KM |
| Riddell Avenue | £ 335,000 | 0 | 0.00 KM |
Nearby Transport
| Name | NLC | TLC | Distance |
|---|---|---|---|
| Barnstaple | 5725 | BNP | 1.19 KM |
| Chapelton (Devon) | 5820 | CPN | 8.79 KM |
Nearby Listings
| Address | Price | Type | Score | Distance |
|---|---|---|---|---|
| Fair View, Dilton, Barnstaple, Devon, EX31 1JR | £ 140,000 | BUY | 6 / 10 | 0.00 KM |
| 74a Fair View, Barnstaple, Devon, EX31 1JR | £ 125,000 | BUY | 5 / 10 | 0.02 KM |
| Fair View, Pilton, Barnstaple, EX31 | £ 210,000 | BUY | 5 / 10 | 0.04 KM |
| Fair View, Barnstaple | £ 140,000 | BUY | 6 / 10 | 0.06 KM |
| Fair View, Barnstaple, EX31 | £ 227,850 | BUY | 6 / 10 | 0.06 KM |
Nearby Properties
| Address | Price | Distance |
|---|---|---|
| 19 Fair View | £ 220,000 | 0.06 KM |
| 20 Fair View | £ 150,000 | 0.06 KM |
| 16 Fair View | £ 155,500 | 0.06 KM |
| 73 Fair View | £ 160,000 | 0.06 KM |
| 67 Fair View | £ 175,000 | 0.06 KM |