Watermans, Romford
ST

Watermans, Romford

By Stratton & King Ltd

£ 140,000

Reviews

3 out of 5 stars

Stratton & King Ltd says ..

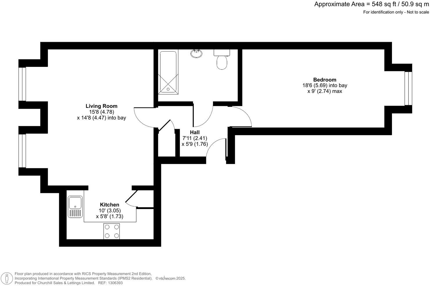
DRAFT PARTICULARS - Awaiting verification from the seller **ONE BEDROOM SECOND FLOOR RETIREMENT APARTMENT** Churchill Sales & Lettings are pleased to be marketing this one bedroom second floor apartment. The property is presented in good order and offers deceptively spacious acc...

Property Oracle says ..

Therefore, we give this property 7 / 10. *Disclaimer: This is our option and does constitute a recommendation or financial advice. Do your own research. *

Price
8
Condition
6
Location
7
Land
7
Bedrooms
1
Bathrooms
1
Sqft (est)
548.00

The heatmap indicates the level of crime in the area. The color of the heatmap indicates the crime severity and recency.

Metrics Year-on-Year

Average area value
320,556.00 £
Decreased by 21.24 %
from 407,014.00 £
Est sale value
213,172.00 £
Decreased by 14.32 %
from 248,792.00 £
Average area rental value
1,673.00 £/mo
Decreased by 4.18 %
from 1,746.00 £/mo
Est letting value
1,096.00 £/mo
Increased by 100.00 %
from 548.00 £/mo
Est rental Yield
6.26 %
Increased by 21.55 %
from 5.15 %
Crime Rate
3.00 %
Unchanged by 0.00 %
from 3.00 %

Agent Activity

  • Stratton & King Ltd created the listing.

Nearby Schools

NameTypeOfstedDistance
Bep AcademyOther Independent SchoolGood0.12 KM
St. Kilda Children'S CentreChildren's Centre0.18 KM
Gidea Park Primary SchoolCommunity SchoolGood0.78 KM
Hylands Primary SchoolCommunity SchoolGood1.17 KM
St Edward'S Church Of England Voluntary Aided Primary SchoolVoluntary Aided SchoolGood1.19 KM

Images

Back of Development 2.jpg 1306393-8-6846bcd976e28.jpg 1306393-4-6846ba945bb32.jpg 1306393-5-6846bb6bce6b8.jpg 1306393-6-6846bc1503ad4.jpg 1306393-3-6846b9629097e.jpg 12-1306393-6-6846b8e15763d-12.jpg 11-1306393-5-6846b7f154a46-11.jpg 1306393-2-6846b7398b76c.jpg 1306393-1-6846b72b94a07.jpg 1306393-9-6846bcfbcb075.jpg Owners Lounge.jpg Owners Lounge 2.jpg Guest Suite.jpg 1306393-10-6846bd1d4bcdf.jpg Back of development.jpg Parking.jpg

Nearby Streets

NameAverage PriceAverage SqftDistance
Marden Road £ 000.00 KM
Ducking Stool Court £ 240,00000.00 KM
The Mews £ 275,00000.00 KM
Brewery Walk £ 000.00 KM
Tudor Gardens £ 825,00000.00 KM

Nearby Transport

NameNLCTLCDistance
Romford6886RMF0.78 KM
Gidea Park6877GDP1.89 KM
Emerson Park7473EMP3.60 KM
Harold Wood6879HRO5.11 KM
Chadwell Heath6874CTH6.76 KM

Nearby Listings

AddressPriceTypeScoreDistance
Watermans, Romford £ 140,000BUY7 / 100.00 KM
Watermans, Romford £ 225,000BUY7 / 100.03 KM
Junction Road, Romford, RM1 £ 120,000BUY6 / 100.03 KM
Watermans, Junction Road, Romford, RM1 £ 145,000BUY6 / 100.06 KM
Junction Road, Romford, RM1 £ 200,000BUY7 / 100.06 KM

Nearby Properties

AddressPriceDistance
43d Junction Road £ 150,0000.02 KM
42 Junction Road £ 540,0000.02 KM
36 Junction Road £ 532,5000.02 KM
41 Junction Road £ 375,0000.02 KM
47 Junction Road £ 500,0000.02 KM