Mapps Estates says ..
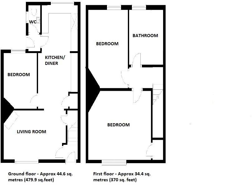
Mapps Estates are pleased to bring to the market this well-presented three bedroom mid-terraced property enjoying views of Dover Castle, the English Channel and surrounding hillside landscape to the rear. The ground floor accommodation comprises a living room with open fireplace, a spacious kitch...
Property Oracle says ..
This three-bedroom terraced house in Dover, Kent, presents itself as a comfortable family home. The interior photos show a recently updated and well-maintained kitchen and bathroom. The living areas are presented neatly. The property boasts a modest rear garden with a pergola; however, the garden’s size appears smaller than some typical terraced homes. The location is convenient, offering proximity to Dover Priory train station and several schools with positive Ofsted reports. While the property shows reasonable value, the lack of precise square footage data for comparable properties makes it slightly harder to evaluate its market position definitively. Further analysis of local comparable properties with accurate square footage would provide a more precise picture of the property’s overall market value. The views from the rear of the property are a notable positive factor; offering glimpses of the coastline and surrounding hills. The overall presentation of the property is very good, and it is well-suited for a small family seeking a well-presented property within reasonable proximity to local amenities and transport links. The property would benefit from further details regarding the overall plot size for more accurate comparative analysis of the price.
Therefore, we give this property 6 / 10. *Disclaimer: This is our option and does constitute a recommendation or financial advice. Do your own research. *
- Price
- 7
- Condition
- 6
- Location
- 7
- Land
- 4
- Bedrooms
- 3
- Bathrooms
- 1
- Sqft (est)
- 849.90
The heatmap indicates the level of crime in the area. The color of the heatmap indicates the crime severity and recency.
Metrics Year-on-Year
- Average area value
- 174,500.00 £Decreased by 9.78 %
- Est sale value
- 402,852.60 £Increased by 120.47 %
- Average area rental value
- 983.00 £/moDecreased by 9.82 %
- Est letting value
- 1,699.80 £/moIncreased by 100.00 %
- Est rental Yield
- 6.76 %Unchanged by 0.00 %
- Crime Rate
- 12.00 %Unchanged by 0.00 %
Agent Activity
Mapps Estates created the listing.
Nearby Schools
| Name | Type | Ofsted | Distance |
|---|---|---|---|
| The Daisy Children'S Centre | Children's Centre Linked Site | 0.41 KM | |
| Dover Grammar School For Boys | Foundation School | Good | 0.41 KM |
| Priory Fields School | Academy Converter | Good | 0.47 KM |
| Vale View Community School | Academy Converter | 0.53 KM | |
| Astor Secondary School | Academy Converter | Requires improvement | 0.61 KM |
Images
Nearby Streets
| Name | Average Price | Average Sqft | Distance |
|---|---|---|---|
| Hamilton Road | £ 0 | 0 | 0.00 KM |
| Monins Road | £ 210,000 | 0 | 0.00 KM |
| Belgrave Road | £ 230,000 | 0 | 0.00 KM |
| West Street | £ 0 | 0 | 0.00 KM |
| Alfred Road | £ 230,000 | 0 | 0.00 KM |
Nearby Transport
| Name | NLC | TLC | Distance |
|---|---|---|---|
| Dover Priory | 5033 | DVP | 1.32 KM |
| Kearsney (Kent) | 5038 | KSN | 3.31 KM |
| Martin Mill | 5040 | MTM | 7.60 KM |
| Shepherds Well | 5186 | SPH | 9.68 KM |
Nearby Listings
| Address | Price | Type | Score | Distance |
|---|---|---|---|---|
| Hamilton Road, Dover | £ 220,000 | BUY | 6 / 10 | 0.00 KM |
| Hamilton Road, Dover, CT17 | £ 190,000 | BUY | 5 / 10 | 0.06 KM |
| Hamilton Road, Dover, CT17 | £ 180,000 | BUY | 5 / 10 | 0.14 KM |
| Hamilton Road, Dover, CT17 | £ 160,000 | BUY | Unknown | 0.14 KM |
| Northbourne Avenue, Dover, CT17 | £ 185,000 | BUY | 6 / 10 | 0.14 KM |
Nearby Properties
| Address | Price | Distance |
|---|---|---|
| 43 Hamilton Road | £ 35,000 | 0.06 KM |
| 23 Hamilton Road | £ 200,000 | 0.06 KM |
| 15 Hamilton Road | £ 167,000 | 0.06 KM |
| 7 Hamilton Road | £ 170,000 | 0.06 KM |
| 35 Hamilton Road | £ 107,000 | 0.06 KM |