Thackney Leys, Kibworth, LE8
By Adore Fine Homes Limited
£ 165,000
Reviews
2 out of 5 stars
Adore Fine Homes Limited says ..
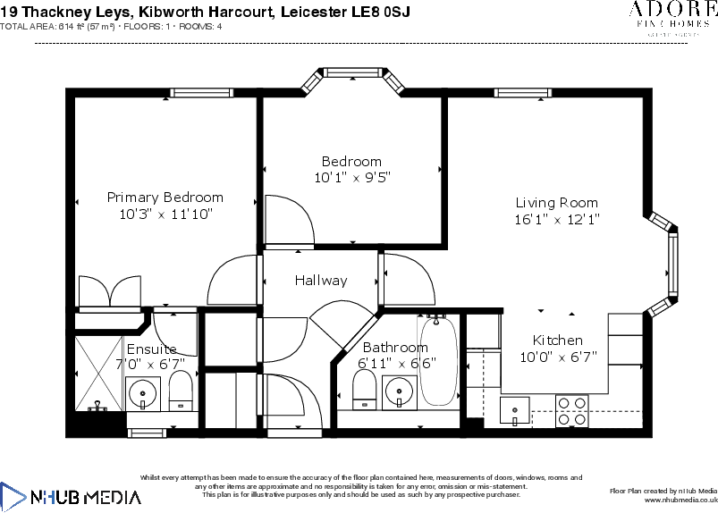
A well presented David Wilson built ground floor apartment in secluded and quiet location on the favoured Kibworth Meadows development featuring two double bedrooms, two bathrooms and GARAGE offered with no forward chain.
Property Oracle says ..
This property is a two bedroom, two bathroom apartment located in Kibworth, Leicestershire. The apartment is modern and well presented, and benefits from allocated parking. While the property itself is in good condition, the lack of outdoor space and smaller square footage compared to the area average may be a consideration for some buyers. The list price is significantly below the average price for the area, but also considerably lower than other nearby properties of a similar type. Further investigation into the specifics of the apartment and its location within Thackney Leys would assist in a more comprehensive analysis.
Therefore, we give this property 5 / 10. *Disclaimer: This is our option and does constitute a recommendation or financial advice. Do your own research. *
- Price
- 6
- Condition
- 9
- Location
- 7
- Land
- 1
- Bedrooms
- 2
- Bathrooms
- 2
- Sqft (est)
- 563.82
The heatmap indicates the level of crime in the area. The color of the heatmap indicates the crime severity and recency.
Metrics Year-on-Year
- Average area value
- 933,929.00 £Increased by 71.28 %
- Est sale value
- 298,824.60 £Increased by 76.08 %
- Average area rental value
- 1,223.00 £/moIncreased by 13.24 %
- Est letting value
- 0.00 £/mo
- Est rental Yield
- 1.57 %Decreased by 34.03 %
- Crime Rate
- 145.00 %Unchanged by 0.00 %
Agent Activity
Adore Fine Homes Limited created the listing.
Nearby Schools
| Name | Type | Ofsted | Distance |
|---|---|---|---|
| Kibworth Church Of England Primary School | Academy Converter | 0.57 KM | |
| Kibworth Mead Academy | Academy Converter | Requires improvement | 1.23 KM |
| Stoneygate School | Other Independent School | 3.28 KM | |
| The Lady Byron School | Other Independent Special School | 4.59 KM | |
| Great Glen St Cuthbert'S Church Of England Primary School | Voluntary Controlled School | Requires improvement | 4.69 KM |
Images
Nearby Streets
| Name | Average Price | Average Sqft | Distance |
|---|---|---|---|
| Glebeland | £ 300,000 | 0 | 0.00 KM |
| Melbourne Close | £ 362,500 | 0 | 0.00 KM |
| Gladstone Street | £ 413,077 | 0 | 0.00 KM |
| Prospect Road | £ 377,857 | 0 | 0.00 KM |
| Buller Street | £ 585,000 | 0 | 0.00 KM |
Nearby Listings
| Address | Price | Type | Score | Distance |
|---|---|---|---|---|
| Thackney Leys, Kibworth, LE8 | £ 66,000 | BUY | 6 / 10 | 0.00 KM |
| Thackney Leys, Kibworth, LE8 | £ 165,000 | BUY | 5 / 10 | 0.00 KM |
| Thackney Leys, Kibworth, LE8 | £ 615,000 | BUY | 7 / 10 | 0.00 KM |
| Thackney Leys, Kibworth Harcourt, Leicester | £ 325,000 | BUY | 7 / 10 | 0.03 KM |
| Dairy Way, Kibworth Harcourt, Leicester | £ 320,000 | BUY | 7 / 10 | 0.06 KM |
Nearby Properties
| Address | Price | Distance |
|---|---|---|
| 11 Thackney Leys | £ 216,000 | 0.00 KM |
| 22 Thackney Leys | £ 94,000 | 0.00 KM |
| 12 Thackney Leys | £ 206,500 | 0.00 KM |
| 18 Thackney Leys | £ 38,000 | 0.00 KM |
| 1 Thackney Leys | £ 420,000 | 0.00 KM |