easyMOOVE UK says ..
Charming Two-Bedroom Property in Easington – Ideal for First-Time Buyers or InvestorsGet Sold UK is delighted to present this attractive two-bedroom, vacant property in the heart of Easington, offered with no onward chain. Perfectly suited for first-time buyers or investors, this well-mai...
Property Oracle says ..
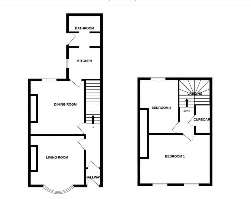
This is a two-bedroom terraced house located in Peterlee, County Durham. The property is in need of renovation, particularly in the kitchen and bathroom. While it has a small front garden, it’s unclear if there is a back garden. The location is reasonable, with schools and amenities nearby, but not considered prime. The price is competitive, reflecting the condition and location. It could be a good investment opportunity for someone willing to undertake the necessary renovations.
Therefore, we give this property 4 / 10. *Disclaimer: This is our option and does constitute a recommendation or financial advice. Do your own research. *
- Price
- 7
- Condition
- 4
- Location
- 5
- Land
- 3
- Bedrooms
- 2
- Bathrooms
- 1
- Sqft (est)
- 676.82
The heatmap indicates the level of crime in the area. The color of the heatmap indicates the crime severity and recency.
Metrics Year-on-Year
- Average area value
- 211,000.00 £Increased by 2.49 %
- Est sale value
- 186,802.32 £Increased by 14.52 %
- Average area rental value
- 961.00 £/moDecreased by 14.43 %
- Est letting value
- 676.82 £/moUnchanged by 0.00 %
- Est rental Yield
- 5.47 %Decreased by 16.49 %
- Crime Rate
- 65.00 %Unchanged by 0.00 %
Agent Activity
easyMOOVE UK created the listing.
Nearby Schools
| Name | Type | Ofsted | Distance |
|---|---|---|---|
| Easington Colliery Primary School | Community School | Good | 0.60 KM |
| Easington Children'S Centre | Children's Centre | 0.68 KM | |
| Our Lady Star Of The Sea Roman Catholic Voluntary Aided Primary | Voluntary Aided School | Good | 2.11 KM |
| Easington Academy | Academy Converter | Good | 2.35 KM |
| Rosemary Lane Nursery School | Local Authority Nursery School | Outstanding | 2.36 KM |
Images
Nearby Streets
| Name | Average Price | Average Sqft | Distance |
|---|---|---|---|
| James Street | £ 45,000 | 0 | 0.00 KM |
| Thomas Street | £ 20,000 | 0 | 0.00 KM |
| Oak Road | £ 93,736 | 0 | 0.00 KM |
| Tennyson Road | £ 350,000 | 0 | 0.00 KM |
| Memorial Avenue | £ 134,995 | 0 | 0.00 KM |
Nearby Transport
| Name | NLC | TLC | Distance |
|---|---|---|---|
| Seaham | 7814 | SEA | 5.73 KM |
Nearby Listings
| Address | Price | Type | Score | Distance |
|---|---|---|---|---|
| Londonderry Terrace, Peterlee | £ 61,995 | BUY | 4 / 10 | 0.00 KM |
| Londonderry Terrace, Peterlee, County Durham, SR8 | £ 58,000 | BUY | 5 / 10 | 0.01 KM |
| Londonderry Terrace, Peterlee, County Durham, SR8 | £ 59,000 | BUY | 5 / 10 | 0.01 KM |
| Easington Street, Peterlee, SR8 | £ 9,000 | BUY | 5 / 10 | 0.05 KM |
| 26 Easington Street, Peterlee, County Durham, SR8 3LD | £ 29,000 | BUY | 4 / 10 | 0.06 KM |
Nearby Properties
| Address | Price | Distance |
|---|---|---|
| 15 Londonderry Terrace | £ 45,500 | 0.01 KM |
| 14 Londonderry Terrace | £ 70,000 | 0.01 KM |
| 7 Londonderry Terrace | £ 49,000 | 0.01 KM |
| 13 Londonderry Terrace | £ 55,000 | 0.01 KM |
| 5 Londonderry Terrace | £ 36,000 | 0.01 KM |