CA
Knowles Brow, Hurst Green, Near Clitheroe, Lancashire, BB7
By Carter Jonas
£ 675,000
Reviews
2 out of 5 stars
Carter Jonas says ..
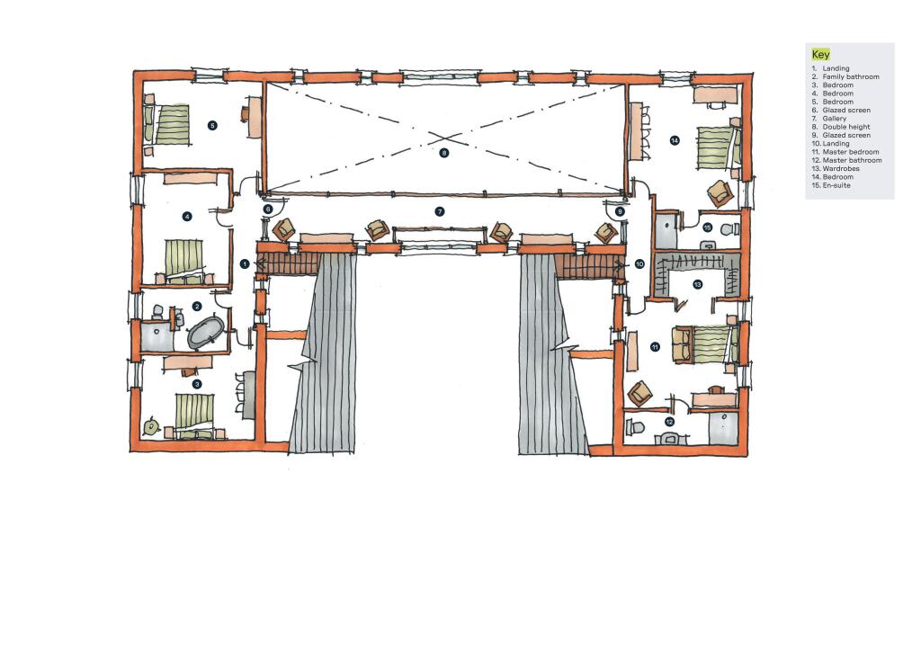
NEW - DEVELOPMENT OPPORTUNITY - A substantial detached barn with planning for conversion into 3 properties and with potential to convert into a single property, enjoying superb views over the Ribble Valley and occupying a private position close to Stonyhurst College.
Property Oracle says ..
Therefore, we give this property 5 / 10. *Disclaimer: This is our option and does constitute a recommendation or financial advice. Do your own research. *
- Price
- 7
- Condition
- 2
- Location
- 7
- Land
- 7
- Bedrooms
- 0
- Bathrooms
- 0
- Sqft (est)
- 2,584.00
The heatmap indicates the level of crime in the area. The color of the heatmap indicates the crime severity and recency.
Metrics Year-on-Year
- Average area value
- 259,995.00 £Increased by 9.02 %
- Est sale value
- 1,121,456.00 £Increased by 24.36 %
- Average area rental value
- 1,233.00 £/moIncreased by 108.28 %
- Est letting value
- 5,168.00 £/mo
- Est rental Yield
- 5.69 %Increased by 90.94 %
- Crime Rate
- 0.00 %
from 238,494.00 £
from 901,816.00 £
from 592.00 £/mo
from 0.00 £/mo
from 2.98 %
from 0.00 %
Agent Activity
Carter Jonas created the listing.
Nearby Schools
| Name | Type | Ofsted | Distance |
|---|---|---|---|
| Stonyhurst College | Other Independent School | 1.27 KM | |
| St Joseph'S Roman Catholic Primary School, Hurst Green | Voluntary Aided School | Outstanding | 1.55 KM |
| Langho And Billington St Leonards Church Of England Primary School | Voluntary Aided School | Outstanding | 4.39 KM |
| St Mary'S Roman Catholic Primary School, Langho | Voluntary Aided School | Good | 4.64 KM |
| St Augustine'S Roman Catholic High School, Billington | Voluntary Aided School | Outstanding | 4.91 KM |
Images
Nearby Streets
| Name | Average Price | Average Sqft | Distance |
|---|---|---|---|
| Whalley Road | £ 499,975 | 0 | 0.00 KM |
Nearby Transport
| Name | NLC | TLC | Distance |
|---|---|---|---|
| Langho | 2735 | LHO | 4.43 KM |
| Whalley (Lancashire) | 2736 | WHE | 5.85 KM |
| Ramsgreave And Wilpshire | 2734 | RGW | 7.20 KM |
| Clitheroe | 2574 | CLH | 8.22 KM |
| Rishton | 2580 | RIS | 9.88 KM |
Nearby Listings
| Address | Price | Type | Score | Distance |
|---|---|---|---|---|
| Knowles Brow, Hurst Green, Near Clitheroe, Lancashire, BB7 | £ 675,000 | BUY | 5 / 10 | 0.00 KM |
| Bradhurst Farmhouse, Stonyhurst, Near Clitheroe, Lancashire, BB7 | £ 625,000 | BUY | Unknown | 0.79 KM |
| Hodder Court, Knowles Brow, Stonyhurst, Clitheroe, BB7 9PP | £ 295,000 | BUY | 7 / 10 | 1.57 KM |
| Brockhall Village, Old Langho | £ 1,000,000 | BUY | Unknown | 1.82 KM |
| Loach Field Close, Hurst Green, Near Clitheroe, Lancashire, BB7 | £ 250,000 | BUY | 7 / 10 | 1.88 KM |
Nearby Properties
| Address | Price | Distance |
|---|---|---|
| Bradhurst House | £ 967,000 | 0.79 KM |
| Hacking Boat House | £ 62,500 | 0.95 KM |
| Ryden Cottage | £ 365,000 | 0.95 KM |
| 6 Whalley Road | £ 320,000 | 1.70 KM |
| 4 Whalley Road | £ 210,000 | 1.70 KM |