Chancellors says ..
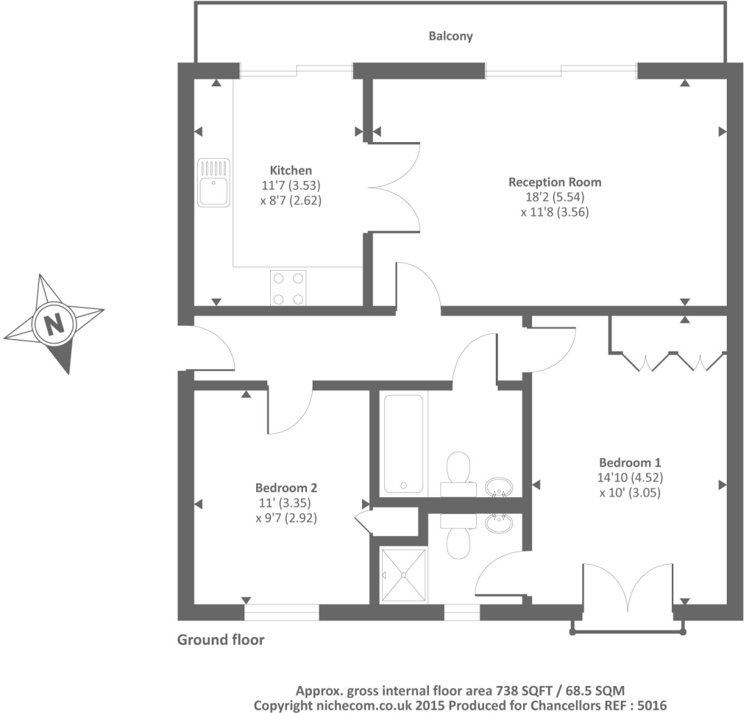
A contemporary two bedroom ground floor apartment which benefits from two double bedrooms, two bathrooms, allocated parking and is offered with no onward chain.
Property Oracle says ..
This property is a two bedroom, two bathroom flat located in Cowley, East Oxford. The area benefits from good transport links and is close to several well-regarded schools, including St Francis Church of England Primary School and Tyndale Community School. The flat itself appears modern and well-maintained, based on the provided images. It has a contemporary kitchen and bathrooms. There is no garden or significant outdoor space associated with the property. Compared to the average price per square foot in the area (£448), the list price of £270,000 for 738 sqft seems slightly below average. However, this needs to be considered in the context of the lack of outdoor space and the specific features of the property. Nearby comparable properties range in price, reflecting the variability within the local market.
Therefore, we give this property 6 / 10. *Disclaimer: This is our option and does constitute a recommendation or financial advice. Do your own research. *
- Price
- 7
- Condition
- 9
- Location
- 8
- Land
- 1
- Bedrooms
- 2
- Bathrooms
- 2
- Sqft (est)
- 738.00
The heatmap indicates the level of crime in the area. The color of the heatmap indicates the crime severity and recency.
Metrics Year-on-Year
- Average area value
- 473,750.00 £Increased by 2.87 %
- Est sale value
- 387,450.00 £Increased by 6.71 %
- Average area rental value
- 1,237.00 £/moDecreased by 12.02 %
- Est letting value
- 738.00 £/moUnchanged by 0.00 %
- Est rental Yield
- 3.13 %Decreased by 14.48 %
- Crime Rate
- 17.00 %Unchanged by 0.00 %
Agent Activity
Chancellors created the listing.
Nearby Schools
| Name | Type | Ofsted | Distance |
|---|---|---|---|
| St Francis Church Of England Primary School | Voluntary Controlled School | Good | 0.47 KM |
| Tyndale Community School | Free Schools | Good | 1.26 KM |
| Wood Farm Primary School | Community School | Good | 1.36 KM |
| Kings Education (Oxford) | Other Independent School | Good | 1.51 KM |
| Slade Nursery School | Local Authority Nursery School | Outstanding | 1.54 KM |
Images
Nearby Streets
| Name | Average Price | Average Sqft | Distance |
|---|---|---|---|
| Eastfield Place | £ 0 | 0 | 0.00 KM |
| Slade House | £ 0 | 0 | 0.00 KM |
| St Francis Court | £ 0 | 0 | 0.00 KM |
| Three Fields Road | £ 280,000 | 0 | 0.00 KM |
| Horspath Road | £ 0 | 0 | 0.00 KM |
Nearby Transport
| Name | NLC | TLC | Distance |
|---|---|---|---|
| Radley | 3118 | RAD | 7.62 KM |
| Oxford | 3115 | OXF | 8.17 KM |
Nearby Listings
| Address | Price | Type | Score | Distance |
|---|---|---|---|---|
| Cowley, East Oxford, OX4 | £ 270,000 | BUY | 6 / 10 | 0.00 KM |
| Brasenose Driftway, Oxford | £ 300,000 | BUY | 6 / 10 | 0.01 KM |
| Brasenose Driftway, OXFORD | £ 210,000 | BUY | 6 / 10 | 0.01 KM |
| Flat 14, 30 Brasenose Driftway, Oxford, Oxfordshire, OX4 2GZ | £ 155,000 | BUY | 5 / 10 | 0.07 KM |
| Flat 14, 30 Brasenose Driftway, Oxford, Oxfordshire, OX4 2GZ | £ 175,000 | BUY | 7 / 10 | 0.07 KM |
Nearby Properties
| Address | Price | Distance |
|---|---|---|
| 16 Craufurd Road | £ 110,000 | 0.12 KM |
| 6 Craufurd Road | £ 164,000 | 0.12 KM |
| 1 Craufurd Road | £ 163,000 | 0.12 KM |
| 17 Craufurd Road | £ 420,000 | 0.12 KM |
| 14 Craufurd Road | £ 290,000 | 0.12 KM |