Gilsland Street, Sunderland, Tyne and Wear, SR4
By Your Move
£ 40,000
Reviews
2 out of 5 stars
Your Move says ..
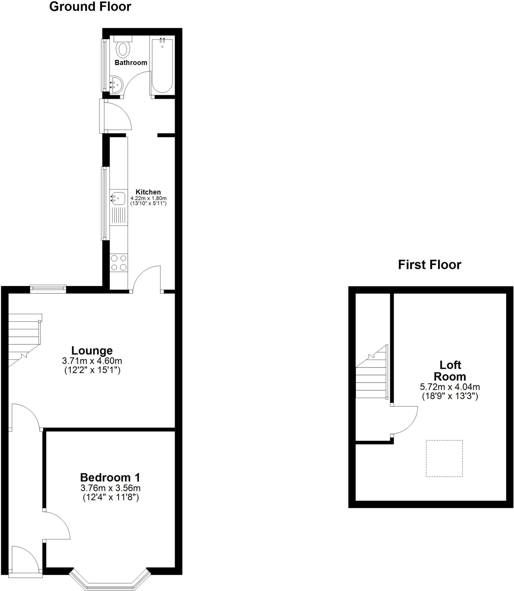
Situated on Gillsland Street in Millfield, this delightful one bedroom with a loft room. A superb opportunity for investors or first time buyers alike, the property is offered to the market with no onward chain.
Property Oracle says ..
The property is a one-bedroom terraced house located in Sunderland, Tyne and Wear. The list price is £40,000. The property is situated close to several schools, including Grindon Infant School (Good Ofsted rating) and Pennywell Early Years Centre (Outstanding Ofsted rating), both within a kilometer. Sunderland train station is approximately 7 km away. Based on the provided images, the property appears to be in relatively good condition, though some minor cosmetic updates might enhance its appeal. The kitchen and bathroom appear functional but could benefit from some modernisation. The property has a small yard, which provides some outdoor space, although it is not extensive. Considering the average house price in the area is £146,603 and the average price per square foot is £160, the listed price of £40,000 for this 723.33 sqft property seems significantly below market value. However, this is likely due to the property’s size and the fact that it is a terraced house in a potentially less desirable area of Sunderland. Nearby comparable properties, while varying in size and type, support the idea that this property is underpriced, though more information on the condition of those properties would be needed to make a more accurate comparison. The smaller plot size compared to other nearby properties also contributes to the lower price.
Therefore, we give this property 4 / 10. *Disclaimer: This is our option and does constitute a recommendation or financial advice. Do your own research. *
- Price
- 3
- Condition
- 6
- Location
- 7
- Land
- 2
- Bedrooms
- 1
- Bathrooms
- 1
- Sqft (est)
- 723.33
The heatmap indicates the level of crime in the area. The color of the heatmap indicates the crime severity and recency.
Metrics Year-on-Year
- Average area value
- 183,333.00 £Increased by 17.63 %
- Est sale value
- 159,855.93 £Increased by 56.74 %
- Average area rental value
- 865.00 £/moIncreased by 19.31 %
- Est letting value
- 723.33 £/mo
- Est rental Yield
- 5.66 %Increased by 1.43 %
- Crime Rate
- 1.00 %Unchanged by 0.00 %
Agent Activity
Your Move created the listing.
Nearby Schools
| Name | Type | Ofsted | Distance |
|---|---|---|---|
| Grindon Infant School | Community School | Good | 0.54 KM |
| Academy 360 | Academy Sponsor Led | 0.65 KM | |
| Sunderland Children'S Centre Pennywell | Children's Centre Linked Site | 0.71 KM | |
| Pennywell Early Years Centre | Local Authority Nursery School | Outstanding | 0.74 KM |
| St Anne'S Roman Catholic Voluntary Aided Primary School | Voluntary Aided School | Good | 1.00 KM |
Images
Nearby Streets
| Name | Average Price | Average Sqft | Distance |
|---|---|---|---|
| Chaseley Way | £ 0 | 0 | 0.00 KM |
| The Broadway | £ 239,995 | 0 | 0.00 KM |
| Netherby Close | £ 0 | 0 | 0.00 KM |
| Osaka Gardens | £ 0 | 0 | 0.00 KM |
| Godfrey Road | £ 0 | 0 | 0.00 KM |
Nearby Transport
| Name | NLC | TLC | Distance |
|---|---|---|---|
| Sunderland | 7640 | SUN | 7.07 KM |
Nearby Listings
| Address | Price | Type | Score | Distance |
|---|---|---|---|---|
| Barnes View, Sunderland, Tyne and Wear, SR4 | £ 275,000 | BUY | 6 / 10 | 0.00 KM |
| Gilsland Street, Sunderland, Tyne and Wear, SR4 | £ 40,000 | BUY | 4 / 10 | 0.00 KM |
| Chaseley Way, Chester Gate, Sunderland | £ 169,950 | BUY | 7 / 10 | 0.03 KM |
| Blucher Place, Sunderland | £ 289,950 | BUY | 7 / 10 | 0.07 KM |
| Bonavista Drive, Sunderland, Tyne & Wear, SR4 | £ 255,000 | BUY | 8 / 10 | 0.15 KM |
Nearby Properties
| Address | Price | Distance |
|---|---|---|
| 227 The Broadway | £ 76,000 | 0.17 KM |
| 275 The Broadway | £ 75,000 | 0.17 KM |
| 263 The Broadway | £ 84,950 | 0.17 KM |
| 205 The Broadway | £ 95,000 | 0.17 KM |
| 241 The Broadway | £ 97,000 | 0.17 KM |