Lower Rochester Road, Rochester, ME3
By Town and City Homes
£ 900,000
Reviews
4 out of 5 stars
Town and City Homes says ..
This extraordinary property is more than just a house; it’s a lifestyle. Whether you’re hosting friends, spending quality time with family, or simply enjoying the peace and beauty of the Kent countryside, this home offers it all. Don’t miss the chance to make it yours!
Property Oracle says ..
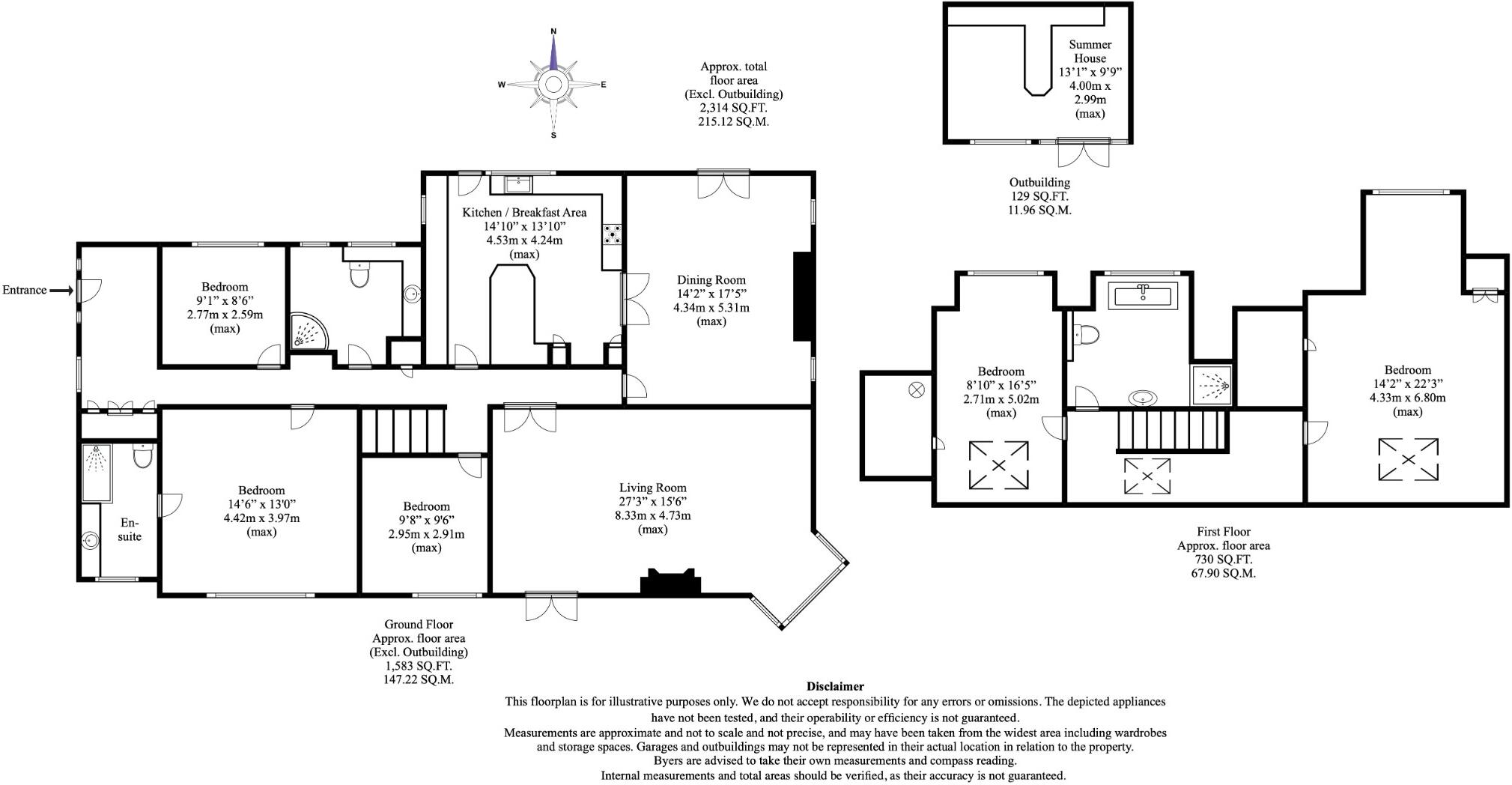
This property is a 5 bedroom detached house located in Higham, Kent. It benefits from a large garden with a swimming pool. The property is in good condition and appears to have been well-maintained. The location is desirable, being close to Higham train station and several well-regarded schools. The price of £900,000 seems reasonable considering the size, condition, and location, although slightly above the average price for the area. However, the lack of plot size data makes a definitive statement on land value difficult.
Therefore, we give this property 8 / 10. *Disclaimer: This is our option and does constitute a recommendation or financial advice. Do your own research. *
- Price
- 7
- Condition
- 9
- Location
- 9
- Land
- 8
- Bedrooms
- 5
- Bathrooms
- 3
- Sqft (est)
- 2,315.53
The heatmap indicates the level of crime in the area. The color of the heatmap indicates the crime severity and recency.
Metrics Year-on-Year
- Average area value
- 678,755.00 £Increased by 11.98 %
- Est sale value
- 1,000,308.96 £Increased by 39.81 %
- Average area rental value
- 1,974.00 £/moIncreased by 23.38 %
- Est letting value
- 2,315.53 £/mo
- Est rental Yield
- 3.49 %Increased by 10.09 %
- Crime Rate
- 4.00 %Unchanged by 0.00 %
Agent Activity
Town and City Homes created the listing.
Nearby Schools
| Name | Type | Ofsted | Distance |
|---|---|---|---|
| Higham Primary School | Community School | Good | 0.86 KM |
| Gad'S Hill School | Other Independent School | 2.32 KM | |
| Abbey Court Foundation Special School | Community Special School | Outstanding | 3.13 KM |
| Strood Academy | Academy Sponsor Led | Good | 3.57 KM |
| Bligh Children'S Centre | Children's Centre | 3.75 KM |
Images
Nearby Streets
| Name | Average Price | Average Sqft | Distance |
|---|---|---|---|
| NS138 | £ 480,000 | 0 | 0.00 KM |
| Highwoods Close | £ 0 | 0 | 0.00 KM |
Nearby Transport
| Name | NLC | TLC | Distance |
|---|---|---|---|
| Higham | 5202 | HGM | 0.38 KM |
| Strood (Kent) | 5191 | SOO | 4.93 KM |
| Cuxton | 5201 | CUX | 6.12 KM |
| Rochester | 5203 | RTR | 6.59 KM |
| Chatham | 5199 | CTM | 7.85 KM |
Nearby Listings
| Address | Price | Type | Score | Distance |
|---|---|---|---|---|
| Lower Rochester Road, Rochester, ME3 | £ 900,000 | BUY | 8 / 10 | 0.00 KM |
| Martins Close, ME3 | £ 395,000 | BUY | 6 / 10 | 0.18 KM |
| Gore Green Road, Higham, Kent, ME3 | £ 900,000 | BUY | 7 / 10 | 0.25 KM |
| Gore Green Road, Higham, Rochester | £ 450,000 | BUY | 7 / 10 | 0.30 KM |
| Copperfield House, Chequers Court, Higham, Kent, ME3 | £ 180,000 | BUY | Unknown | 0.43 KM |
Nearby Properties
| Address | Price | Distance |
|---|---|---|
| 3 Martins Close | £ 228,000 | 0.16 KM |
| 7 Martins Close | £ 222,000 | 0.16 KM |
| 12 Martins Close | £ 268,000 | 0.16 KM |
| 14 Martins Close | £ 475,000 | 0.18 KM |
| St Agaro | £ 640,000 | 0.24 KM |