Holloway Park, Parkhurst Road, Holloway, London, N7
By Knight Frank - New Homes
£ 730,000
Reviews
3 out of 5 stars
Knight Frank - New Homes says ..
A modern one-bedroom apartment in Holloway Park is a new destination in North London! Completing 2027. Holloway Park is an exciting new development in Islington. The brand new sales suite is now open. Call the team today to book your appointment! Welcome to Holloway Park, where every detail is...
Property Oracle says ..
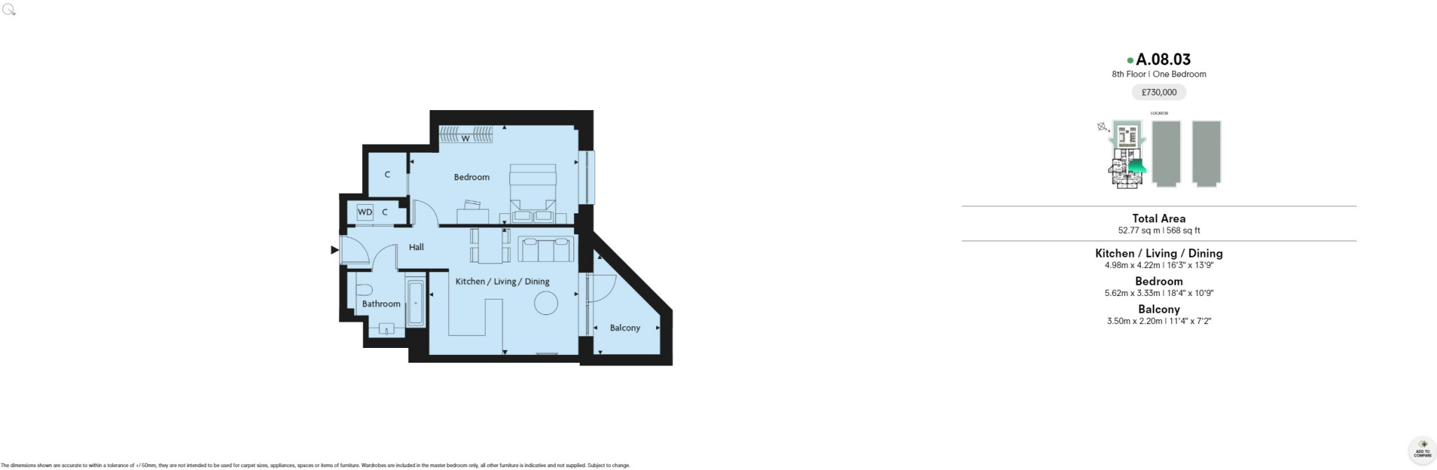
This property is a one-bedroom apartment situated within the new Holloway Park development in Islington, North London. The apartment is being marketed by Knight Frank. The development appears modern and well-designed. The provided images suggest a high standard of finish for the kitchen, bathroom and bedroom. The apartment itself is fairly small at 568 sqft. Although the development is situated in a generally desirable part of London, the apartment’s lack of private outdoor space could be considered a drawback for some buyers. The nearby transportation links are within walking distance, however, the nearest stations require a short walk. Local schools are also relatively close. The price of £730,000 needs to be considered against the average property prices in the area and comparable properties within the same development. While this development is modern and new, and the price reflects that, potential buyers should consider the size of the apartment and compare it to other available properties to fully gauge the value for money. It’s important to note that the listed plot size of 0.00 sqft indicates no private outdoor space besides communal gardens. This is a key factor to consider in the overall assessment of the property’s value.
Therefore, we give this property 6 / 10. *Disclaimer: This is our option and does constitute a recommendation or financial advice. Do your own research. *
- Price
- 7
- Condition
- 8
- Location
- 7
- Land
- 2
- Bedrooms
- 1
- Bathrooms
- 1
- Sqft (est)
- 568.00
The heatmap indicates the level of crime in the area. The color of the heatmap indicates the crime severity and recency.
Metrics Year-on-Year
- Average area value
- 540,000.00 £Decreased by 22.22 %
- Est sale value
- 435,656.00 £Increased by 11.00 %
- Average area rental value
- 2,567.00 £/moIncreased by 12.15 %
- Est letting value
- 1,704.00 £/moIncreased by 50.00 %
- Est rental Yield
- 5.70 %Increased by 43.94 %
- Crime Rate
- 0.00 %
Agent Activity
Knight Frank - New Homes created the listing.
Nearby Schools
| Name | Type | Ofsted | Distance |
|---|---|---|---|
| Tufnell Park Primary School | Community School | Good | 0.55 KM |
| Willow Children'S Centre | Children's Centre | 0.56 KM | |
| Beacon High | Community School | Requires improvement | 0.58 KM |
| Hungerford School | Academy Sponsor Led | 0.61 KM | |
| Hungerford Children'S Centre | Children's Centre | 0.67 KM |
Images
Nearby Streets
| Name | Average Price | Average Sqft | Distance |
|---|---|---|---|
| Carleton Road | £ 350,000 | 0 | 0.00 KM |
| Krupa Court | £ 0 | 0 | 0.00 KM |
| Gatcombe Road | £ 0 | 0 | 0.00 KM |
| Ivo Place | £ 0 | 0 | 0.00 KM |
| Brewery Road | £ 0 | 0 | 0.00 KM |
Nearby Transport
| Name | NLC | TLC | Distance |
|---|---|---|---|
| Upper Holloway | 1524 | UHL | 1.21 KM |
| Caledonian Road And Barnsbury | 1439 | CIR | 1.49 KM |
| Kentish Town | 1553 | KTN | 1.77 KM |
| Camden Road | 1440 | CMD | 2.05 KM |
| Crouch Hill | 7406 | CRH | 2.12 KM |
Nearby Listings
| Address | Price | Type | Score | Distance |
|---|---|---|---|---|
| Holloway Park, Parkhurst Road, Holloway, London, N7 | £ 965,000 | BUY | Unknown | 0.00 KM |
| Holloway Park, Parkhurst Road, Holloway, London, N7 | £ 740,000 | BUY | Unknown | 0.00 KM |
| Parkhurst Road, Holloway, London, N7 | £ 770,000 | BUY | 6 / 10 | 0.00 KM |
| Holloway Park, Parkhurst Road, Holloway, London, N7 | £ 730,000 | BUY | 6 / 10 | 0.00 KM |
| Camden Road, London, N7 | £ 350,000 | BUY | 7 / 10 | 0.11 KM |
Nearby Properties
| Address | Price | Distance |
|---|---|---|
| 374d Camden Road | £ 395,000 | 0.18 KM |
| 362 Camden Road | £ 123,500 | 0.18 KM |
| 48 Dalmeny Avenue | £ 400,000 | 0.18 KM |
| 24 Dalmeny Avenue | £ 437,000 | 0.18 KM |
| 27 Beacon Hill | £ 1,701,316 | 0.21 KM |