Varden Town Cottages, Over Alderley
By Gascoigne Halman
£ 500,000
Reviews
3 out of 5 stars
Gascoigne Halman says ..
A charming three-bedroom cottage with abundant character. Presented to high standards with private gardens, located in a convenient semi-rural area.
Property Oracle says ..
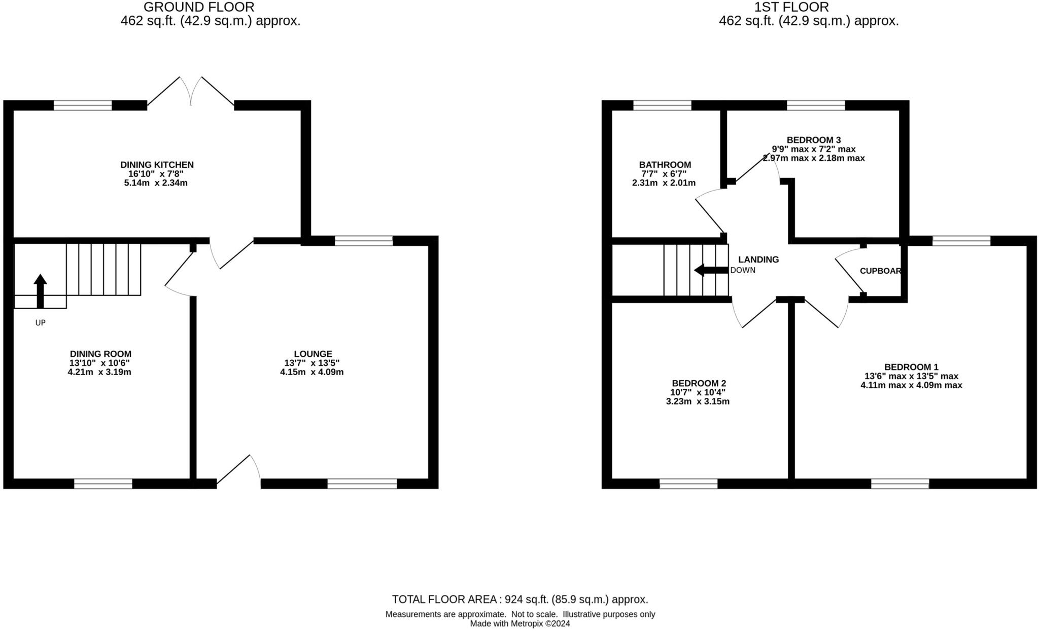
Varden Town Cottages presents a charming end-of-terrace period property in the desirable Gawsworth area of Cheshire East. The house offers three bedrooms and one bathroom within approximately 861 sq ft of living space. The interior combines traditional features with modern updates, particularly in the kitchen. While the bathroom could benefit from refurbishment, the overall condition appears good. The property benefits from a garden, adding to its appeal. Its location offers a blend of rural living with convenient access to nearby towns and reputable schools. The asking price of £500,000 seems competitive given the local market and the property’s attributes.
Therefore, we give this property 6 / 10. *Disclaimer: This is our option and does constitute a recommendation or financial advice. Do your own research. *
- Price
- 7
- Condition
- 7
- Location
- 7
- Land
- 6
- Bedrooms
- 3
- Bathrooms
- 1
- Sqft (est)
- 861.13
The heatmap indicates the level of crime in the area. The color of the heatmap indicates the crime severity and recency.
Metrics Year-on-Year
- Average area value
- 751,347.00 £Increased by 38.02 %
- Est sale value
- 428,842.74 £Increased by 35.33 %
- Average area rental value
- 1,608.00 £/moIncreased by 29.47 %
- Est letting value
- 861.13 £/mo
- Est rental Yield
- 2.57 %Decreased by 6.20 %
- Crime Rate
- 0.00 %
Agent Activity
Gascoigne Halman created the listing.
Nearby Schools
| Name | Type | Ofsted | Distance |
|---|---|---|---|
| Whirley Primary School | Academy Converter | Good | 2.51 KM |
| The King'S School In Macclesfield | Other Independent School | 2.67 KM | |
| Mottram St Andrew Primary Academy | Academy Converter | Good | 2.83 KM |
| Eden School | Other Independent Special School | Good | 3.03 KM |
| The Fallibroome Academy | Academy Converter | Outstanding | 3.34 KM |
Images
Nearby Streets
| Name | Average Price | Average Sqft | Distance |
|---|---|---|---|
| Ashbrook Road | £ 0 | 0 | 0.00 KM |
| School Lane | £ 0 | 0 | 0.00 KM |
| Slade Lane | £ 0 | 0 | 0.00 KM |
Nearby Transport
| Name | NLC | TLC | Distance |
|---|---|---|---|
| Prestbury | 2875 | PRB | 5.30 KM |
| Alderley Edge | 2760 | ALD | 5.84 KM |
| Wilmslow | 2774 | WML | 6.71 KM |
| Adlington (Cheshire) | 2939 | ADC | 7.84 KM |
| Macclesfield | 2871 | MAC | 7.89 KM |
Nearby Listings
| Address | Price | Type | Score | Distance |
|---|---|---|---|---|
| Varden Town Cottages, Over Alderley | £ 500,000 | BUY | 6 / 10 | 0.00 KM |
| Dunge Farm, Over Alderley, SK10 | £ 975,000 | BUY | 7 / 10 | 0.46 KM |
| Wrigley Lane, Over Alderley | £ 1,500,000 | BUY | 8 / 10 | 0.78 KM |
| Dunge Farm, Over Alderley | £ 700,000 | BUY | Unknown | 0.84 KM |
| Festival Drive, Over Alderley | £ 435,000 | BUY | 8 / 10 | 1.14 KM |
Nearby Properties
| Address | Price | Distance |
|---|---|---|
| 3 Varden Town Cottages | £ 250,000 | 0.17 KM |
| 2 Varden Town Cottages | £ 285,000 | 0.17 KM |
| 4 Varden Town Cottages | £ 395,000 | 0.17 KM |
| 6 Varden Town Cottages | £ 415,000 | 0.17 KM |
| 5 Varden Town Cottages | £ 290,000 | 0.17 KM |