Buxton Road, Furness Vale, High Peak
By Gascoigne Halman
£ 215,000
Reviews
3 out of 5 stars
Gascoigne Halman says ..
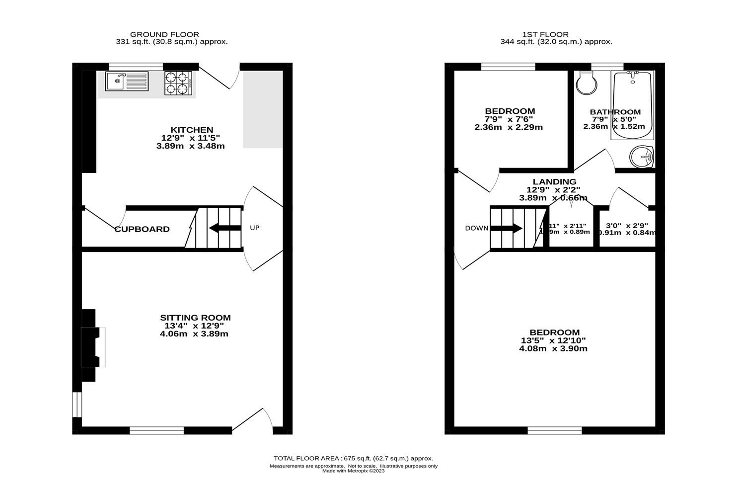
A STONE END OF TERRACE requiring upgrading with the privilege of a larger than average MATURE GARDEN which EXTENDS to the side and rear plus DRIVEWAY PARKING and GENEROUS LIVING AND BEDROOM SPACES. The property has a VERY CONVENIENT location close to amenities, schools and rail links.
Property Oracle says ..
The property is located on Buxton Road, Furness Vale, in the High Peak district of Derbyshire. The area benefits from a primary school, Furness Vale Primary And Nursery School, within close proximity (0.17 KM). Several other schools with a “Good” Ofsted rating are located within a 2-3 KM radius. The property’s proximity to Furness Vale train station (0.15 KM) provides convenient access to public transportation. While the provided data doesn’t offer detailed insights into local shops and amenities, the relatively central location within Furness Vale suggests reasonable access to these necessities.
Based on the provided images, the property appears to be in generally fair condition, although some aspects suggest it may benefit from modernisation. The carpets show some wear, and the bathroom and kitchen, while functional, exhibit a dated aesthetic. The property’s stone exterior appears well-maintained, and the garden, while needing attention, offers a decent-sized outdoor space. The presence of a shed and greenhouse suggests additional storage and gardening potential.
The property includes a garden, as evidenced by the external photographs. The size is not specified in square footage but appears to be relatively small to average for a property of this type.
Considering the property’s list price of £215,000, its size of 675 sqft, and the average price per sqft of £301 in the area, the property appears to be priced competitively. The average house price in the area is significantly higher (£295,393), and nearby properties of similar type range from £139,950 to £265,000. However, the property’s condition and smaller size compared to the area average could justify the lower list price. Further analysis of comparable properties with similar condition and size would be beneficial to fully assess the price’s reasonableness.
Therefore, we give this property 6 / 10. *Disclaimer: This is our option and does constitute a recommendation or financial advice. Do your own research. *
- Price
- 7
- Condition
- 6
- Location
- 7
- Land
- 5
- Bedrooms
- 2
- Bathrooms
- 1
- Sqft (est)
- 675.00
The heatmap indicates the level of crime in the area. The color of the heatmap indicates the crime severity and recency.
Metrics Year-on-Year
- Average area value
- 334,167.00 £Increased by 24.23 %
- Est sale value
- 173,475.00 £Decreased by 19.44 %
- Average area rental value
- 1,252.00 £/moIncreased by 4.33 %
- Est letting value
- 0.00 £/moDecreased by 100.00 %
- Est rental Yield
- 4.50 %Decreased by 15.89 %
- Crime Rate
- 37.00 %Unchanged by 0.00 %
Agent Activity
Gascoigne Halman created the listing.
Nearby Schools
| Name | Type | Ofsted | Distance |
|---|---|---|---|
| Furness Vale Primary And Nursery School | Community School | Good | 0.17 KM |
| New Mills School | Community School | Good | 2.12 KM |
| St George'S Cofe Primary School | Academy Sponsor Led | 2.13 KM | |
| Newtown Primary School (High Peak Federation) | Community School | Good | 2.31 KM |
| New Mills Nursery School | Local Authority Nursery School | Good | 2.40 KM |
Images
Nearby Streets
| Name | Average Price | Average Sqft | Distance |
|---|---|---|---|
| Goyt Road | £ 310,000 | 0 | 0.00 KM |
Nearby Transport
| Name | NLC | TLC | Distance |
|---|---|---|---|
| Furness Vale | 2952 | FNV | 0.15 KM |
| Whaley Bridge | 2772 | WBR | 2.14 KM |
| New Mills Newtown | 2769 | NMN | 2.37 KM |
| New Mills Central | 2974 | NMC | 2.48 KM |
| Chinley | 2823 | CLY | 5.20 KM |
Nearby Listings
| Address | Price | Type | Score | Distance |
|---|---|---|---|---|
| Buxton Road, Furness Vale, High Peak | £ 215,000 | BUY | 6 / 10 | 0.00 KM |
| Buxton Road, Furness Vale, SK23 | £ 170,000 | BUY | 6 / 10 | 0.05 KM |
| Yeardsley Lane, Furness Vale, High Peak | £ 125,000 | BUY | Unknown | 0.05 KM |
| Buxton Road, Furness Vale, High Peak | £ 180,000 | BUY | Unknown | 0.07 KM |
| Station Road, Furness Vale, High Peak | £ 195,000 | BUY | 6 / 10 | 0.08 KM |
Nearby Properties
| Address | Price | Distance |
|---|---|---|
| 4 Old Road | £ 245,000 | 0.07 KM |
| The Moorings | £ 525,000 | 0.12 KM |
| 77 Buxton Road | £ 197,500 | 0.13 KM |
| 59 Buxton Road | £ 196,000 | 0.13 KM |
| 71 Buxton Road | £ 169,950 | 0.13 KM |