Old Watling Street, Canterbury, CT1
By Miles & Barr
£ 280,000
Reviews
3 out of 5 stars
Miles & Barr says ..
The property is a stylish two-bedroom top floor apartment with lift access, offering a contemporary living space located in the heart of Canterbury city. Residents have access to a shared communal garden and are within walking distance from both Canterbury East and Canterbury West Stations with L...
Property Oracle says ..
This property is a 2 bedroom, 2 bathroom flat located on Old Watling Street in Canterbury, Kent. The flat is modern and well-presented, as shown in the photos. It benefits from a convenient location, with nearby transportation links and schools. The list price of £280,000 seems reasonable considering the average price per square foot in the area and the condition of the property. However, more information on the plot size and specifics of the location would be beneficial for a more comprehensive analysis.
Therefore, we give this property 6 / 10. *Disclaimer: This is our option and does constitute a recommendation or financial advice. Do your own research. *
- Price
- 7
- Condition
- 9
- Location
- 8
- Land
- 3
- Bedrooms
- 2
- Bathrooms
- 2
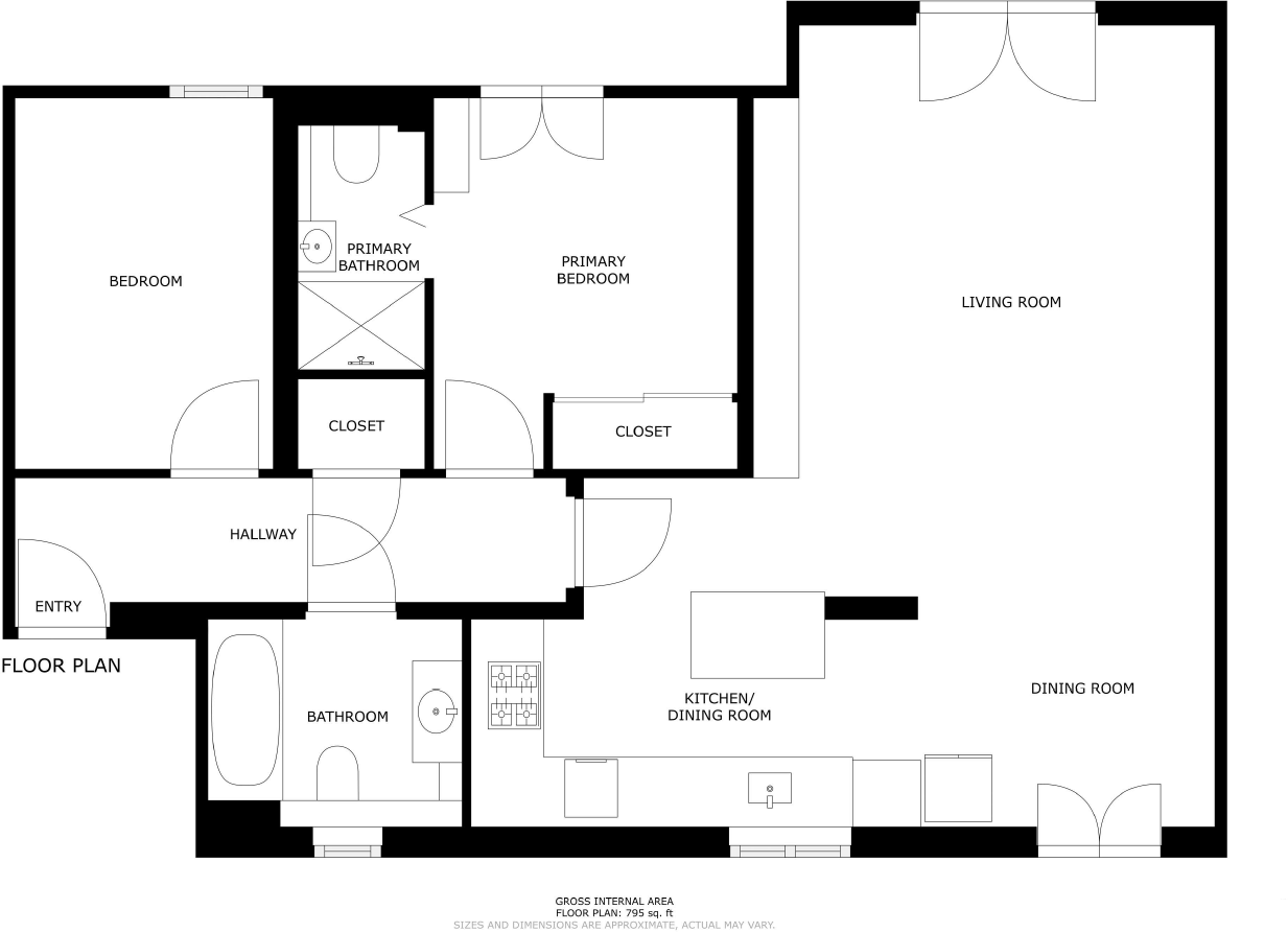
- Sqft (est)
- 845.00
- Lot (est)
- 795.00
The heatmap indicates the level of crime in the area. The color of the heatmap indicates the crime severity and recency.
Metrics Year-on-Year
- Average area value
- 222,854.00 £Decreased by 15.77 %
- Est sale value
- 243,360.00 £Decreased by 6.19 %
- Average area rental value
- 1,201.00 £/moIncreased by 7.91 %
- Est letting value
- 845.00 £/moUnchanged by 0.00 %
- Est rental Yield
- 6.47 %Increased by 28.12 %
- Crime Rate
- 9.00 %Unchanged by 0.00 %
Agent Activity
Miles & Barr created the listing.
Nearby Schools
| Name | Type | Ofsted | Distance |
|---|---|---|---|
| St Peter'S Methodist Primary School | Voluntary Controlled School | Good | 0.29 KM |
| Bemix | Special Post 16 Institution | Requires improvement | 0.67 KM |
| Little Hands Children'S Centre | Children's Centre | 1.05 KM | |
| The Orchard School | Foundation Special School | Good | 1.05 KM |
| St Johns Church Of England Primary School | Voluntary Controlled School | Good | 1.06 KM |
Images
Nearby Streets
| Name | Average Price | Average Sqft | Distance |
|---|---|---|---|
| Greyfriars Lane | £ 600,000 | 0 | 0.00 KM |
| St. Mary's Court | £ 350,000 | 0 | 0.00 KM |
| St. John's Court | £ 0 | 0 | 0.00 KM |
| Gas Street | £ 0 | 0 | 0.00 KM |
| Rheims Way | £ 0 | 0 | 0.00 KM |
Nearby Transport
| Name | NLC | TLC | Distance |
|---|---|---|---|
| Canterbury East | 5164 | CBE | 0.51 KM |
| Canterbury West | 5007 | CBW | 0.63 KM |
| Sturry | 5029 | STU | 5.84 KM |
| Chartham | 5008 | CRT | 6.69 KM |
| Bekesbourne | 5198 | BKS | 7.14 KM |
Nearby Listings
| Address | Price | Type | Score | Distance |
|---|---|---|---|---|
| Old Watling Street, Canterbury, CT1 | £ 280,000 | BUY | 6 / 10 | 0.00 KM |
| Old Watling Street, CANTERBURY | £ 275,000 | BUY | 6 / 10 | 0.02 KM |
| Old Watling Street, Canterbury, Kent, CT1 | £ 300,000 | BUY | 8 / 10 | 0.02 KM |
| Old Watling Street, Canterbury | £ 270,000 | BUY | Unknown | 0.02 KM |
| Old Watling Street, Canterbury | £ 200,000 | BUY | 6 / 10 | 0.02 KM |
Nearby Properties
| Address | Price | Distance |
|---|---|---|
| 36 Old Watling Street | £ 240,000 | 0.02 KM |
| 42 Old Watling Street | £ 221,000 | 0.02 KM |
| 4 Old Watling Street | £ 185,250 | 0.02 KM |
| 12 Old Watling Street | £ 194,750 | 0.02 KM |
| 60 Old Watling Street | £ 320,000 | 0.02 KM |