Guy Thomas & Co says ..
A DECEPTIVE AND INTERESTING TERRACED HOUSE PROVIDING WELL PROPORTIONED ACCOMMODATION ON FOUR LEVELS - WELL POSITIONED IN THE CENTRE OF THE HISTORIC TOWN AND HAVING PLEASANT OUTLOOKS TO THE REAR
Property Oracle says ..
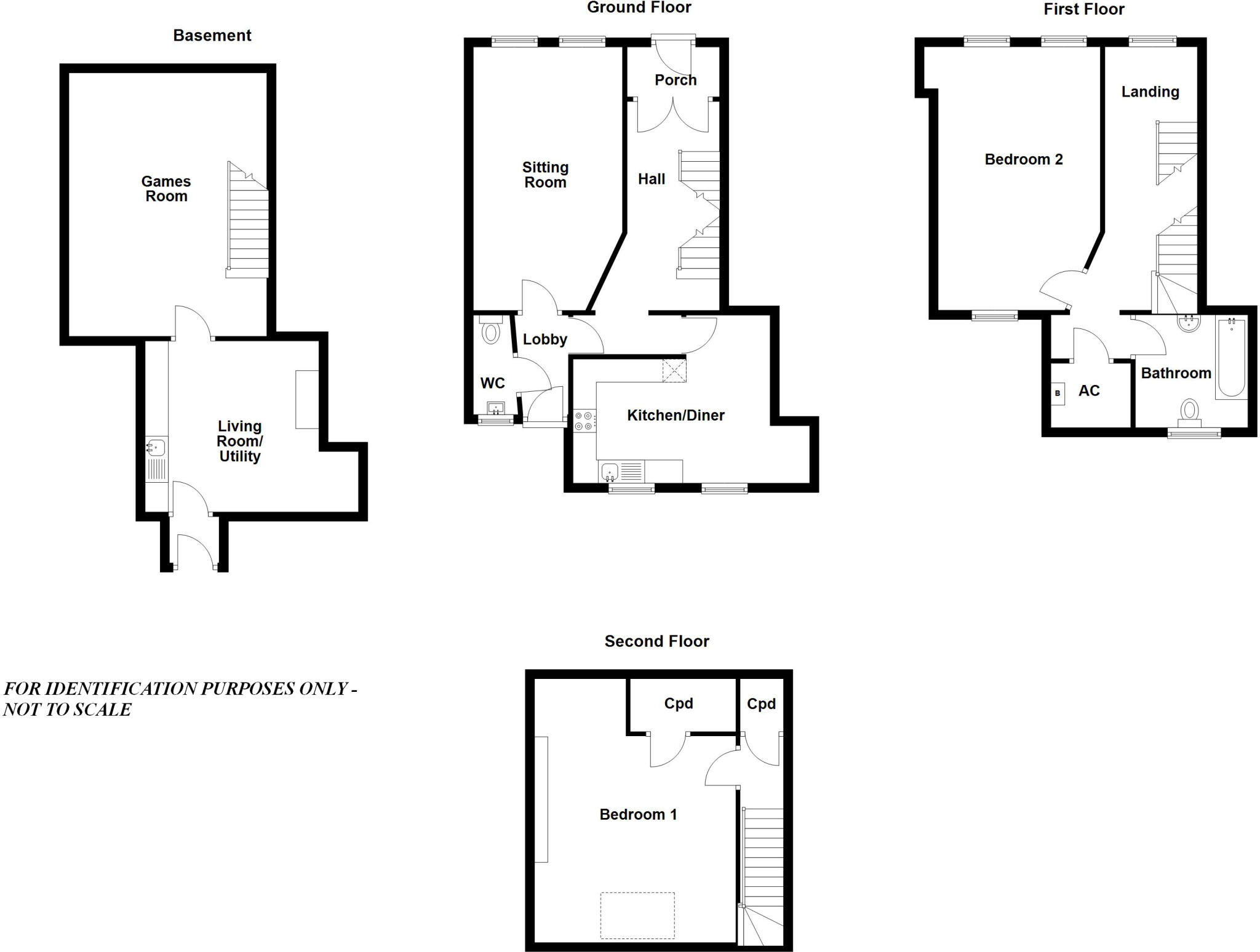
Ty Clyd, located on Main Street in Pembroke, is a terraced property featuring two bedrooms and one bathroom. The property spans 1,140 sqft and includes a rear garden with a patio. Inside, the kitchen has been modernized, and the property benefits from a basement area. While generally well-maintained, some areas show signs of wear, particularly in the basement where exposed stone is visible. The location is central, with convenient access to transportation and schools. The asking price of £225,000 appears reasonable given the property’s size and location.
Therefore, we give this property 6 / 10. *Disclaimer: This is our option and does constitute a recommendation or financial advice. Do your own research. *
- Price
- 7
- Condition
- 7
- Location
- 7
- Land
- 6
- Bedrooms
- 2
- Bathrooms
- 1
- Sqft (est)
- 1,140.00
The heatmap indicates the level of crime in the area. The color of the heatmap indicates the crime severity and recency.
Metrics Year-on-Year
- Average area value
- 175,813.00 £Increased by 1.31 %
- Est sale value
- 229,140.00 £Decreased by 30.45 %
- Average area rental value
- 650.00 £/moDecreased by 18.24 %
- Est letting value
- 0.00 £/moDecreased by 100.00 %
- Est rental Yield
- 4.44 %Decreased by 19.27 %
- Crime Rate
- 8.00 %Unchanged by 0.00 %
Agent Activity
Guy Thomas & Co created the listing.
Nearby Schools
| Name | Type | Ofsted | Distance |
|---|---|---|---|
| Ysgol Gelli Aur Golden Grove | Welsh Establishment | 0.45 KM | |
| Monkton Priory Cp School | Welsh Establishment | 1.79 KM | |
| Ysgol Harri Tudur/Henry Tudor School | Welsh Establishment | 1.85 KM | |
| Pembroke Dock Cp School | Welsh Establishment | 2.97 KM | |
| Cosheston V.C.P. School | Welsh Establishment | 3.03 KM |
Images
Nearby Streets
| Name | Average Price | Average Sqft | Distance |
|---|---|---|---|
| Orange Way | £ 0 | 0 | 0.00 KM |
| Riverside Close | £ 0 | 0 | 0.00 KM |
| Windsor Road | £ 160,000 | 0 | 0.00 KM |
| Well Hill | £ 162,500 | 0 | 0.00 KM |
| Wheeler's Way | £ 440,000 | 0 | 0.00 KM |
Nearby Transport
| Name | NLC | TLC | Distance |
|---|---|---|---|
| Pembroke | 4101 | PMB | 0.87 KM |
| Pembroke Dock | 4102 | PMD | 3.44 KM |
| Lamphey | 4084 | LAM | 4.54 KM |
Nearby Listings
| Address | Price | Type | Score | Distance |
|---|---|---|---|---|
| Ty Clyd, 57 Main Street | £ 225,000 | BUY | 6 / 10 | 0.00 KM |
| Main Street, Pembroke, Pembrokeshire, SA71 | £ 69,000 | BUY | 5 / 10 | 0.05 KM |
| Main Street, Pembroke, Pembrokeshire, SA71 | £ 87,500 | BUY | 6 / 10 | 0.05 KM |
| 66 Main Street, The Chain Back, Pembroke | £ 265,000 | BUY | 6 / 10 | 0.14 KM |
| Hamilton Terrace, Pembroke, Pembrokeshire, SA71 | £ 165,000 | BUY | 6 / 10 | 0.14 KM |
Nearby Properties
| Address | Price | Distance |
|---|---|---|
| 5 Commons Road | £ 115,000 | 0.05 KM |
| 9 Hamilton Terrace | £ 93,000 | 0.08 KM |
| 7 Hamilton Terrace | £ 43,000 | 0.08 KM |
| 10 Hamilton Terrace | £ 100,000 | 0.08 KM |
| 88a Main Street | £ 58,000 | 0.09 KM |