Sketty Road, Enfield, EN1
By Anthony Pepe Estate Agents
£ 285,000
Reviews
3 out of 5 stars
Anthony Pepe Estate Agents says ..
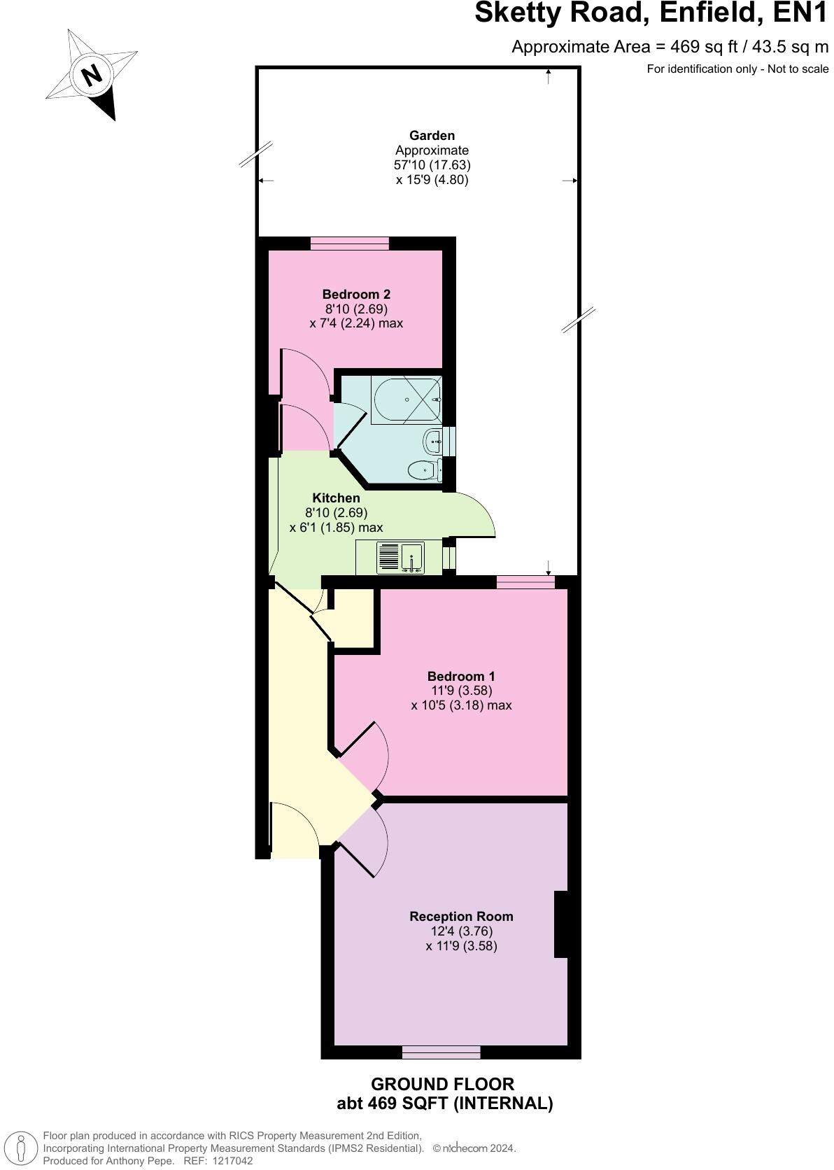
Anthony Pepe is pleased to present this charming ground-floor, two-bedroom period property, which boasts its own private rear garden. Ideally situated with easy access to the shopping and transport amenities of Enfield Town (EN1), this home is just a short distance from Enfield Town Railway Stati...
Property Oracle says ..
A two-bedroom terraced house on Sketty Road, Enfield. The property requires renovation and is priced below the average for the area. It is located close to schools and transportation.
Therefore, we give this property 6 / 10. *Disclaimer: This is our option and does constitute a recommendation or financial advice. Do your own research. *
- Price
- 8
- Condition
- 4
- Location
- 7
- Land
- 6
- Bedrooms
- 2
- Bathrooms
- 1
- Sqft (est)
- 469.00
- Lot (est)
- 921.00
The heatmap indicates the level of crime in the area. The color of the heatmap indicates the crime severity and recency.
Metrics Year-on-Year
- Average area value
- 428,000.00 £Decreased by 5.78 %
- Est sale value
- 261,233.00 £Increased by 22.15 %
- Average area rental value
- 1,899.00 £/moIncreased by 1.12 %
- Est letting value
- 938.00 £/moIncreased by 100.00 %
- Est rental Yield
- 5.32 %Increased by 7.26 %
- Crime Rate
- 9.00 %Unchanged by 0.00 %
Agent Activity
Anthony Pepe Estate Agents created the listing.
Nearby Schools
| Name | Type | Ofsted | Distance |
|---|---|---|---|
| George Spicer Primary School | Community School | Good | 0.43 KM |
| St Andrew'S Cofe Primary School | Voluntary Aided School | Good | 0.84 KM |
| Bush Hill Park Children'S Centre | Children's Centre | 0.99 KM | |
| Chace Community School | Community School | Requires improvement | 1.05 KM |
| Silverways School | Other Independent Special School | 1.07 KM |
Images
Nearby Streets
| Name | Average Price | Average Sqft | Distance |
|---|---|---|---|
| Pemberton Court | £ 340,000 | 0 | 0.00 KM |
| Mafeking Road | £ 500,000 | 0 | 0.00 KM |
| Cecil Avenue | £ 0 | 0 | 0.00 KM |
| Clydach Road | £ 0 | 0 | 0.00 KM |
| Woodfield Close | £ 0 | 0 | 0.00 KM |
Nearby Transport
| Name | NLC | TLC | Distance |
|---|---|---|---|
| Enfield Town | 6959 | ENF | 0.85 KM |
| Bush Hill Park | 6913 | BHK | 1.27 KM |
| Enfield Chase | 6010 | ENC | 2.11 KM |
| Southbury | 6947 | SBU | 2.17 KM |
| Gordon Hill | 6028 | GDH | 2.80 KM |
Nearby Listings
| Address | Price | Type | Score | Distance |
|---|---|---|---|---|
| Sketty Road, Enfield, EN1 | £ 285,000 | BUY | 6 / 10 | 0.00 KM |
| Sketty Road, Enfield, EN1 | £ 265,000 | BUY | 5 / 10 | 0.00 KM |
| Sketty Road, Enfield | £ 220,000 | BUY | 6 / 10 | 0.03 KM |
| Sketty Road, Enfield, EN1 | £ 325,000 | BUY | 7 / 10 | 0.03 KM |
| Sketty Road, Enfield, EN1 | £ 275,000 | BUY | Unknown | 0.04 KM |
Nearby Properties
| Address | Price | Distance |
|---|---|---|
| 36 Sketty Road | £ 250,000 | 0.02 KM |
| 16 Sketty Road | £ 265,000 | 0.02 KM |
| 59 Sketty Road | £ 171,000 | 0.02 KM |
| 49 Sketty Road | £ 319,995 | 0.02 KM |
| 14 Sketty Road | £ 249,000 | 0.02 KM |