London Road, Camberley, Surrey, GU15
By Orchard
£ 99,950
Reviews
3 out of 5 stars
Orchard says ..
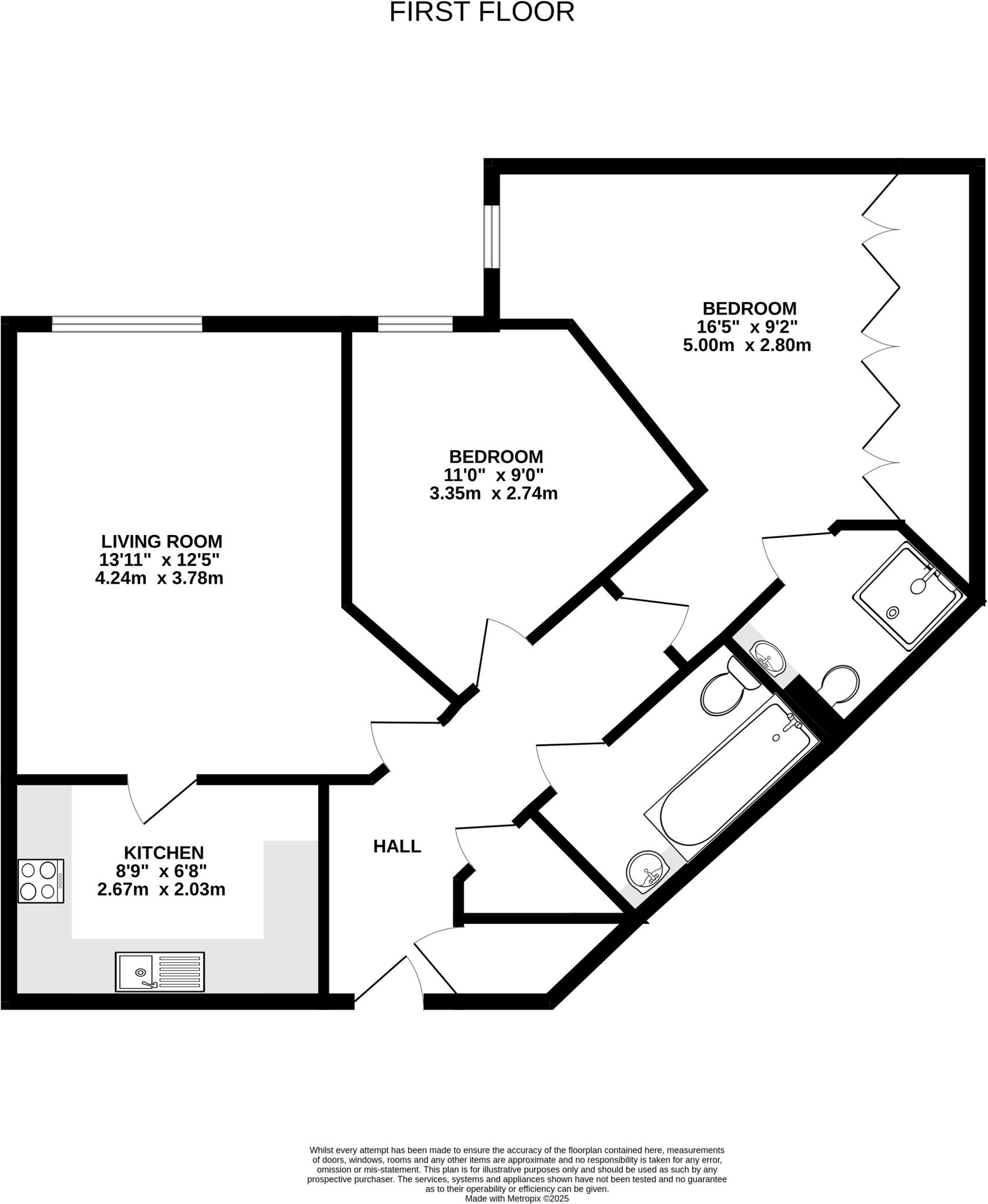
A spacious two bedroom two bathroom first floor retirement apartment for the over 55's located in this popular gated development within walking distance of Camberley town centre. Internally, the property is well presented and spacious with the accommodation comprising an entrance hall with two st...
Property Oracle says ..
This property is a 2 bedroom, 2 bathroom terraced house located in Camberley, Surrey. The property benefits from a communal garden. The list price is significantly below the average price for the area, and below the price of comparable properties. However, the lack of plot size information may indicate limited private outdoor space. Transport links are good, with several train stations within a reasonable distance. There are also a number of schools nearby.
Therefore, we give this property 6 / 10. *Disclaimer: This is our option and does constitute a recommendation or financial advice. Do your own research. *
- Price
- 6
- Condition
- 8
- Location
- 7
- Land
- 3
- Bedrooms
- 2
- Bathrooms
- 2
- Sqft (est)
- 872.63
The heatmap indicates the level of crime in the area. The color of the heatmap indicates the crime severity and recency.
Metrics Year-on-Year
- Average area value
- 226,464.00 £Decreased by 27.05 %
- Est sale value
- 251,317.44 £Decreased by 24.61 %
- Average area rental value
- 1,243.00 £/moDecreased by 7.99 %
- Est letting value
- 872.63 £/moUnchanged by 0.00 %
- Est rental Yield
- 6.59 %Increased by 26.25 %
- Crime Rate
- 5.00 %Unchanged by 0.00 %
Agent Activity
Orchard created the listing.
Nearby Schools
| Name | Type | Ofsted | Distance |
|---|---|---|---|
| Lyndhurst School | Other Independent School | 0.32 KM | |
| South Camberley Sure Start Children'S Centre | Children's Centre Linked Site | 1.31 KM | |
| South Camberley Primary And Nursery School | Academy Converter | 1.58 KM | |
| Kings International College | Foundation School | Good | 1.71 KM |
| The Orchard Sure Start Children'S Centre | Children's Centre | 1.75 KM |
Images
Nearby Streets
| Name | Average Price | Average Sqft | Distance |
|---|---|---|---|
| York Terrace Lane | £ 0 | 0 | 0.00 KM |
| Alexandra Avenue | £ 235,000 | 0 | 0.00 KM |
| Charles Street cycle path | £ 185,000 | 0 | 0.00 KM |
| Shelley Court | £ 0 | 0 | 0.00 KM |
| Bracebridge | £ 0 | 0 | 0.00 KM |
Nearby Transport
| Name | NLC | TLC | Distance |
|---|---|---|---|
| Camberley | 5682 | CAM | 1.25 KM |
| Blackwater | 5625 | BAW | 2.42 KM |
| Frimley | 5683 | FML | 2.95 KM |
| Farnborough North | 5688 | FNN | 4.13 KM |
| Farnborough (Main) | 5521 | FNB | 4.50 KM |
Nearby Listings
| Address | Price | Type | Score | Distance |
|---|---|---|---|---|
| London Road, Camberley, Surrey, GU15 | £ 180,000 | BUY | 6 / 10 | 0.00 KM |
| London Road, Camberley, Surrey, GU15 | £ 99,950 | BUY | 6 / 10 | 0.00 KM |
| London Road, Camberley, Surrey, GU15 | £ 275,000 | BUY | 6 / 10 | 0.00 KM |
| London Road, Camberley, GU15 | £ 100,000 | BUY | Unknown | 0.02 KM |
| London Road, Camberley, Surrey | £ 175,000 | BUY | Unknown | 0.02 KM |
Nearby Properties
| Address | Price | Distance |
|---|---|---|
| 46 Wey Close | £ 350,000 | 0.12 KM |
| 8 Wey Close | £ 347,500 | 0.12 KM |
| 23 Wey Close | £ 218,500 | 0.12 KM |
| 25 Wey Close | £ 182,000 | 0.12 KM |
| 31 Wey Close | £ 218,950 | 0.12 KM |