Allport Lane, Bromborough
By Brennan Ayre O'Neill
£ 235,000
Reviews
3 out of 5 stars
Brennan Ayre O'Neill says ..
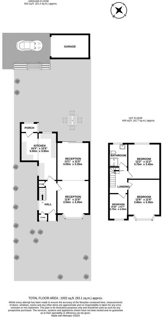
**DONT MISS OUT ON THIS ONE** This EXTENDED semi-detached offers spacious accommodation with through reception rooms, extended white kitchen, modern shower room and sitting on a corner plot. Move in ready and well located within walking distance of local amenities including transport, both primar...
Property Oracle says ..
Therefore, we give this property 6 / 10. *Disclaimer: This is our option and does constitute a recommendation or financial advice. Do your own research. *
- Price
- 6
- Condition
- 6
- Location
- 8
- Land
- 7
- Bedrooms
- 3
- Bathrooms
- 1
- Sqft (est)
- 777.15
The heatmap indicates the level of crime in the area. The color of the heatmap indicates the crime severity and recency.
Metrics Year-on-Year
- Average area value
- 214,158.00 £Decreased by 4.12 %
- Est sale value
- 212,939.10 £Increased by 33.01 %
- Average area rental value
- 905.00 £/moDecreased by 2.06 %
- Est letting value
- 777.15 £/mo
- Est rental Yield
- 5.07 %Increased by 2.22 %
- Crime Rate
- 7.00 %Unchanged by 0.00 %
from 223,360.00 £
from 160,092.90 £
from 924.00 £/mo
from 0.00 £/mo
from 4.96 %
from 7.00 %
Agent Activity
Brennan Ayre O'Neill created the listing.
Nearby Schools
| Name | Type | Ofsted | Distance |
|---|---|---|---|
| Bromborough Children'S Centre | Children's Centre | 0.11 KM | |
| Mendell Primary School | Community School | Requires improvement | 0.34 KM |
| Christ The King Catholic Primary School | Voluntary Aided School | Good | 0.77 KM |
| Co-Op Academy Woodslee | Academy Sponsor Led | 0.85 KM | |
| Raeburn Primary School | Community School | Good | 1.07 KM |
Images
Nearby Streets
| Name | Average Price | Average Sqft | Distance |
|---|---|---|---|
| Howard Avenue | £ 249,950 | 0 | 0.00 KM |
| High Street | £ 0 | 0 | 0.00 KM |
| Freestone Drive | £ 260,000 | 0 | 0.00 KM |
| Briscoe Grove | £ 425,000 | 0 | 0.00 KM |
| Beechwood Road | £ 0 | 0 | 0.00 KM |
Nearby Transport
| Name | NLC | TLC | Distance |
|---|---|---|---|
| Bromborough Rake | 2191 | BMR | 1.24 KM |
| Bromborough | 2190 | BOM | 1.31 KM |
| Spital | 2199 | SPI | 2.05 KM |
| Eastham Rake | 2128 | ERA | 2.51 KM |
| Port Sunlight | 2198 | PSL | 3.06 KM |
Nearby Listings
| Address | Price | Type | Score | Distance |
|---|---|---|---|---|
| Allport Lane, Bromborough | £ 235,000 | BUY | 6 / 10 | 0.00 KM |
| Allport Lane Precinct, Wirral, Merseyside, CH62 | £ 270,000 | BUY | 6 / 10 | 0.12 KM |
| Allport Lane Precinct, Bromborough, Wirral | £ 250,000 | BUY | 5 / 10 | 0.13 KM |
| Allport Lane, Wirral, CH62 | £ 215,000 | BUY | 6 / 10 | 0.14 KM |
| June Avenue, Bromborough, CH62 | £ 240,000 | BUY | 6 / 10 | 0.20 KM |
Nearby Properties
| Address | Price | Distance |
|---|---|---|
| 55 Allport Lane Precinct | £ 150,000 | 0.12 KM |
| 7 Gratrix Road | £ 116,000 | 0.13 KM |
| 17 Gratrix Road | £ 120,000 | 0.13 KM |
| 13 Gratrix Road | £ 170,000 | 0.13 KM |
| 5 Gratrix Road | £ 96,000 | 0.13 KM |