TU
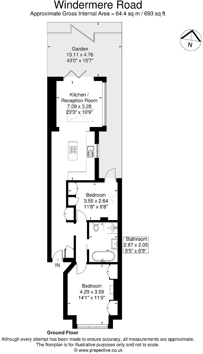
Windermere Road, Ealing, London, W5 4TD
By Tuffin & Wren
£ 599,950
Reviews
4 out of 5 stars
Tuffin & Wren says ..
A large, stylish and very modern conversion apartment set over the ground floor of this handsome Edwardian property, situated in the heart of Northfields just minutes from tubes, nearby shops and othe...
Property Oracle says ..
Therefore, we give this property 8 / 10. *Disclaimer: This is our option and does constitute a recommendation or financial advice. Do your own research. *
- Price
- 9
- Condition
- 9
- Location
- 8
- Land
- 7
- Bedrooms
- 2
- Bathrooms
- 1
- Sqft (est)
- 1,251.45
The heatmap indicates the level of crime in the area. The color of the heatmap indicates the crime severity and recency.
Metrics Year-on-Year
- Average area value
- 811,000.00 £Increased by 5.83 %
- Est sale value
- 633,233.70 £Decreased by 24.59 %
- Average area rental value
- 2,084.00 £/moDecreased by 2.53 %
- Est letting value
- 1,251.45 £/moUnchanged by 0.00 %
- Est rental Yield
- 3.08 %Decreased by 8.06 %
- Crime Rate
- 1.00 %Unchanged by 0.00 %
from 766,358.00 £
from 839,722.95 £
from 2,138.00 £/mo
from 1,251.45 £/mo
from 3.35 %
from 1.00 %
Agent Activity
Tuffin & Wren created the listing.
Nearby Schools
| Name | Type | Ofsted | Distance |
|---|---|---|---|
| Log Cabin Children'S Centre | Children's Centre | 0.38 KM | |
| Ealing Fields High School | Free Schools | Good | 0.57 KM |
| Little Ealing Primary School | Community School | Good | 0.57 KM |
| Mount Carmel Catholic Primary School | Voluntary Aided School | Good | 0.62 KM |
| Grange Children'S Centre | Children's Centre Linked Site | 0.82 KM |
Images
Nearby Streets
| Name | Average Price | Average Sqft | Distance |
|---|---|---|---|
| Bramley Road | £ 0 | 0 | 0.00 KM |
| Mayo Court | £ 739,950 | 0 | 0.00 KM |
| Sunderland Road | £ 891,667 | 0 | 0.00 KM |
| Roberts Alley | £ 0 | 0 | 0.00 KM |
| Maple Grove | £ 0 | 0 | 0.00 KM |
Nearby Transport
| Name | NLC | TLC | Distance |
|---|---|---|---|
| West Ealing | 3188 | WEA | 1.56 KM |
| Brentford | 5552 | BFD | 1.60 KM |
| Ealing Broadway | 3190 | EAL | 1.90 KM |
| Drayton Green | 3099 | DRG | 2.56 KM |
| Syon Lane | 5609 | SYL | 2.58 KM |
Nearby Listings
| Address | Price | Type | Score | Distance |
|---|---|---|---|---|
| Windermere Road, Ealing, London, W5 4TD | £ 599,950 | BUY | 8 / 10 | 0.00 KM |
| Windermere Road, Ealing, London, W5 4TD | £ 495,000 | BUY | Unknown | 0.01 KM |
| Windermere Road, Ealing, London | £ 895,000 | BUY | 6 / 10 | 0.07 KM |
| Windermere Road, London, W5 | £ 1,350,000 | BUY | 7 / 10 | 0.07 KM |
| Windermere Road, Northfields, W5 | £ 995,000 | BUY | 6 / 10 | 0.07 KM |
Nearby Properties
| Address | Price | Distance |
|---|---|---|
| 62 Windermere Road | £ 710,000 | 0.07 KM |
| 24 Windermere Road | £ 857,000 | 0.07 KM |
| 56a Windermere Road | £ 340,000 | 0.07 KM |
| 82 Windermere Road | £ 362,500 | 0.07 KM |
| 46 Windermere Road | £ 650,000 | 0.07 KM |