Redcliffe Square, Chelsea, SW10
By John D Wood & Co. Sales
£ 1,700,000
Reviews
3 out of 5 stars
John D Wood & Co. Sales says ..
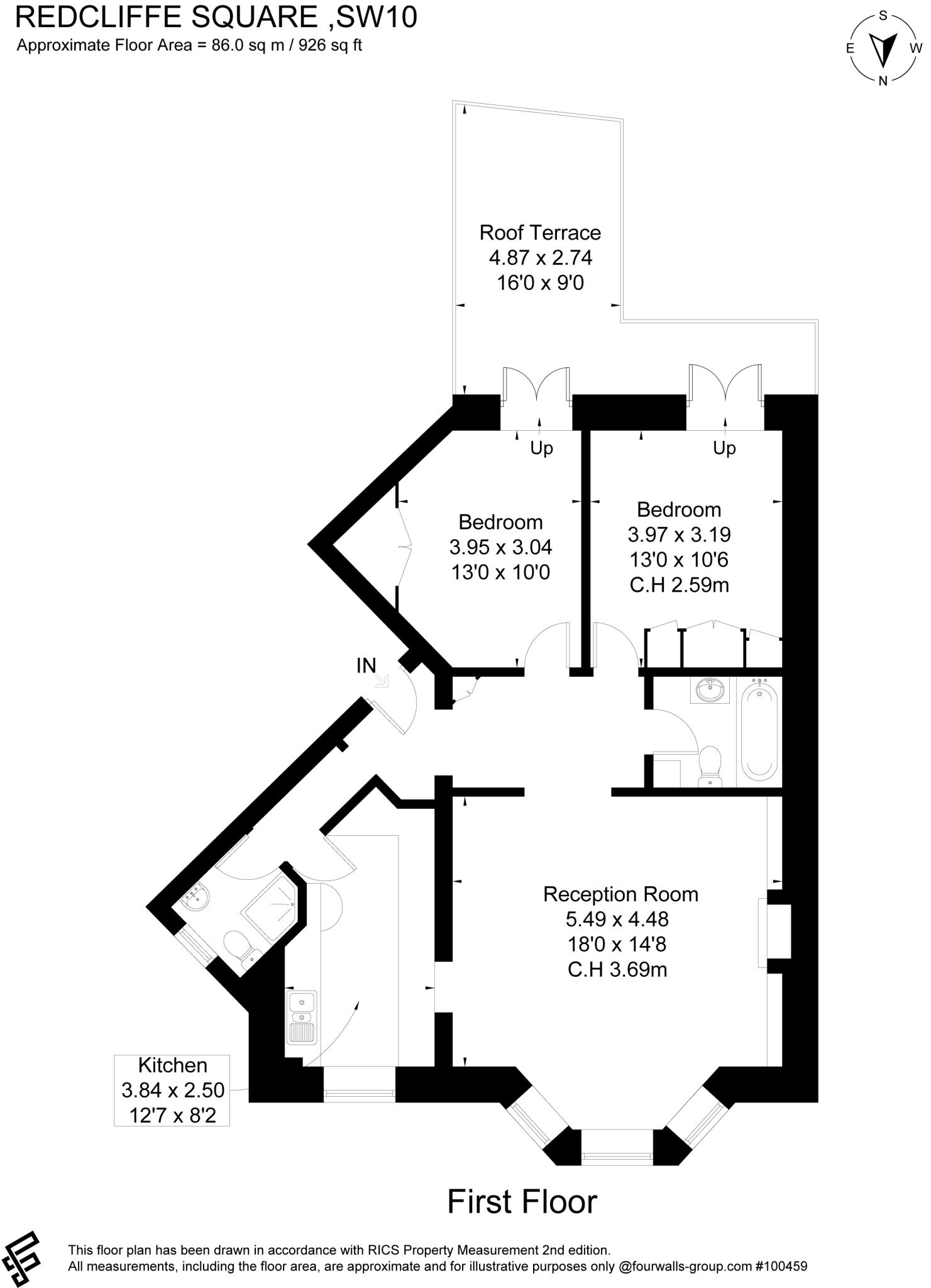
A perfectly positioned apartment occupying the first floor of this handsome Victorian Villa in Redcliffe Square.
Property Oracle says ..
This two-bedroom flat in Redcliffe Square, Chelsea, offers a fantastic opportunity in a prime London location. While the property requires some modernisation, it boasts a spacious layout, a balcony with views of the communal gardens, and proximity to excellent schools and transport links. The property retains some of its original features, adding to its charm. The price reflects the desirable location but may need to be adjusted to account for the renovation work required.
Therefore, we give this property 7 / 10. *Disclaimer: This is our option and does constitute a recommendation or financial advice. Do your own research. *
- Price
- 6
- Condition
- 6
- Location
- 9
- Land
- 7
- Bedrooms
- 2
- Bathrooms
- 2
The heatmap indicates the level of crime in the area. The color of the heatmap indicates the crime severity and recency.
Metrics Year-on-Year
- Average area value
- 915,500.00 £Decreased by 45.09 %
- Average area rental value
- 2,342.00 £/moIncreased by 5.78 %
- Est rental Yield
- 3.07 %Increased by 93.08 %
- Crime Rate
- 2.00 %Unchanged by 0.00 %
Agent Activity
John D Wood & Co. Sales created the listing.
Nearby Schools
| Name | Type | Ofsted | Distance |
|---|---|---|---|
| Bousfield Primary School | Community School | Outstanding | 0.27 KM |
| Godolphin And Latymer Redcliffe Gardens School | Other Independent School | 0.33 KM | |
| Collingham | Other Independent School | 0.40 KM | |
| Wetherby Kensington | Other Independent School | 0.40 KM | |
| Servite Rc Primary School | Voluntary Aided School | Outstanding | 0.61 KM |
Images
Nearby Streets
| Name | Average Price | Average Sqft | Distance |
|---|---|---|---|
| Collingham Gardens | £ 0 | 0 | 0.00 KM |
| Kempsford Gardens | £ 0 | 0 | 0.00 KM |
| Wharfedale Street | £ 0 | 0 | 0.00 KM |
| Milborne Grove | £ 0 | 0 | 0.00 KM |
| West Road | £ 0 | 0 | 0.00 KM |
Nearby Transport
| Name | NLC | TLC | Distance |
|---|---|---|---|
| West Brompton | 8875 | WBP | 0.86 KM |
| Imperial Wharf | 9586 | IMW | 1.64 KM |
| Kensington (Olympia) | 3092 | KPA | 2.68 KM |
| Wandsworth Town | 5576 | WNT | 3.08 KM |
| Paddington | 3087 | PAD | 3.31 KM |
Nearby Listings
| Address | Price | Type | Score | Distance |
|---|---|---|---|---|
| Redcliffe Square, Chelsea, SW10 | £ 1,700,000 | BUY | 7 / 10 | 0.00 KM |
| Redcliffe Square, London, SW10 | £ 1,350,000 | BUY | 8 / 10 | 0.01 KM |
| Redcliffe Square, London, SW10 | £ 2,250,000 | BUY | 6 / 10 | 0.03 KM |
| Redcliffe Square, South Kensington, London, SW10 | £ 1,595,000 | BUY | 5 / 10 | 0.05 KM |
| Redcliffe Square, London, SW10 | £ 2,250,000 | BUY | 6 / 10 | 0.05 KM |
Nearby Properties
| Address | Price | Distance |
|---|---|---|
| 6a Redcliffe Square | £ 1,080,000 | 0.04 KM |
| 4 Redcliffe Square | £ 17,000,000 | 0.04 KM |
| 20f Redcliffe Square | £ 1,175,000 | 0.05 KM |
| 29b The Little Boltons | £ 1,550,000 | 0.09 KM |
| 29a The Little Boltons | £ 745,000 | 0.09 KM |