Rhos-y-Bettws, Penpedairheol, Hengoed, CF82 8BP
By eXp UK
£ 265,000
Reviews
3 out of 5 stars
eXp UK says ..
A beautiful four-bedroom extended semi-detached property in a prime location.
Property Oracle says ..
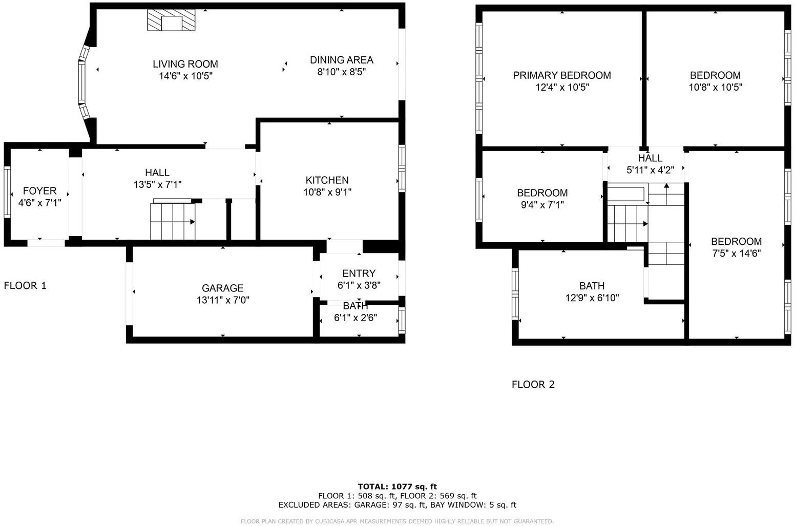
The property is a 4-bedroom, 2-bathroom semi-detached house located in Rhos-y-Bettws, Penpedairheol, Hengoed, with a list price of £265,000. The property has 1,077 square feet of living space and benefits from a garden. Based on the images provided, the property appears to be in excellent condition. It has recently been modernised with a new kitchen and flooring throughout. The property also benefits from a modern fireplace and a well-maintained garden with a patio area. The location is within close proximity to several primary and secondary schools, as well as several train stations. This makes the property attractive to families and commuters. Considering the average house price in the area is £219,133 and the average price per square foot is £228, the list price of £265,000 seems slightly higher than the average. However, given the property’s excellent condition, modern fixtures and fittings, and the inclusion of a garden, the price appears reasonable. The nearby comparable properties support this assessment, with some properties selling for higher prices despite having a smaller footprint.
Therefore, we give this property 7 / 10. *Disclaimer: This is our option and does constitute a recommendation or financial advice. Do your own research. *
- Price
- 7
- Condition
- 9
- Location
- 8
- Land
- 7
- Bedrooms
- 4
- Bathrooms
- 2
- Sqft (est)
- 1,077.00
The heatmap indicates the level of crime in the area. The color of the heatmap indicates the crime severity and recency.
Metrics Year-on-Year
- Average area value
- 228,331.00 £Decreased by 9.09 %
- Est sale value
- 270,327.00 £Increased by 53.99 %
- Average area rental value
- 852.00 £/moIncreased by 6.50 %
- Est letting value
- 0.00 £/mo
- Est rental Yield
- 4.48 %Increased by 17.28 %
- Crime Rate
- 10.00 %Unchanged by 0.00 %
Agent Activity
eXp UK marked this listing as sold.
eXp UK created the listing.
Nearby Schools
| Name | Type | Ofsted | Distance |
|---|---|---|---|
| Glyn-Gaer Cp School | Welsh Establishment | 0.47 KM | |
| Greenhill Primary School | Welsh Establishment | 1.35 KM | |
| Derwendeg Primary School | Welsh Establishment | 1.67 KM | |
| Glanynant Learning Centre (Pru) | Welsh Establishment | 2.07 KM | |
| Tiryberth Primary School | Welsh Establishment | 2.10 KM |
Images
Nearby Streets
| Name | Average Price | Average Sqft | Distance |
|---|---|---|---|
| Rhos-y-bettws | £ 0 | 0 | 0.00 KM |
| Willow Rise | £ 230,000 | 0 | 0.00 KM |
| Ty-nant | £ 0 | 0 | 0.00 KM |
| Tyla-gwyn | £ 0 | 0 | 0.00 KM |
| Gelli-ron | £ 249,900 | 0 | 0.00 KM |
Nearby Transport
| Name | NLC | TLC | Distance |
|---|---|---|---|
| Pengam | 4021 | PGM | 1.93 KM |
| Gilfach Fargoed | 4022 | GFF | 2.86 KM |
| Ystrad Mynach | 4026 | YSM | 3.20 KM |
| Bargoed | 4011 | BGD | 3.25 KM |
| Hengoed | 4028 | HNG | 3.53 KM |
Nearby Listings
| Address | Price | Type | Score | Distance |
|---|---|---|---|---|
| Rhos-y-Bettws, Penpedairheol, Hengoed, CF82 8BP | £ 265,000 | BUY | 7 / 10 | 0.00 KM |
| Tynant, Penpedairheol, Hengoed | £ 240,000 | BUY | 7 / 10 | 0.10 KM |
| Penybont, Pen-Pedair-Heol, Hengoed, CF82 8HD | £ 169,950 | BUY | 6 / 10 | 0.16 KM |
| Tylagwyn, Penpedairheol | £ 190,000 | BUY | Unknown | 0.18 KM |
| Tylagwyn, Hengoed, Caerphilly, CF82 | £ 210,000 | BUY | 6 / 10 | 0.18 KM |
Nearby Properties
| Address | Price | Distance |
|---|---|---|
| 5 Swn Y Nant | £ 120,000 | 0.05 KM |
| 13 Swn Y Nant | £ 147,000 | 0.05 KM |
| 2 Swn Y Nant | £ 160,000 | 0.05 KM |
| 9 Swn Y Nant | £ 126,500 | 0.05 KM |
| 6 Swn Y Nant | £ 157,500 | 0.05 KM |