St Pinnock Avenue, Staines-upon-Thames, TW18
By Gregory Brown
£ 950,000
Reviews
3 out of 5 stars
Gregory Brown says ..
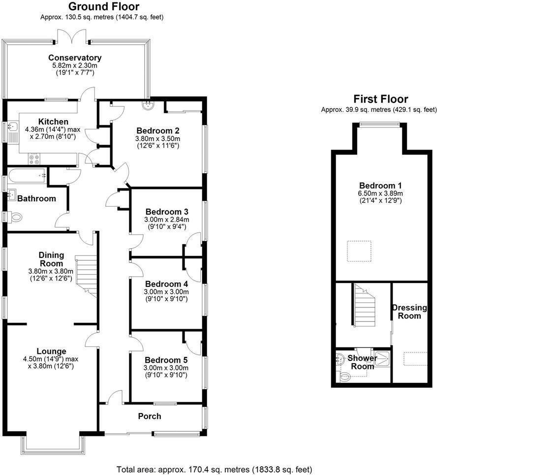
OFFERING GREAT SCOPE FOR EXTENSION (S.T.R.P.P), THIS HUGELY SPACIOUS DETACHED BUNGALOW IS LOCATED AT THE END OF A MUCH SOUGHT AFTER PRIVATE ROAD ON AN EXTENSIVE SECLUDED PLOT WITHIN MOMENTS OF THE RIVER THAMES. The property currently offers a wealth of accommodation and benefits from a spaciou...
Property Oracle says ..
The property is a detached bungalow located in Staines-upon-Thames, Surrey. It boasts 4 bedrooms and 2 bathrooms, spanning 1,311.42 sqft on a 1,834.17 sqft plot. The asking price is £950,000. The location is favorable, with several good primary schools within a 2km radius, including Our Lady Of The Rosary Rc Primary School and Riverbridge Primary School, both rated ‘Good’ by Ofsted. The proximity to Staines train station (1.5km) provides convenient access to London and other parts of the UK. Based on the provided images, the property appears to be in generally good condition, although some minor cosmetic updates might enhance its appeal. The kitchen shows signs of age, and some minor repairs are evident in a few of the bedrooms. However, there are no major structural issues visible. The property benefits from a well-maintained garden with a large lawn, patio area, and a substantial outbuilding. Considering the average house price in the area is £729,279 and the average price per sqft is £307, the listed price of £950,000 for this 1,311.42 sqft property seems high. However, the property’s size, the large garden, and the desirable location justify a premium compared to the average. The inclusion of a detached garage and sizable outbuilding further adds value. While some internal modernisation might be considered, the property is largely well-presented and habitable.
Therefore, we give this property 7 / 10. *Disclaimer: This is our option and does constitute a recommendation or financial advice. Do your own research. *
- Price
- 6
- Condition
- 7
- Location
- 9
- Land
- 8
- Bedrooms
- 4
- Bathrooms
- 2
- Sqft (est)
- 1,311.42
- Lot (est)
- 1,834.17
The heatmap indicates the level of crime in the area. The color of the heatmap indicates the crime severity and recency.
Metrics Year-on-Year
- Average area value
- 512,500.00 £Decreased by 7.89 %
- Est sale value
- 872,094.30 £Increased by 39.41 %
- Average area rental value
- 2,075.00 £/moIncreased by 3.18 %
- Est letting value
- 2,622.84 £/moIncreased by 100.00 %
- Est rental Yield
- 4.86 %Increased by 11.98 %
- Crime Rate
- 4.00 %Unchanged by 0.00 %
Agent Activity
Gregory Brown created the listing.
Nearby Schools
| Name | Type | Ofsted | Distance |
|---|---|---|---|
| Our Lady Of The Rosary Rc Primary School | Voluntary Aided School | Good | 0.88 KM |
| Riverbridge Primary School | Academy Converter | Good | 0.93 KM |
| Staines Preparatory School | Other Independent School | 1.43 KM | |
| Buckland Primary School | Community School | Good | 1.78 KM |
| The Matthew Arnold School | Academy Converter | Good | 1.80 KM |
Images
Nearby Streets
| Name | Average Price | Average Sqft | Distance |
|---|---|---|---|
| Parkside Place | £ 0 | 0 | 0.00 KM |
| Park Avenue | £ 0 | 0 | 0.00 KM |
| St Peter's Close | £ 700,000 | 0 | 0.00 KM |
| Thames Avenue | £ 0 | 0 | 0.00 KM |
| Bourne Avenue | £ 0 | 0 | 0.00 KM |
Nearby Transport
| Name | NLC | TLC | Distance |
|---|---|---|---|
| Staines | 5670 | SNS | 1.50 KM |
| Chertsey | 5553 | CHY | 3.64 KM |
| Ashford (Surrey) | 5667 | AFS | 4.24 KM |
| Egham | 5669 | EGH | 5.04 KM |
| Addlestone | 5550 | ASN | 5.48 KM |
Nearby Listings
| Address | Price | Type | Score | Distance |
|---|---|---|---|---|
| St Pinnock Avenue, Staines-upon-Thames, TW18 | £ 950,000 | BUY | 7 / 10 | 0.00 KM |
| Penton Hook Road, Staines, Surrey, TW18 | £ 800,000 | BUY | 7 / 10 | 0.15 KM |
| Penton Hook Road, Staines-upon-Thames, TW18 | £ 650,000 | BUY | 7 / 10 | 0.15 KM |
| Belle Vue Close, Staines-upon-Thames, Surrey, TW18 | £ 675,000 | BUY | 7 / 10 | 0.20 KM |
| Belle Vue Close, Staines-upon-Thames, Surrey, TW18 | £ 675,000 | BUY | 5 / 10 | 0.23 KM |
Nearby Properties
| Address | Price | Distance |
|---|---|---|
| Heathfield | £ 675,000 | 0.02 KM |
| 5 St Pinnock Avenue | £ 410,000 | 0.02 KM |
| Englewick | £ 585,000 | 0.15 KM |
| Chepstow Cottage | £ 365,000 | 0.15 KM |
| Penton House | £ 1,125,000 | 0.15 KM |